Kursy walut NBP: USD 3,98 | EUR 4,32 | CHF 4,53 |

Jesteśmy członkiem:           

Wyszukiwarka
Notes
Zgłoś ofertę
Kalkulator
zgłoś ofertę
Mieszkania
Domy
Działki
Lokale
Obiekty
Szczegóły oferty
Rodzaj oferty
dom blizniak ( sprzedaż )
Numer oferty
438316
Miejscowość
MIERZYN
Cena
770 000 PLN kalkulator
Cena za mkw
9 766,62 PLN mkw
Powierzchnia
78.84 m2
Pow. działki
103.00 m2
Liczba pokoi
4
Liczba pięter
1
Rodzaj kuchni
aneks
Stan domu
do wykonczenia
Rok budowy
2025
Droga dojazdowa
asfaltowa
Opis
Nowa inwestycja 2025 zakończona! ostatnie domy na sprzedaż.

Prezentujemy 3 lokale dwupoziomowe w zabudowie bliźniaczej w centrum Mierzyna o powierzchni od 78,69m2 do 78,84 m2.
Pozostały 2 lokale w stanie deweloperskim oraz 1 lokal w standardzie wykończonym.

STAN DEWELOPERSKI
* LOKAL NR 1
Lokal o powierzchni 78,84m2 w cenie 770.000 zł
Ogród ok. 52m2
Powierzchnia działki 103m2
* LOKAL NR 2
Lokal o powierzchni 78,78m2 w cenie 799.000 zł
Ogród ok. 52m2
Powierzchnia działki 103m2

STAN WYKOŃCZONY
* LOKAL NR 3
Lokal o powierzchni 78,69m2 w cenie 899.000 zł
Ogród ok. 52m2
Powierzchnia działki 103m2
- ogrzewanie podłogowe, panele,
- ściany wygładzone i pomalowane,
- kafle w przedpokoju i części kuchennej,
- oświetlenie, drzwi do wc, łazienki i sypialni,
- łazienka w pełni wykończona wanna, prysznic, wc, umywalka z szafką i lustrem.

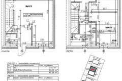
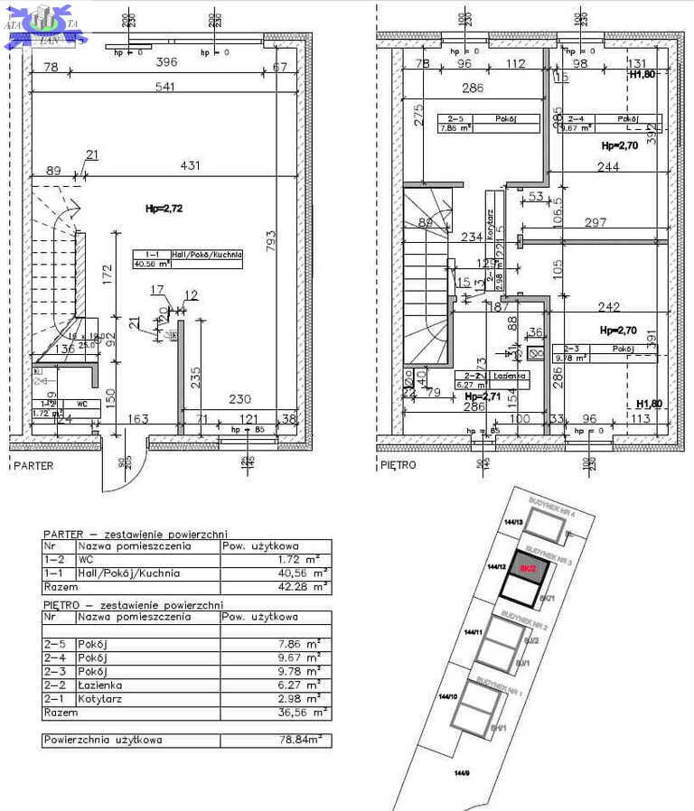
Wszystkie powyższe lokale składają się z
PARTER
* przedpokój, salon z aneksem kuchennym oraz wyjściem do ogrodu ok. 40,56 m2
* osobne wc z umywalką ok. 1,72 m2
PIĘTRO 1
* pokój 1 ok. 7,86 m2
* pokój 2 ok. 9,67 m2
* pokój 3 ok. 9,78 m2
* łazienka z wc, wanną oraz prysznicem ok. 6,27 m2
* kortytarz ok 2,98 m2

Każdy z domów w cenie ma własny ogródek oraz dwa zewnętrzne miejsca postojowe.
Lokal bezczynszowy. Ogrzewanie podłogowe - pompa ciepła. Okna PCV trzyszybowe.
Woda oraz kanalizacja z sieci gminnej.

Dodatkowa kwota za udział w drodze 6150 zł brutto - płatna jednorazowo do umowy przeniesienia własności.

ZDJĘCIA PREZENTUJĄ STAN RZECZYWISTY lokalu wykończonego oraz przykładowe wizualizacje do własnej aranżacji.
Polecam ze względu na lokalizację, spokojną i cichą okolicę idealną do odpoczynku.

Zapraszam na pierwszą prezentację.

Dodatkowe informacje: garaż

Kontakt do agenta

Atalanta Nieruchomości
Marii Konopnickiej 32
71-132 Szczecin
tel.: 914875042
email: info@atalanta.szczecin.pl
fax: 914875031

Wyślij zapytanie

Imię i Nazwisko
Telefon
E-mail
Treść zapytania

Wyrażam zgodę na przetwarzanie moich danych osobowych przez firmę dla celów związanych z działalnością pośrednictwa w obrocie nieruchomościami, jednocześnie potwierdzam, iż zostałem poinformowany o tym, iż będę posiadać dostęp do treści swoich danych do ich edycji lub usunięcia.

Wyślij ofertę

E-mail
© 2026 Atalanta Nieruchomości. Wszystkie prawa zastrzeżone.