Kursy walut NBP: USD 3,98 | EUR 4,32 | CHF 4,53 |

Jesteśmy członkiem:           

Wyszukiwarka
Notes
Zgłoś ofertę
Kalkulator
zgłoś ofertę
Mieszkania
Domy
Działki
Lokale
Obiekty
Szczegóły oferty
Rodzaj oferty
dom blizniak ( sprzedaż )
Numer oferty
438796
Miejscowość
SZCZECIN, OSÓW
Cena
950 000 PLN kalkulator
Cena za mkw
10 159,34 PLN mkw
Powierzchnia
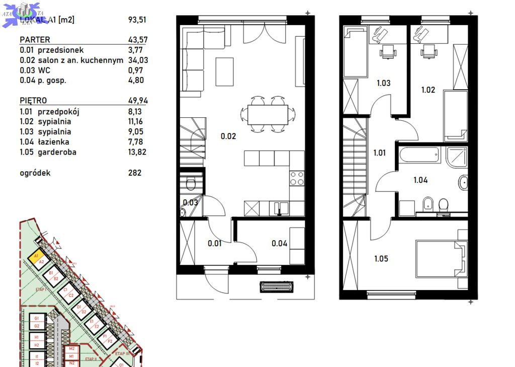
93.51 m2
Pow. działki
150.00 m2
Liczba pokoi
4
Liczba pięter
1
Rodzaj kuchni
aneks
Stan domu
do wykonczenia
Rok budowy
2027
Droga dojazdowa
utwardzona
Opis
Na sprzedaż nowoczesny bliźniak w stanie deweloperskim, położony na kameralnym i spokojnym osiedlu, w otoczeniu ciszy i zieleni.

Dom o funkcjonalnym układzie 4 pokoi, zapewnia wygodę codziennego życia.
Na parterze znajduje się przedsionek (3,77m2), pomieszczenie gospodarcze (4,80m2), oddzielne WC (0,97m2), oraz przestronna strefa dzienna, na którą składa się salon z aneksem kuchennym (34,03m2) i wyjściem do ogródka (47m2). Na piętrze natomiast mamy duży przedpokój (8,13m2), trzy sypialnie o wymiarach - 11,16m2, 9,05m2 i 13,82m3, oraz łazienkę (7,78m2).
Dodatkowym atutem jest spora powierzchnia strychowa, idealna do przechowywania.
Ogród od południowego-zachodu to ogromny plus tego lokalu.

Nieruchomość została wyposażona w nowoczesne i energooszczędne rozwiązania
pompę ciepła, rekuperację, oraz ogrzewanie podłogowe w każdym pomieszczeniu.
Bezpieczeństwo zapewniają drzwi antywłamaniowe, a możliwość podłączenia światłowodu, gwarantuje szybki internet do pracy i rozrywki.

Przed budynkiem znajdują się dwa prywatne miejsca postojowe.

To idealna propozycja dla osób ceniących nowoczesny design, komfort oraz spokojne otoczenie z szybkim dostępem do infrastruktury miejskiej.
W ofercie posiadamy jeszcze inne - podobne lokale.

Dodatkowe informacje: garaż

Kontakt do agenta

Atalanta Nieruchomości
Marii Konopnickiej 32
71-132 Szczecin
tel.: 914875042
email: info@atalanta.szczecin.pl
fax: 914875031

Wyślij zapytanie

Imię i Nazwisko
Telefon
E-mail
Treść zapytania

Wyrażam zgodę na przetwarzanie moich danych osobowych przez firmę dla celów związanych z działalnością pośrednictwa w obrocie nieruchomościami, jednocześnie potwierdzam, iż zostałem poinformowany o tym, iż będę posiadać dostęp do treści swoich danych do ich edycji lub usunięcia.

Wyślij ofertę

E-mail
© 2026 Atalanta Nieruchomości. Wszystkie prawa zastrzeżone.