Kursy walut NBP: USD 3,98 | EUR 4,32 | CHF 4,53 |

Jesteśmy członkiem:           

Wyszukiwarka
Notes
Zgłoś ofertę
Kalkulator
zgłoś ofertę
Mieszkania
Domy
Działki
Lokale
Obiekty
Szczegóły oferty
Rodzaj oferty
obiekt produkcyjno_magazynowy ( wynajem )
Numer oferty
403559
Miejscowość
SZCZECIN, POMORZANY
Cena
4 800 PLN
Cena za mkw
24 PLN mkw
Powierzchnia
200.00 m2
Piętro
2
Liczba pięter
6
Rok budowy
1939
Droga dojazdowa
utwardzona
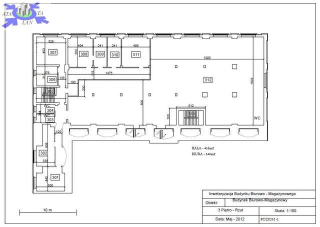
Opis
Do wynajęcia hala magazynowo-produkcyjna wraz z pomieszczeniami biurowymi, położona w budynku 6-cio kondygnacyjnym na Pomorzanach, z dobrym dojazdem do Centrum miasta. Nośność posadzki 1 tona/m2. Duży plac manewrowy dla TIR, rampa do rozładunku oraz winda towarowa łącząca wyższy poziom z niższymi poziomami. Ogrzewanie hali miejskie, co jest rzadkością, tym samym niskie koszty eksploatacji. Doskonała lokalizacja, niskie koszty utrzymania i powierzchnia czynią tę ofertę godną polecenia. Zapraszam do zapoznania się z ofertą osobiście.

Kontakt do agenta

Atalanta Nieruchomości
Marii Konopnickiej 32
71-132 Szczecin
tel.: 914875042
email: info@atalanta.szczecin.pl
fax: 914875031

Wyślij zapytanie

Imię i Nazwisko
Telefon
E-mail
Treść zapytania

Wyrażam zgodę na przetwarzanie moich danych osobowych przez firmę dla celów związanych z działalnością pośrednictwa w obrocie nieruchomościami, jednocześnie potwierdzam, iż zostałem poinformowany o tym, iż będę posiadać dostęp do treści swoich danych do ich edycji lub usunięcia.

Wyślij ofertę

E-mail
© 2026 Atalanta Nieruchomości. Wszystkie prawa zastrzeżone.