Kursy walut NBP: USD 3,98 | EUR 4,32 | CHF 4,53 |

Jesteśmy członkiem:           

Wyszukiwarka
Notes
Zgłoś ofertę
Kalkulator
zgłoś ofertę
Mieszkania
Domy
Działki
Lokale
Obiekty
Szczegóły oferty
Rodzaj oferty
dom blizniak ( sprzedaż )
Numer oferty
438410
Miejscowość
KOBYLANKA
Ulica
Osiedle Zielone
Cena
840 000 PLN kalkulator
Cena za mkw
7 727,69 PLN mkw
Powierzchnia
108.70 m2
Pow. działki
450.00 m2
Liczba pokoi
5
Liczba pięter
2
Stan domu
do wykonczenia
Rok budowy
2026
Droga dojazdowa
utwardzona
Opis
Wyjątkowy Bliźniak w Kobylance - Twój Nowy Adres na Osiedlu Zielonym
Z ogromną przyjemnością prezentuję Państwu ofertę sprzedaży nowoczesnego domu w zabudowie bliźniaczej, zlokalizowanego w malowniczej i doskonale skomunikowanej miejscowości Kobylanka (powiat stargardzki). To idealna propozycja dla osób szukających balansu między spokojem natury a szybkim dostępem do infrastruktury miejskiej.
Kluczowe Informacje o Nieruchomości
Nieruchomość sprzedawana jest w stanie deweloperskim, co daje nowym właścicielom pełną swobodę w aranżacji wnętrz według własnego gustu.
* Lokalizacja Kobylanka, Osiedle Zielone.
* Powierzchnia użytkowa lokalu ok. 108,7 m2.
* Powierzchnia działki (całość) 1834 m2 (sprzedaż w formie własności z udziałem w działce).
* Standard wykończenia Budynek wzniesiony z solidnego materiału (Silka), z pełnym zakresem instalacji i ogrzewaniem.
* Termin oddania Pierwszy bliźniak będzie gotowy do przekazania do maja/czerwca 2026 roku.
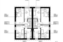
Funkcjonalny Rozkład Pomieszczeń
Dom został zaprojektowany z myślą o maksymalnym komforcie mieszkańców. Przemyślany układ dzieli przestrzeń na strefę dzienną (parter) oraz prywatną (poddasze).
Parter (Strefa Dzienna)
* Przestronny salon (20,8 m2) z wyjściem na taras.
* Funkcjonalna kuchnia połączona z korytarzem (14,6 m2).
* Dodatkowy pokój/gabinet (9,7 m2) idealny do pracy zdalnej.
* Toaleta, wiatrołap oraz praktyczne pomieszczenie gospodarcze.
Poddasze (Strefa Sypialniana)
* Trzy ustawne sypialnie jedna o powierzchni 13,8 m2 oraz 10,2m oraz 11,2 m.
* Duża, komfortowa łazienka (9,1 m2).
* Komunikacja z miejscem na schody.
Co Wyróżnia Tę Ofertę?
Największym atutem nieruchomości jest kompleksowo zagospodarowany teren zewnętrzny. Deweloper zadbał o wysoką jakość materiałów kamiennych, z których wykonano
* Estetyczne podjazdy i ścieżki.
* Solidne ogrodzenie posesji.
* Wydzielone miejsce do grillowania oraz eleganckie krawężniki oddzielające zieleń.
Lokalizacja i Otoczenie
Kobylanka to miejsce, które łączy prestiż z wygodą codziennego życia. Dzięki strategicznemu położeniu zyskują Państwo
* 10 minut do Stargardu.
* 15 minut do prawobrzeżnej części Szczecina.
* 3 minuty do kluczowych punktów Biedronka, Żabka, apteka, restauracje.
* 5 minut do szkoły i placówki pocztowej.
Warunki Finansowe
* Cena 840 000 zł.
* Bonus Dla pierwszego klienta przewidziany jest wysoki rabat oraz niespodzianka!.
* Istnieje możliwość indywidualnego uzgodnienia sposobu rozliczania i harmonogramu wpłat.
Zapraszam do kontaktu w celu umówienia się na prezentację tej wyjątkowej nieruchomości!

Dodatkowe informacje: garaż

Kontakt do agenta

Atalanta Nieruchomości
Marii Konopnickiej 32
71-132 Szczecin
tel.: 914875042
email: info@atalanta.szczecin.pl
fax: 914875031

Wyślij zapytanie

Imię i Nazwisko
Telefon
E-mail
Treść zapytania

Wyrażam zgodę na przetwarzanie moich danych osobowych przez firmę dla celów związanych z działalnością pośrednictwa w obrocie nieruchomościami, jednocześnie potwierdzam, iż zostałem poinformowany o tym, iż będę posiadać dostęp do treści swoich danych do ich edycji lub usunięcia.

Wyślij ofertę

E-mail
© 2026 Atalanta Nieruchomości. Wszystkie prawa zastrzeżone.