Kursy walut NBP: USD 3,98 | EUR 4,32 | CHF 4,53 |

Jesteśmy członkiem:           

Wyszukiwarka
Notes
Zgłoś ofertę
Kalkulator
zgłoś ofertę
Mieszkania
Domy
Działki
Lokale
Obiekty
Szczegóły oferty
Rodzaj oferty
mieszkanie ( sprzedaż )
Numer oferty
438392
Miejscowość
MIERZYN
Cena
994 368 PLN kalkulator
Cena za mkw
9 600 PLN mkw
Powierzchnia
103.58 m2
Liczba pokoi
5
Liczba pięter
3
Rodzaj kuchni
aneks
Stan mieszkania
do wykonczenia
Rok budowy
2025
Droga dojazdowa
asfaltowa
Opis
Na sprzedaż mieszkanie dwupoziomowe, pięciopokojowe w stanie deweloperskim na popularnym osiedlu w Szczecinie

Apartament z wyjściem na ogród o pow. 100m2
Inwestycja zakończona, mieszkanie gotowe do wydania.

Na powierzchnię użytkową 103,58m2,3m2 składają się

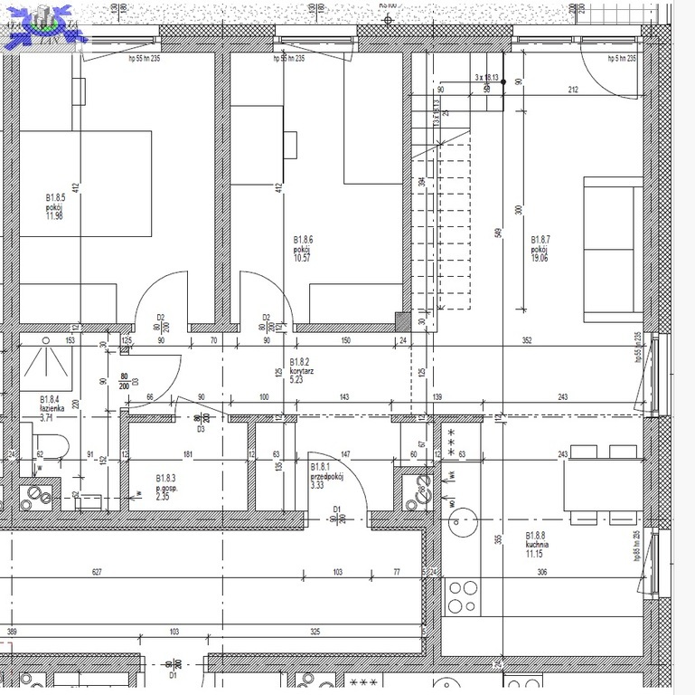
Poziom I
salon z aneksem kuchennym o pow. 30m2pokój o pow. 10,57m2pokój o pow. 12,57m2 pomieszczenie gospodarcze o pow. 2,35m2 łazienka o po2. 3m74m2korytarz i przedpokój

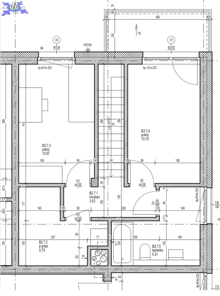
Poziom II
sypialnia o pow. 10,57 m2sypialnia o pow. 10,1m2 z wyjściem na balkon łazienka o pow. 6,21 m2 pomieszczenie gospodarcze o pow. 5,79m2korytarz
W standardzie deweloperskim

okna trzyszybowe, tynki gipsowe, maszynowerozprowadzona instalacja elektryczna, wodno-kanalizacyjna, grzewcza rozprowadzona instalacja telewizyjna i internetowa w sypialniach grzejniki panelowe w łazience grzejnik drabinkowy ( możliwość zrobienia ogrzewania podłogowego ).
Do każdego mieszkania trzeba dokupić obligatoryjnie minimum jedno miejsce parkingowe znajdujące się w hali garażowej pod budynkiem ( winda zjeżdża na poziom -1 )

Ogrzewanie i ciepła woda z SEC'u.


Nowoczesna architektura, kompleksowo zagospodarowany teren osiedla, chodniki, niskie nasadzenia, plac zabaw dla najmłodszych.
Doskonała lokalizacja, spokojne sąsiedztwo, niska zabudowa, w pobliżu szkoła ,żłobek, przedszkole, sklepy, blisko komunikacja miejska.
Zapraszam na prezentację

Dodatkowe informacje: balkon, telefon, internet, TV kablowa, winda, parking

Kontakt do agenta

Atalanta Nieruchomości
Marii Konopnickiej 32
71-132 Szczecin
tel.: 914875042
email: info@atalanta.szczecin.pl
fax: 914875031

Wyślij zapytanie

Imię i Nazwisko
Telefon
E-mail
Treść zapytania

Wyrażam zgodę na przetwarzanie moich danych osobowych przez firmę dla celów związanych z działalnością pośrednictwa w obrocie nieruchomościami, jednocześnie potwierdzam, iż zostałem poinformowany o tym, iż będę posiadać dostęp do treści swoich danych do ich edycji lub usunięcia.

Wyślij ofertę

E-mail
© 2026 Atalanta Nieruchomości. Wszystkie prawa zastrzeżone.