Kursy walut NBP: USD 3,98 | EUR 4,32 | CHF 4,53 |

Jesteśmy członkiem:           

Wyszukiwarka
Notes
Zgłoś ofertę
Kalkulator
zgłoś ofertę
Mieszkania
Domy
Działki
Lokale
Obiekty
Szczegóły oferty
Rodzaj oferty
działka budowlana ( sprzedaż )
Numer oferty
438268
Miejscowość
MIERZYN
Ulica
Prosta
Cena
1 400 000 PLN kalkulator
Cena za mkw
297,87 PLN mkw
Powierzchnia
4700.00 m2
Opis

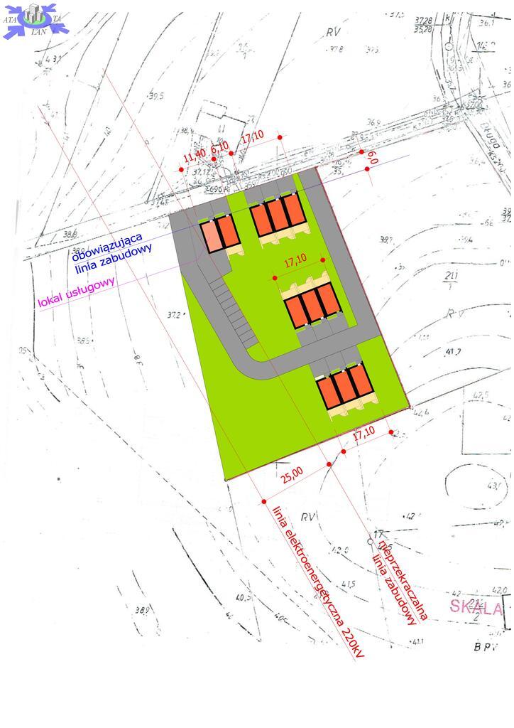
KONCEPCJA ZAGOSPODAROWANIA TERENU ZGODNIE Z WARUNKAMI ZABUDOWY

Inwestycja zakłada intensywne, ale uporządkowane wykorzystanie terenu, łączące funkcję mieszkalną z usługową.
Przy metrażu 4700 m2, taki układ pozwala na zachowanie optymalnych odległości między budynkami.
Zabudowa szeregowa (9 domów) Została zaprojektowana w formie trzech kameralnych zespołów po 3 segmenty każdy. Taki podział sprzyja estetyce osiedla i pozwala na lepsze doświetlenie lokali skrajnych niż w przypadku jednego długiego ciągu.
Budynek mieszkalno-usługowy Strategicznie zlokalizowany prawdopodobnie w pierwszej linii zabudowy (od strony głównej drogi dojazdowej), co zapewnia ekspozycję lokalu usługowego.
Samodzielny lokal usługowy Dodatkowy obiekt który podnosi komercyjną atrakcyjność całej inwestycji.
Komunikacja i Infrastruktura
Droga wewnętrzna (6 m) Szerokość 6 metrów jest zgodna z aktualnymi przepisami techniczno-budowlanymi, co pozwala na swobodne wymijanie się pojazdów oraz zapewnia bezpieczny dojazd dla służb ratunkowych (straż pożarna).
Uzbrojenie Inwestycja obejmuje częściowo kanalizacje sanitarną ,częściowo do zbiorników bezodpływowych , woda studnia, zaopatrzenie w gaz z istniejącej sieci .

Kwota 1 400 000 jest kwotą netto .
Polecam i zapraszam na prezentacje.






Dodatkowe informacje: media - prąd, media - gaz

Kontakt do agenta

Atalanta Nieruchomości
Marii Konopnickiej 32
71-132 Szczecin
tel.: 914875042
email: info@atalanta.szczecin.pl
fax: 914875031

Wyślij zapytanie

Imię i Nazwisko
Telefon
E-mail
Treść zapytania

Wyrażam zgodę na przetwarzanie moich danych osobowych przez firmę dla celów związanych z działalnością pośrednictwa w obrocie nieruchomościami, jednocześnie potwierdzam, iż zostałem poinformowany o tym, iż będę posiadać dostęp do treści swoich danych do ich edycji lub usunięcia.

Wyślij ofertę

E-mail
© 2026 Atalanta Nieruchomości. Wszystkie prawa zastrzeżone.