Kursy walut NBP: USD 3,98 | EUR 4,32 | CHF 4,53 |

Jesteśmy członkiem:           

Wyszukiwarka
Notes
Zgłoś ofertę
Kalkulator
zgłoś ofertę
Mieszkania
Domy
Działki
Lokale
Obiekty
Szczegóły oferty
Rodzaj oferty
mieszkanie ( sprzedaż )
Numer oferty
438177
Miejscowość
WARZYMICE
Ulica
Tęczowe Ogrody
Cena
920 000 PLN kalkulator
Cena za mkw
10 356,86 PLN mkw
Powierzchnia
88.83 m2
Liczba pokoi
4
Piętro
2
Liczba pięter
2
Stan mieszkania
bardzo dobry
Rok budowy
2009
Opis
Prezentujemy Państwu na sprzedaż 4 pokojowe mieszkanie o pow. ok. 89 m2 usytuowane na 2 piętrze niskiego budynku na klimatycznym i zamkniętym osiedlu na Warzymicach.

Nieruchomość o bardzo ciekawym rozkładzie pomieszczeń, funkcjonalnie i przyjemnie zaaranżowana.

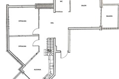
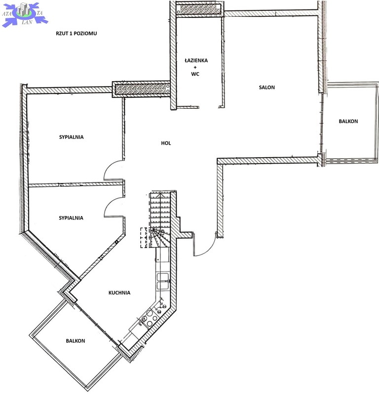
Na powierzchnię mieszkania składają się dwa poziomy.

Na pierwszym znajdują się spory salon o pow. ok. 23 m2 w wyjściem na balkon, dwie sypialnie, kuchnia z wyjściem na balkon, łazienka z WC oraz duży hol z szafami w zabudowie.
Łazienka spora wyposażona w wannę, kabinę prysznicową WC oraz bidet, wykończona gustownymi kaflami.
Kuchnia urządzona bardzo funkcjonalnie, z meblami w zabudowie .

Na drugim poziomie znajduje się duża przestrzeń gdzie znajduje się sypialnia z garderobą oraz część przeznaczona na gabinet.

Nieruchomość w bardzo dobrym stanie, nowocześnie zaaranżowana i przyjemna dla oka.
Liczne punktowe oświetlenie oraz wystrój dają bardzo przyjemny klimat.

Czynsz ok. 1200 + 330 zł fundusz remontowy. Ogrzewanie oraz ciepła woda w czynszu (miejskie).
Do użytku 2 piwnice!

Istnieje możliwość dokupienia garażu.

Budynek w świetnym stanie z ładną klatką oraz przyjemną infrastrukturą na całym osiedlu.
Osiedle strzeżone i monitorowane z licznymi miejscami parkingowymi.

Okolica przyjazna rodzinie. W pobliżu sklepy, punkty usługowe oraz miejsca do rekreacji!

Szczególnie polecamy ze względu na lokalizację oraz standard nieruchomości!
Zapraszamy na prezentacje


Dodatkowe informacje: balkon, ochrona, piwnica, garaż

Kontakt do agenta

Atalanta Nieruchomości
Marii Konopnickiej 32
71-132 Szczecin
tel.: 914875042
email: info@atalanta.szczecin.pl
fax: 914875031

Wyślij zapytanie

Imię i Nazwisko
Telefon
E-mail
Treść zapytania

Wyrażam zgodę na przetwarzanie moich danych osobowych przez firmę dla celów związanych z działalnością pośrednictwa w obrocie nieruchomościami, jednocześnie potwierdzam, iż zostałem poinformowany o tym, iż będę posiadać dostęp do treści swoich danych do ich edycji lub usunięcia.

Wyślij ofertę

E-mail
© 2026 Atalanta Nieruchomości. Wszystkie prawa zastrzeżone.