Kursy walut NBP: USD 3,98 | EUR 4,32 | CHF 4,53 |

Jesteśmy członkiem:           

Wyszukiwarka
Notes
Zgłoś ofertę
Kalkulator
zgłoś ofertę
Mieszkania
Domy
Działki
Lokale
Obiekty
Szczegóły oferty
Rodzaj oferty
dom wolnostojacy ( sprzedaż )
Numer oferty
438154
Miejscowość
PODAŃSKO
Cena
779 000 PLN kalkulator
Cena za mkw
5 644,93 PLN mkw
Powierzchnia
138.00 m2
Pow. działki
1600.00 m2
Liczba pokoi
5
Liczba pięter
1
Stan domu
bardzo dobry
Rok budowy
1945
Droga dojazdowa
asfaltowa
Opis
Oferta dostępna tylko u NAS!!!

Zapraszamy do zapoznania się z najnowszą ofertą sprzedaży domu parterowego z użytkowym poddaszem położonego w miejscowości Podańsko.

Dom wybudowany w technologii tradycyjnej usytuowany na zagospodarowanej działce o pow. 1600 m2, na której znajduje się dodatkowo budynek gospodarczy.

To doskonała nieruchomość dla rodziny oraz osób potrzebujących przestrzeni w spokojnej okolicy.

Dom o pow. użytkowej 138 m2, gotowy do wprowadzenia.

Dom mieszkalny składa się z następujących pomieszczeń

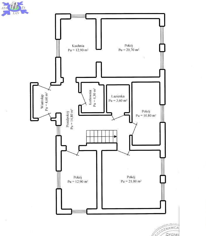
Parter o łącznej pow. 105,60 m2
- salon o pow. 21,00 m2,
- kuchnia o pow. 12,90 m2
- 3 pokoje o pow. 10,80 12,90 20,70
- łazienka o pow. 3,60 m2,
- kotłownia o pow. 4,30 m2,
- przedpokój o pow. 14,80 m2,
- wiatrołap o pow. 4,60 m2.

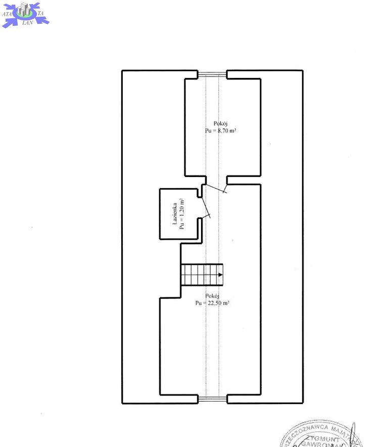
Poddasze o pow. 32,40 m2
- duży pokój o pow. 22,50 m2,
- łazienka o pow. 1,20 m2,
- pokój o pow. 8,70 m2.


KONSTRUKCJA/STARNARD WYKOŃCZENIA

- ściany - cegła, docieplona styropianem, puc
- dach dwuspadowy pokryty dachówką ceramiczną,
- podłogi panele,
- ściany malowane,
- instalacja wod-kan - sieć miejska,
- ogrzewanie - piec gazowy,
- okna PCV, rolety antywłamaniowe.

ZAGOSPODAROWANIE TERENU
- teren ogrodzony,
- brama wjazdowa z furtką,
- budynek gospodarczy.

Miejscowość Podańsko oddalona jest zaledwie 5 km od centrum Goleniowa. W bezpośrednim sąsiedztwie- osiedle Helenów, gdzie znajduje się szkoła, przedszkole, żłobek, przychodnia lekarska, sklepy i wiele innych usług. Dużym atutem jest również ścieżka rowerowa i komunikacja miejska.

Koszty związane z nabyciem nieruchomości
- wynagrodzenie biura z tytułu usługi pośrednictwa w nabyciu,
- podatek PCC 2%, taksa notariusza, opłaty sądowe, opłat za wypisy aktu notarialnego.

Zapraszamy na prezentacje i do składania ofert zakupu.

BEZPŁATNIE POMAGAMY W UZYSKANIU KREDYTU.

Dodatkowe informacje: garaż

Kontakt do agenta

Atalanta Nieruchomości
Marii Konopnickiej 32
71-132 Szczecin
tel.: 914875042
email: info@atalanta.szczecin.pl
fax: 914875031

Wyślij zapytanie

Imię i Nazwisko
Telefon
E-mail
Treść zapytania

Wyrażam zgodę na przetwarzanie moich danych osobowych przez firmę dla celów związanych z działalnością pośrednictwa w obrocie nieruchomościami, jednocześnie potwierdzam, iż zostałem poinformowany o tym, iż będę posiadać dostęp do treści swoich danych do ich edycji lub usunięcia.

Wyślij ofertę

E-mail
© 2026 Atalanta Nieruchomości. Wszystkie prawa zastrzeżone.