Kursy walut NBP: USD 3,98 | EUR 4,32 | CHF 4,53 |

Jesteśmy członkiem:           

Wyszukiwarka
Notes
Zgłoś ofertę
Kalkulator
zgłoś ofertę
Mieszkania
Domy
Działki
Lokale
Obiekty
Szczegóły oferty
Rodzaj oferty
dom wolnostojacy ( sprzedaż )
Numer oferty
438130
Miejscowość
BEZRZECZE
Cena
1 689 000 PLN kalkulator
Cena za mkw
11 185 PLN mkw
Powierzchnia
151.00 m2
Pow. działki
610.00 m2
Liczba pokoi
5
Liczba pięter
1
Stan domu
do wykonczenia
Rok budowy
2026
Droga dojazdowa
asfaltowa
Opis
Nowoczesny dom wolnostojący wybudowany według indywidualnego projektu o powierzchni użytkowej 151m2. Termin zakończenia budowy III kwartał 2026 roku. Nieruchomość sprzedawana w stanie deweloperskim. Lokalizacja w malowniczej i spokojnej części miejscowości Bezrzecze, gmina Dobra, powiat policki. Doskonała propozycja dla osób szukających przestrzeni do własnej aranżacji i życia w bliskim kontakcie z naturą. Sąsiedztwo domków jednorodzinnych. Powierzchnia ogrodu 610m2.

Budynek wykonany z betonu komórkowego, ocieplony. Dach kryty blachodachówką.
Na powierzchnię użytkową budynku składają się
Parter
- przestronny salon połączony z kuchnią o łącznej powierzchni 37m2 oraz z wyjściem na ogród.
- pokój 13,63m2
- łazienka, pomieszczenie gospodarcze, spiżarnia
- garaż jednostanowiskowy z bramą na pilota
- korytarz, schody na piętro
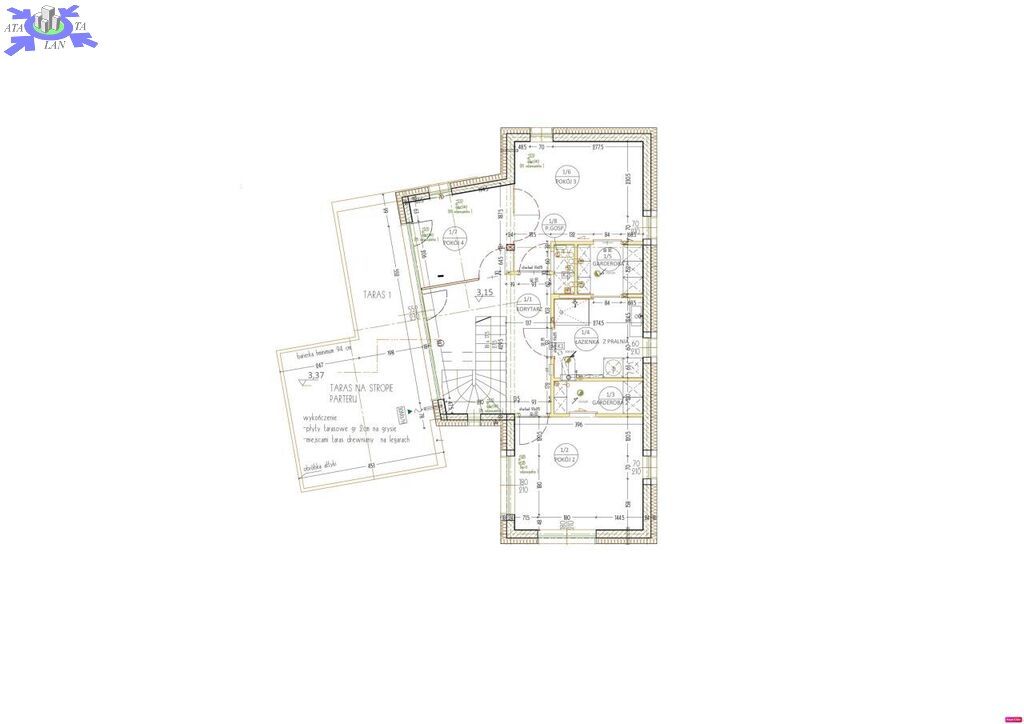
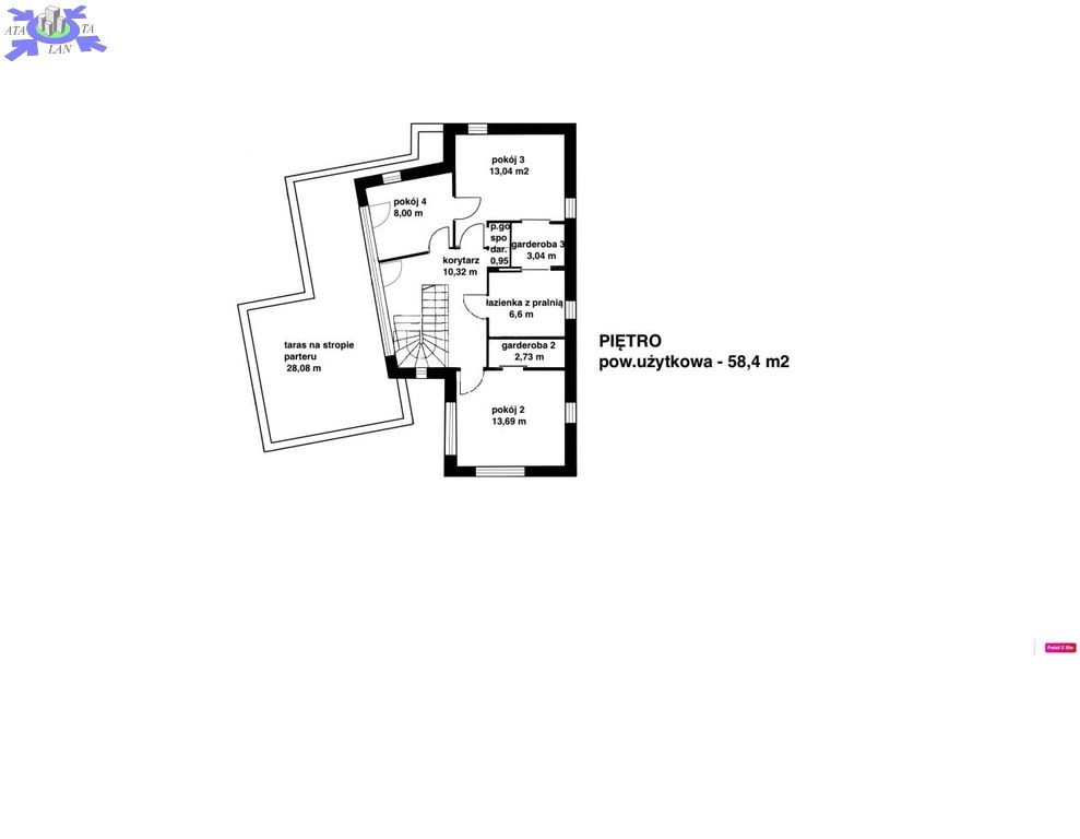
Piętro
- trzy sypialnie, z jednej wyjście na taras o powierzchni 28m2
- łazienka z oknem
Okna PCV trzyszybowe. Ściany gładzone i malowane na biało. Drzwi tarasowe przesuwane. Ogrzewanie gazowe podłogowe. Kanalizacja szambo. Teren ogrodzony. Dojazd do garażu wyłożony polbrukiem.

Jest to idealna propozycja dla osób, które pragną mieszkać w spokojnej okolicy, w domu z dużym potencjałem i możliwością personalizacji.


Dodatkowe informacje: garaż

Kontakt do agenta

Atalanta Nieruchomości
Marii Konopnickiej 32
71-132 Szczecin
tel.: 914875042
email: info@atalanta.szczecin.pl
fax: 914875031

Wyślij zapytanie

Imię i Nazwisko
Telefon
E-mail
Treść zapytania

Wyrażam zgodę na przetwarzanie moich danych osobowych przez firmę dla celów związanych z działalnością pośrednictwa w obrocie nieruchomościami, jednocześnie potwierdzam, iż zostałem poinformowany o tym, iż będę posiadać dostęp do treści swoich danych do ich edycji lub usunięcia.

Wyślij ofertę

E-mail
© 2026 Atalanta Nieruchomości. Wszystkie prawa zastrzeżone.