Kursy walut NBP: USD 3,98 | EUR 4,32 | CHF 4,53 |

Jesteśmy członkiem:           

Wyszukiwarka
Notes
Zgłoś ofertę
Kalkulator
zgłoś ofertę
Mieszkania
Domy
Działki
Lokale
Obiekty
Szczegóły oferty
Rodzaj oferty
mieszkanie ( sprzedaż )
Numer oferty
437985
Miejscowość
SZCZECIN, OS. BUKOWE
Ulica
Akwarelowa
Cena
652 000 PLN kalkulator
Cena za mkw
8 988,14 PLN mkw
Powierzchnia
72.54 m2
Liczba pokoi
3
Piętro
2
Liczba pięter
2
Stan mieszkania
idealny
Rok budowy
2005
Opis
Na sprzedaż 3-pokojowe mieszkanie zlokalizowane na osiedlu Bukowym na prawobrzeżu Szczecina, około 100 m od Puszczy Bukowej.

Lokal położony na 2 piętrze w niskim bloku z 2005 roku. Budynek zadbany, klatka schodowa w bardzo dobrym stanie.

Powierzchnia mieszkania wynosi 72,54 m2 zgodnie z księgą wieczystą, natomiast powierzchnia po podłodze to około 86 m2.

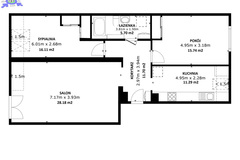
Układ mieszkania jest dwustronny i funkcjonalny.
Składa się z
- salonu z wyjściem na balkon
- dwóch sypialni
- osobnej kuchni
- łazienki z WC

Mieszkanie zadbane, przytulne i gotowe do zamieszkania. Ogrzewanie oraz ciepła woda z sieci miejskiej, przy czym dla ciepłej wody obowiązuje osobna umowa z SEC. Czynsz wynosi 648,66 zł.

Przed budynkiem dostępne są ogólnodostępne miejsca postojowe.
Lokal sprawdzi się jako mieszkanie dla rodziny, która szuka większej przestrzeni oraz bliskości terenów zielonych.

Zapraszam do kontaktu w celu uzyskania szczegółowych informacji oraz umówienia prezentacji.


Dodatkowe informacje: balkon, piwnica

Kontakt do agenta

Atalanta Nieruchomości
Marii Konopnickiej 32
71-132 Szczecin
tel.: 914875042
email: info@atalanta.szczecin.pl
fax: 914875031

Wyślij zapytanie

Imię i Nazwisko
Telefon
E-mail
Treść zapytania

Wyrażam zgodę na przetwarzanie moich danych osobowych przez firmę dla celów związanych z działalnością pośrednictwa w obrocie nieruchomościami, jednocześnie potwierdzam, iż zostałem poinformowany o tym, iż będę posiadać dostęp do treści swoich danych do ich edycji lub usunięcia.

Wyślij ofertę

E-mail
© 2026 Atalanta Nieruchomości. Wszystkie prawa zastrzeżone.