Kursy walut NBP: USD 3,98 | EUR 4,32 | CHF 4,53 |

Jesteśmy członkiem:           

Wyszukiwarka
Notes
Zgłoś ofertę
Kalkulator
zgłoś ofertę
Mieszkania
Domy
Działki
Lokale
Obiekty
Szczegóły oferty
Rodzaj oferty
mieszkanie ( sprzedaż )
Numer oferty
437981
Miejscowość
SZCZECIN, CENTRUM
Cena
830 000 PLN kalkulator
Cena za mkw
7 517,44 PLN mkw
Powierzchnia
110.41 m2
Liczba pokoi
4
Piętro
3
Liczba pięter
4
Stan mieszkania
do remontu
Rok budowy
1930
Opis
Oferuję na sprzedaż duże mieszkanie do remontu w bardzo dobrej i pożądanej lokalizacji. W jego pobliżu znajdują się liczne obiekty użyteczności publicznej, blisko jest do komunikacji miejskiej.

Lokal o funkcjonalnym układzie wnętrz. Idealny także na biura i gabinety.

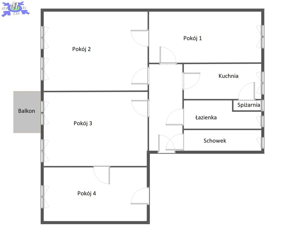
Na powierzchnię mieszkania 110,41 m2 składają się
* pokój nr 1 salon (ok. 22,55 m2) z balkonem
* pokój nr 2 sypialnia (ok. 15,4 m2)
* pokój nr 3 (ok.23,3 m2)
* pokój nr 4 (ok.18,22 m2)
* kuchnia (ok.10 m2)
* schowek (ok.5 m2)
* łazienka (ok.7 m2)
* przedpokój (ok.8,94 m2)

Mieszkanie do remontu, na podłodze deski. Okna pcv, drzwi drewniane. W jednym z pokoi znajduje się działający piec kaflowy, w dobrym stanie wizualnym. Ogrzewanie i ciepła woda z gazowego pieca dwuobiegowego. Czynsz ok. 365zł (1 osoba) + ok. 280zł/m-c + prąd wg zużycia

Do mieszkania przynależy piwnica ok. 6m2 oraz bardzo duży strych ogólnodostępny. Dla mieszkańców dostępny parking z bramą otwieraną na pilot.

Polecam lokal z uwagi na pożądaną lokalizację, dobrą inwestycję na przyszłość, biura, gabinety oraz duże możliwości własnej aranżacji, stworzenia pięknego i wyjątkowego własnego mieszkania.

Zapraszam na prezentację.

Dodatkowe informacje: umeblowane, balkon

Kontakt do agenta

Atalanta Nieruchomości
Marii Konopnickiej 32
71-132 Szczecin
tel.: 914875042
email: info@atalanta.szczecin.pl
fax: 914875031

Wyślij zapytanie

Imię i Nazwisko
Telefon
E-mail
Treść zapytania

Wyrażam zgodę na przetwarzanie moich danych osobowych przez firmę dla celów związanych z działalnością pośrednictwa w obrocie nieruchomościami, jednocześnie potwierdzam, iż zostałem poinformowany o tym, iż będę posiadać dostęp do treści swoich danych do ich edycji lub usunięcia.

Wyślij ofertę

E-mail
© 2026 Atalanta Nieruchomości. Wszystkie prawa zastrzeżone.