Kursy walut NBP: USD 3,98 | EUR 4,32 | CHF 4,53 |

Jesteśmy członkiem:           

Wyszukiwarka
Notes
Zgłoś ofertę
Kalkulator
zgłoś ofertę
Mieszkania
Domy
Działki
Lokale
Obiekty
Szczegóły oferty
Rodzaj oferty
mieszkanie ( sprzedaż )
Numer oferty
437777
Miejscowość
SZCZECIN, PODJUCHY
Ulica
Zakręt
Cena
349 000 PLN kalkulator
Cena za mkw
7 079,11 PLN mkw
Powierzchnia
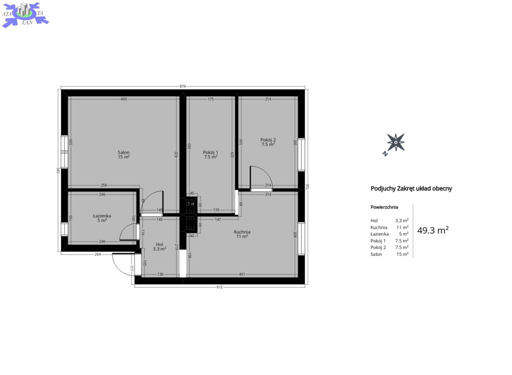
49.30 m2
Liczba pokoi
3
Liczba pięter
2
Rok budowy
1960
Opis
Przedstawiamy ofertę sprzedaży mieszkania w kameralnej niskiej kamienicy (tylko 6 rodzin) w Podjuchach niedaleko Placu Szewińskiej, ale położonej w cichej bocznej uliczce. W cenie mieszkania jest przynależy ogródek o powierzchni około 50mkw oraz garaż blaszany.

Istnieje możliwość łatwego przywrócenia dawnego układu, ale także dowolnego kształtowania przestrzeni dziennej, dzięki czemu uzyskamy przestronny salon z aneksem kuchennym i częścią jadalnianą (rzut i wizualizacja).

Mieszkanie
* powierzchnia 49,3mkw
* pierwotnie 2 pokoje (obecnie 3), kuchnia, łazienka i przedpokój
* na podłogach panele (pokoje) i gres (pozostała część), ściany gładzone i malowane
* CO i ciepła woda z nowoczesnego pieca gazowego (w pokojach grzejniki, podłogówka w kuchni i łazience)
* wymieniona instalacja elektryczna
* okna PCV po wymianie wychodzące na obie strony
* przynależna piwnica, a także ogródek (15mkw) i garaż blaszany

Budynek
*mieszkanie znajduje się na parterze w 2 piętrowym domu wielorodzinnym
*fasada świeżo po odnowieniu wykonana wraz z izolacją pionową
*dach po remoncie (adaptacje)
*zadbane podwórko

Okolica

Dom znajduje się w wyjątkowo atrakcyjnej lokalizacji w zacisznej uliczce w pobliżu Placu Szewińskiej, w spokojnych i zielonych Podjuchach. To miejsce, które łączy komfort miejskiego życia z bliskością natury. W bezpośrednim otoczeniu dostępne są sklepy, punkty usługowe, szkoła, przedszkole oraz przystanki komunikacji miejskiej, co zapewnia wygodę na co dzień.

Okolica słynie z przyjaznej atmosfery i dużej ilości terenów zielonych. W kilka minut można dotrzeć do malowniczych tras spacerowych i rowerowych prowadzących w kierunku Puszczy Bukowej idealnej dla osób aktywnych oraz wszystkich, którzy cenią odpoczynek na świeżym powietrzu.

Lokalizacja zapewnia szybki dojazd do centrum Szczecina i wjazd na trasę A6, a jednocześnie umożliwia korzystanie z uroków spokojnej, kameralnej dzielnicy. To doskonały wybór dla osób poszukujących miejsca oferującego zarówno wygodę, jak i codzienny kontakt z naturą.

Ważne
* Koszty utrzymania przy 3 osobach to zaledwie 330zł i obejmuje czynsz z funduszem remontowym i zaliczkami na wodę
* koszty gazu to 350zł/mieś. Zimą i 80zł/mieś. latem
* nowa elektryka i hydraulika
* przynależna piwnica, ogródek i garaż
* dostępna kablówka Orange


Dodatkowe informacje: piwnica, garaż, komórka

Kontakt do agenta

Atalanta Nieruchomości
Marii Konopnickiej 32
71-132 Szczecin
tel.: 914875042
email: info@atalanta.szczecin.pl
fax: 914875031

Wyślij zapytanie

Imię i Nazwisko
Telefon
E-mail
Treść zapytania

Wyrażam zgodę na przetwarzanie moich danych osobowych przez firmę dla celów związanych z działalnością pośrednictwa w obrocie nieruchomościami, jednocześnie potwierdzam, iż zostałem poinformowany o tym, iż będę posiadać dostęp do treści swoich danych do ich edycji lub usunięcia.

Wyślij ofertę

E-mail
© 2026 Atalanta Nieruchomości. Wszystkie prawa zastrzeżone.