Kursy walut NBP: USD 3,98 | EUR 4,32 | CHF 4,53 |

Jesteśmy członkiem:           

Wyszukiwarka
Notes
Zgłoś ofertę
Kalkulator
zgłoś ofertę
Mieszkania
Domy
Działki
Lokale
Obiekty
Szczegóły oferty
Rodzaj oferty
lokal ( wynajem )
Numer oferty
433320
Miejscowość
SZCZECIN, ŚRÓDMIEŚCIE
Cena
7 000 PLN
Cena za mkw
57,9 PLN mkw
Powierzchnia
120.90 m2
Liczba pokoi
5
Liczba pięter
4
Rok budowy
1999
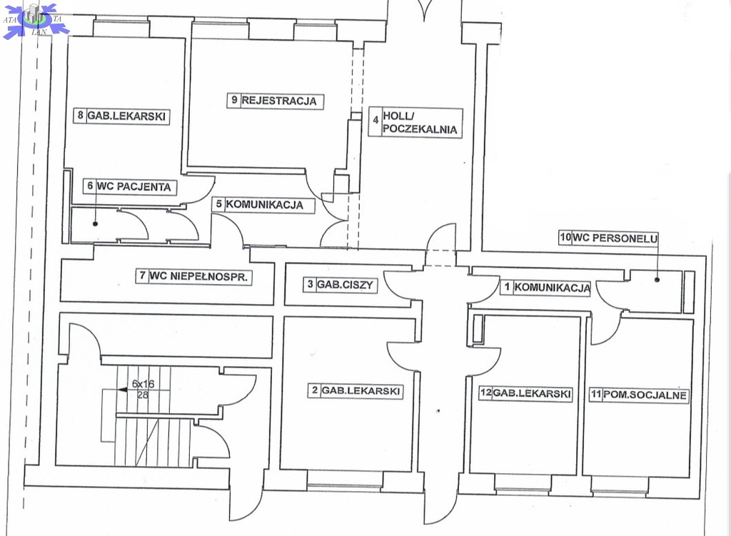
Opis
Do wynajęcia lokal położony w okolicy ronda Giedroyca i targowiska Manhattan.
Lokal z wejściem bezpośrednio z ulicy o powierzchni 120,9m2, a w tym
- hall,
- poczekalnia,
-5 pomieszczeń,
- 2 osobne WC,
- 2 pomieszczenia socjalne.
Lokal pełnił dotychczasowo funkcje medyczną (pozostało umeblowanie i wszelkie udogodnienia).
Wysokość lokalu 3,03 m2.
Lokal klimatyzowany, z pełnymi zabezpieczeniami alarm, rolety, monitoring.
Dostęp do lokalu z poziomu uchroniony szlabanem i furtką- 24h.
Istnieją 2 wejścia do lokalu.
Parking wewnętrzny w podwórku- 2 dostępne miejsca parkingowe za dodatkową opłatą do Zarządcy.
W budynku inne lokale usługowe.
Czysz najmu 7 000 zł + czynsz do SM+prąd.
Media miejskie.
Idealna propozycja dla kontynuacji działalności medycznej gabinetów lekarskich czy medycyny estetycznej. Doskonale sprawdzi się także jako biuro czy szkoła językowa.
Brak strefy płatnego parkowania. Miejsca ogólnodostępne na ulicy.
Dobry dostęp do komunikacji miejskiej autobusy i tramwaje.
Polecam.
Klucze w biurze.


Dodatkowe informacje: ochrona, parking

Kontakt do agenta

Atalanta Nieruchomości
Marii Konopnickiej 32
71-132 Szczecin
tel.: 914875042
email: info@atalanta.szczecin.pl
fax: 914875031

Wyślij zapytanie

Imię i Nazwisko
Telefon
E-mail
Treść zapytania

Wyrażam zgodę na przetwarzanie moich danych osobowych przez firmę dla celów związanych z działalnością pośrednictwa w obrocie nieruchomościami, jednocześnie potwierdzam, iż zostałem poinformowany o tym, iż będę posiadać dostęp do treści swoich danych do ich edycji lub usunięcia.

Wyślij ofertę

E-mail
© 2026 Atalanta Nieruchomości. Wszystkie prawa zastrzeżone.