Opis
Planujesz skredytować tę nieruchomość - zadzwoń.
Do sprzedaży mieszkanie 2 pokojowe z balkonem oraz komórką lokatorską w samym Centrum Szczecina, w pięknie odrestaurowanej i prestiżowej kamienicy. Nieruchomość to połączenie starej architektury i nowoczesnego stylu.
W pobliżu znajdują się Galerie Handlowe (Galaxy, Kaskada), Filharmonia, Wały Chrobrego, liczne sklepy, szkoły, przedszkola, przystanki komunikacji miejskiej oraz tereny zielone.
Bardzo prestiżowa lokalizacja dla osób wymagających.
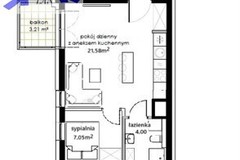
Mieszkanie o powierzchni użytkowej 32,65 m2, na którą składają się
- salon połączony z aneksem kuchennym oraz wyjściem na balkon
- pokój
- łazienka
+ balkon
W księdze wieczystej lokal opisany jako pokój dzienny z aneksem kuchennym, komunikacja, łazienka.
Do ofertowej ceny należy doliczyć kwotę 12.000 zł za komórkę lokatorską zlokalizowaną w garażu podziemnym o pow. użytkowej 1,95 m2 (zakup obligatoryjny).
W mieszkaniu zostały wykonane wszystkie prace wykończeniowe, wystarczy tylko położyć płytki, panele oraz dokupić meble. W całej nieruchomości zostały usunięte wszystkie wady deweloperskie np grubość tynku została pogrubiona, została zamontowana podwójna ilość gniazdek itp.
Wewnątrz budynku znajduje się ładne patio do użytku mieszkańców oraz bardzo reprezentacyjna klatka schodowa.
Nieruchomość ta to idealne miejsce dla osób poszukujących ekskluzywnego apartamentu, który można wykończyć wedle własnej aranżacji.
Zapraszam na prezentację.
Dodatkowe informacje: balkon, winda, piwnica