Kursy walut NBP: USD 3,98 | EUR 4,32 | CHF 4,53 |

Jesteśmy członkiem:           

Wyszukiwarka
Notes
Zgłoś ofertę
Kalkulator
zgłoś ofertę
Mieszkania
Domy
Działki
Lokale
Obiekty
Szczegóły oferty
Rodzaj oferty
mieszkanie ( sprzedaż )
Numer oferty
437398
Miejscowość
SZCZECIN, OS. BUKOWE
Ulica
Czerwona
Cena
464 000 PLN kalkulator
Cena za mkw
9 373,74 PLN mkw
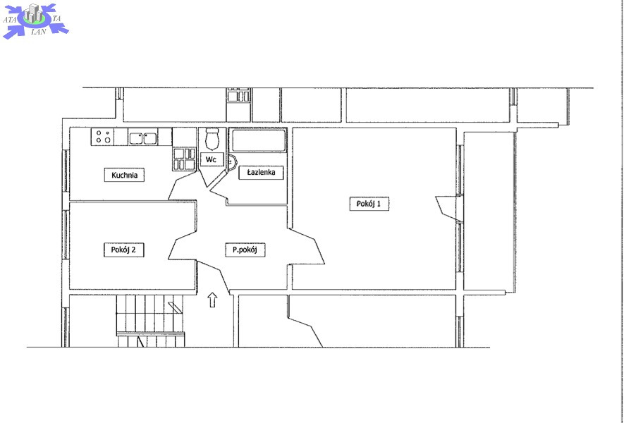
Powierzchnia
49.50 m2
Liczba pokoi
2
Piętro
4
Liczba pięter
4
Stan mieszkania
bardzo dobry
Rok budowy
1992
Opis
Na sprzedaż funkcjonalne, jasne mieszkanie o powierzchni 49,5 m2, położone na spokojnym i zielonym osiedlu Bukowym w Szczecinie, przy ul. Czerwonej. Lokal jest gotowy do wprowadzenia i sprawdzi się zarówno jako mieszkanie na start, jak i inwestycja pod wynajem.


Atuty mieszkania
-dwa ustawne pokoje, w tym przestronny salon z wyjściem na duży balkon
-piwnica o powierzchni około 4 m2
-ogrzewanie i ciepła woda z sieci miejskiej
-coroczne zwroty z tytułu ogrzewania na poziomie ok. 1200 zł
-liczne miejsca parkingowe wokół budynku
-cicha i spokojna okolica
-5 minut spacerem do Puszczy Bukowej
-plac zabaw w pobliżu
-spółdzielczo-własnościowe prawo do lokalu, możliwy zakup przez osoby spoza UE
- OFERTA NA WYŁĄCZNOŚĆ - oszczędzasz czas, nie szukaj dalej!


Lokalizacja


Osiedle Bukowe to jedna z najbardziej zielonych i lubianych części Szczecina. Mieszkańcy cenią sobie bliskość Puszczy Bukowej, pełną infrastrukturę (sklepy, szkoły, przystanki komunikacji miejskiej) oraz spokojne, rodzinne otoczenie.

Serdecznie zapraszam na prezentacje!


Kontakt do agenta

Atalanta Nieruchomości
Marii Konopnickiej 32
71-132 Szczecin
tel.: 914875042
email: info@atalanta.szczecin.pl
fax: 914875031

Wyślij zapytanie

Imię i Nazwisko
Telefon
E-mail
Treść zapytania

Wyrażam zgodę na przetwarzanie moich danych osobowych przez firmę dla celów związanych z działalnością pośrednictwa w obrocie nieruchomościami, jednocześnie potwierdzam, iż zostałem poinformowany o tym, iż będę posiadać dostęp do treści swoich danych do ich edycji lub usunięcia.

Wyślij ofertę

E-mail
© 2026 Atalanta Nieruchomości. Wszystkie prawa zastrzeżone.