Kursy walut NBP: USD 3,98 | EUR 4,32 | CHF 4,53 |

Jesteśmy członkiem:           

Wyszukiwarka
Notes
Zgłoś ofertę
Kalkulator
zgłoś ofertę
Mieszkania
Domy
Działki
Lokale
Obiekty
Szczegóły oferty
Rodzaj oferty
mieszkanie ( sprzedaż )
Numer oferty
437338
Miejscowość
GOLENIÓW
Ulica
Juliusza Słowackiego
Cena
535 000 PLN kalkulator
Cena za mkw
7 852,63 PLN mkw
Powierzchnia
68.13 m2
Liczba pokoi
4
Liczba pięter
1
Rodzaj kuchni
aneks
Stan mieszkania
do wykonczenia
Rok budowy
2025
Droga dojazdowa
polna
Opis
JUŻ DZISIAJ UMÓW SIĘ NA PREZENTACJĘ!!!

Przedmiotem sprzedaży jest LOKAL MIESZKALNY w stanie do wykończenia, wybudowany w technologii tradycyjnej według indywidualnego projektu.

Nieruchomość położona w GOLENIOWIE, na cichym i spokojnym osiedlu domków jednorodzinnych.
Mieszkanie znajduje się w budynku czterolokalowym, położony na działce o pow. 338 m2, częściowo ogrodzonej. Dojazd drogą gminną gruntową.
Przed budynkiem wykonana kostka polbrukowa.

Media - prąd, woda i kanalizacja z sieci miejskiej.

Ogrzewanie - gaz,

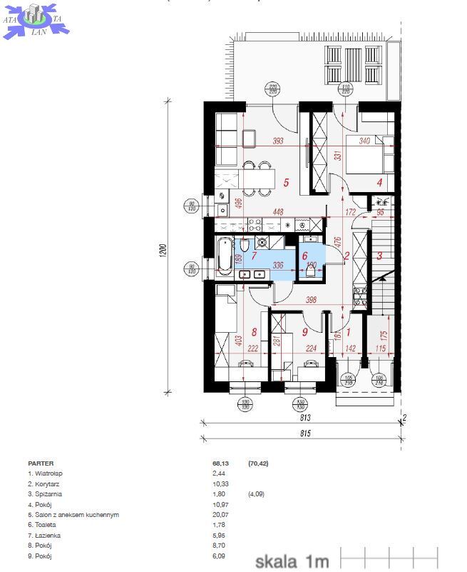
Mieszkanie o pow. użytkowa 68,13 m2, na którą składa się

- salon z aneksem kuchennym - 20,07 m2 (wyjście na ogród),
- pokoje - 10,97 m2 8,70 m2 6,09 m2
- łazienka - 5,95 m2,
- spiżarnia - 1,80 m2,
- hol - 10,33m2,
- wiatrołap - 2,44 m2


KONSTRUKCJA
- Ściany konstrukcyjne - bloczki beton komórkowy 24 cm, ściany wewnętrzne - bloczki beton komórkowy 12 cm,
- Strop - betonowy,
- Ocieplenie ścian zewnętrznych - styropian 20 cm,
- Pokrycie dachu - dachówka.

STANDARD WYKOŃCZENIA
- drzwi wejściowe,
- okna PCV 3-szybowe + okno tarasowe,
- instalacja - elektryczna, wodna, kanalizacyjna, gazowa, RTV,
- ocieplenie stropu - wełna.

W pokojach ściany gładzone malowane, podłogi posadzki. Miejsca postojowe na podjeździe.


Koszty związane z nabyciem nieruchomości
- opłaty u notariusza - taksa notarialna, podatek PCC, opłaty sądowe, opłata za wypisy aktu,
- wynagrodzenie biura nieruchomości za usługę pośrednictwa w zakupie.

ZAPRASZAMY NA PREZENTACJE i DO SKŁADANIA OFERT ZAKUPU !!!


Kontakt do agenta

Atalanta Nieruchomości
Marii Konopnickiej 32
71-132 Szczecin
tel.: 914875042
email: info@atalanta.szczecin.pl
fax: 914875031

Wyślij zapytanie

Imię i Nazwisko
Telefon
E-mail
Treść zapytania

Wyrażam zgodę na przetwarzanie moich danych osobowych przez firmę dla celów związanych z działalnością pośrednictwa w obrocie nieruchomościami, jednocześnie potwierdzam, iż zostałem poinformowany o tym, iż będę posiadać dostęp do treści swoich danych do ich edycji lub usunięcia.

Wyślij ofertę

E-mail
© 2026 Atalanta Nieruchomości. Wszystkie prawa zastrzeżone.