Kursy walut NBP: USD 3,98 | EUR 4,32 | CHF 4,53 |

Jesteśmy członkiem:           

Wyszukiwarka
Notes
Zgłoś ofertę
Kalkulator
zgłoś ofertę
Mieszkania
Domy
Działki
Lokale
Obiekty
Szczegóły oferty
Rodzaj oferty
mieszkanie ( sprzedaż )
Numer oferty
436946
Miejscowość
GRYFINO
Ulica
Bałtycka
Cena
323 000 PLN kalkulator
Cena za mkw
7 655,84 PLN mkw
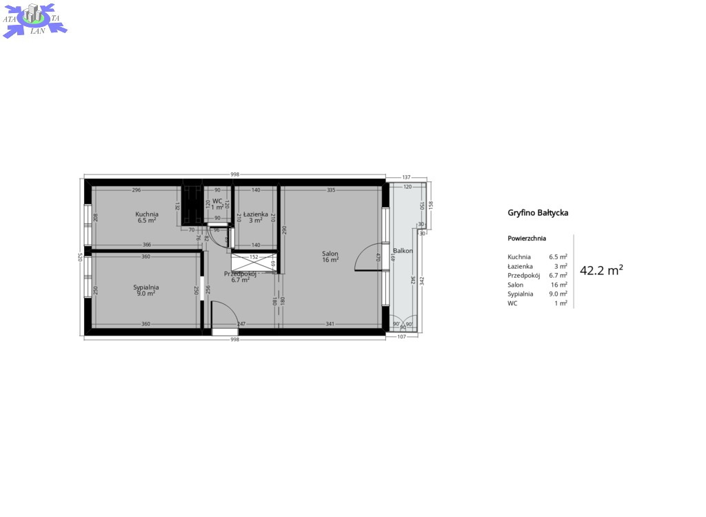
Powierzchnia
42.19 m2
Liczba pokoi
2
Piętro
4
Liczba pięter
4
Stan mieszkania
bardzo dobry
Rok budowy
1975
Opis
Przedstawiamy ofertę sprzedaży rozkładowego mieszkania w bloku o pow. 42,19mkw, w bardzo dobrej lokalizacji, w ścisłym Centrum Gryfina niedaleko mostu nad Odrą. Idealny wybór na pierwsze "M" lub pod inwestycję na wynajem.
Mieszkanie ma wymienioną elektrykę!

Mieszkanie
* powierzchnia 42,19mkw, IV piętro, wysokość 255cm
* orientacja wschód-zachód, bardzo jasne i ciepłe
* przedpokój, łazienka, wc, 2 pokoje, kuchnia, balkon
* salon wyposażony w rozkładaną kanapę, fotele i meblościanę
* sypialnia z rozkładaną kanapą oraz meblościaną
* przedpokój z dużą szafą na wymiar
* łazienka z wanną, umywalką i pralką, osobne WC
* widna kuchnia wyposażona w meble kuchenne, lodówkę, zlewozmywak oraz kuchenkę gazową z piekarnikiem, dodatkowo filtr wody wbudowany
* CO i ciepła woda z sieci miejskiej
* okna PCV w idealnym stanie, na wszystkich oknach rolety plus moskitiery na oknach uchylnych
* nowe solidne drzwi wejściowe do mieszkania
* przestronny balkon poszerzony z jednej strony (miejsce np. na stolik i krzesła)
* wymieniona instalacja elektryczna w 2010
* na podłogach w całym mieszkaniu terakota i dywany, ściany gładzone i malowane
* dobrze utrzymane i wydajne grzejniki żeliwne

Budynek
* blok z wielkiej płyty
* dach po renowacji i ociepleniu
* bardzo dobrze utrzymana i czysta klatka schodowa odmalowana w tym roku
* duże ogólnodostępne pomieszczenie gospodarcze

Okolica
Mieszkanie znajduje się w samym centrum Gryfina, a więc w zasięgu spaceru jest wszystko czego rodzina może potrzebować na co dzień
- komunikacja miejska
- sklepy Żabka, Biedronka, Rossmann
- dla dzieci place zabaw, przedszkola, żłobek, szkoła podstawowa, liceum
- punkty usługowe takie jak fryzjer, restauracja, apteka, bank,
- ponadto miejsca użyteczności publicznej takie jak kościół, szpital, urząd miasta, stacja PKP, hala sportowa, korty tenisowe, boiska do siatkówki i piłki nożnej a także Stadion Miejski, Park Miejski i Aquapark Laguna

Ważne
* Czynsz administracyjny 588zł, fundusz remontowy 118zł
* Prąd i gaz wg zużycia
* Przynależna piwnica
* Umeblowanie w cenie
* Pełna własność


Kontakt do agenta

Atalanta Nieruchomości
Marii Konopnickiej 32
71-132 Szczecin
tel.: 914875042
email: info@atalanta.szczecin.pl
fax: 914875031

Wyślij zapytanie

Imię i Nazwisko
Telefon
E-mail
Treść zapytania

Wyrażam zgodę na przetwarzanie moich danych osobowych przez firmę dla celów związanych z działalnością pośrednictwa w obrocie nieruchomościami, jednocześnie potwierdzam, iż zostałem poinformowany o tym, iż będę posiadać dostęp do treści swoich danych do ich edycji lub usunięcia.

Wyślij ofertę

E-mail
© 2026 Atalanta Nieruchomości. Wszystkie prawa zastrzeżone.