Kursy walut NBP: USD 3,98 | EUR 4,32 | CHF 4,53 |

Jesteśmy członkiem:           

Wyszukiwarka
Notes
Zgłoś ofertę
Kalkulator
zgłoś ofertę
Mieszkania
Domy
Działki
Lokale
Obiekty
Szczegóły oferty
Rodzaj oferty
mieszkanie ( sprzedaż )
Numer oferty
435866
Miejscowość
SZCZECIN, GUMIEŃCE
Ulica
Eugeniusza Kwiatkowskiego
Cena
769 000 PLN kalkulator
Cena za mkw
11 544,81 PLN mkw
Powierzchnia
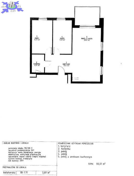
66.61 m2
Liczba pokoi
3
Piętro
3
Liczba pięter
3
Rodzaj kuchni
otwarta
Stan mieszkania
bardzo dobry
Rok budowy
2017
Opis

Przestronne mieszkanie o powierzchni 66,61 m2, położone na 3. piętrze w budynku z 2017 roku. Wnętrze utrzymane w stonowanej kolorystyce, dzięki czemu stanowi idealną bazę do aranżacji według własnego stylu i potrzeb. Duży balkon od zachodniej strony będzie idealnym miejscejm na relaks i popołudniową kawę. Jeśli szukasz mieszkania z potencjałem, w neutralnej stylistyce, z dużym balkonem od strony zachodniej i świetną lokalizacją - ta oferta jest dla Ciebie!

Mieszkanie
* powierzchnia 66,61 m2
* 3 piętro
* bardzo funkcjonalny układ, rozkładowe pokoje
* przestronny przedpokój z pojemną szafą w zabudowie
* łazienka z wanną, umywalką i wc
* sypialnia 1 z podwójnym łóżkiem i szafą w zabudowie
* sypialnia 2 - obecnie gabinet - z szafą w zabudowie
* duży, jasny i przestronny salon z aneksem duże okno balkonowe zapewniające mnóstwo naturalnego światła
*meble kuchenne w zabudowie, sprzęt AGD - płyta indukcyjna w białym kolorze, piekarnik, lodówka i zmywarka
* łazienka z prysznicem, wc i umywalką
* okna pcv w idealnym stanie
* drzwi wejściowe antywłamaniowe
* ekspozycja okien na północny zachód
* ciepła woda i ogrzewanie z SEC
* duży balkon
* komórka lokatorska

Budynek
* oddany do użytku w 2017 r.
* przestronna klatka schodowa

Ważne
Czynsz 368 zł z zaliczkami na wywóz śmieci i fundusz remontowy Właściciel dysponuje 2 miejscami w hali garażowej (na osobnej KW)Brak opłaty przekształceniowej
Zakup miejsc w hali garażowej nie jest obowiązkowy.
Cena jednego miejsca (bez mieszkania) 75 000 zł
Cena dwóch miejsc (bez mieszkania) 140 000 zł
Cena dwóch miejsc przy zakupie mieszkania 130 000 zł
Miejsca w hali garażowej zwolnione są z opłaty przekształceniowej
Okolica
Gumieńce to dzielnica oferująca spokojne życie, a jednocześnie zapewniająca dostęp do miejskich udogodnień, co czyni ją atrakcyjnym miejscem do zamieszkania, zwłaszcza dla rodzin. Osiedle przy ul. Kwiatkowskiego jest dobrze skomunikowane - gwarantuje szybki dojazd do centrum samochodem, ale w najbliższej okolicy znajdziemy też przystanki autobusowe. W zasięgu krótkiego spaceru znajdują się sklepy, restauracje, kawiarnie, apteki, siłownie i inne punkty usługowe - wszystko, czego potrzebujesz na co dzień, masz tuż pod ręką. Osiedle Nowa Cukrownia zostało zaprojektowane z myślą o komforcie mieszkańców - szerokie chodniki, tereny zielone, nowoczesna architektura oraz place zabaw sprawiają, że to miejsce idealne zarówno dla singli, par, jak i rodzin z dziećmi.
W okolicy
- sklep Żabka - 400 m
- siłownia, barber, bistro, paczkomat - 400 m
- stacja kolejowa Gumieńce - 600 m
- przystanki autobusowe linii 60, 61, 62, 241, 243
- McDonald's
- sklep Netto, Makro
- Wydział Humanistyczny US, Wydział Ekonomii US

Dojazd do Centrum zajmuje około 15 minut samochodem. Na osiedlu miejsca postojowe bez opłat PP.


Dodatkowe informacje: umeblowane, balkon, piwnica, parking, komórka

Kontakt do agenta

Atalanta Nieruchomości
Marii Konopnickiej 32
71-132 Szczecin
tel.: 914875042
email: info@atalanta.szczecin.pl
fax: 914875031

Wyślij zapytanie

Imię i Nazwisko
Telefon
E-mail
Treść zapytania

Wyrażam zgodę na przetwarzanie moich danych osobowych przez firmę dla celów związanych z działalnością pośrednictwa w obrocie nieruchomościami, jednocześnie potwierdzam, iż zostałem poinformowany o tym, iż będę posiadać dostęp do treści swoich danych do ich edycji lub usunięcia.

Wyślij ofertę

E-mail
© 2025 Atalanta Nieruchomości. Wszystkie prawa zastrzeżone.