Kursy walut NBP: USD 3,98 | EUR 4,32 | CHF 4,53 |

Jesteśmy członkiem:           

Wyszukiwarka
Notes
Zgłoś ofertę
Kalkulator
zgłoś ofertę
Mieszkania
Domy
Działki
Lokale
Obiekty
Szczegóły oferty
Rodzaj oferty
mieszkanie ( sprzedaż )
Numer oferty
436611
Miejscowość
SZCZECIN, POGODNO
Ulica
Romualda Traugutta
Cena
1 199 000 PLN kalkulator
Cena za mkw
7 720,54 PLN mkw
Powierzchnia
155.30 m2
Liczba pokoi
4
Piętro
1
Liczba pięter
2
Stan mieszkania
bardzo dobry
Rok budowy
1990
Droga dojazdowa
asfaltowa
Opis
Dwupoziomowe mieszkanie z potencjałem - idealne dla rodziny

Mieszkanie położone jest w spokojnej części Pogodna, przy ul. Romualda Traugutta w Szczecinie.
To przestronny, dwupoziomowy lokal w zabudowie szeregowej, oferujący łącznie 155,30 m2 powierzchni użytkowej.
Układ oraz charakter nieruchomości sprawiają, że to doskonała propozycja dla rodzin poszukujących dużego, funkcjonalnego mieszkania w kameralnym otoczeniu.

Układ i funkcjonalność

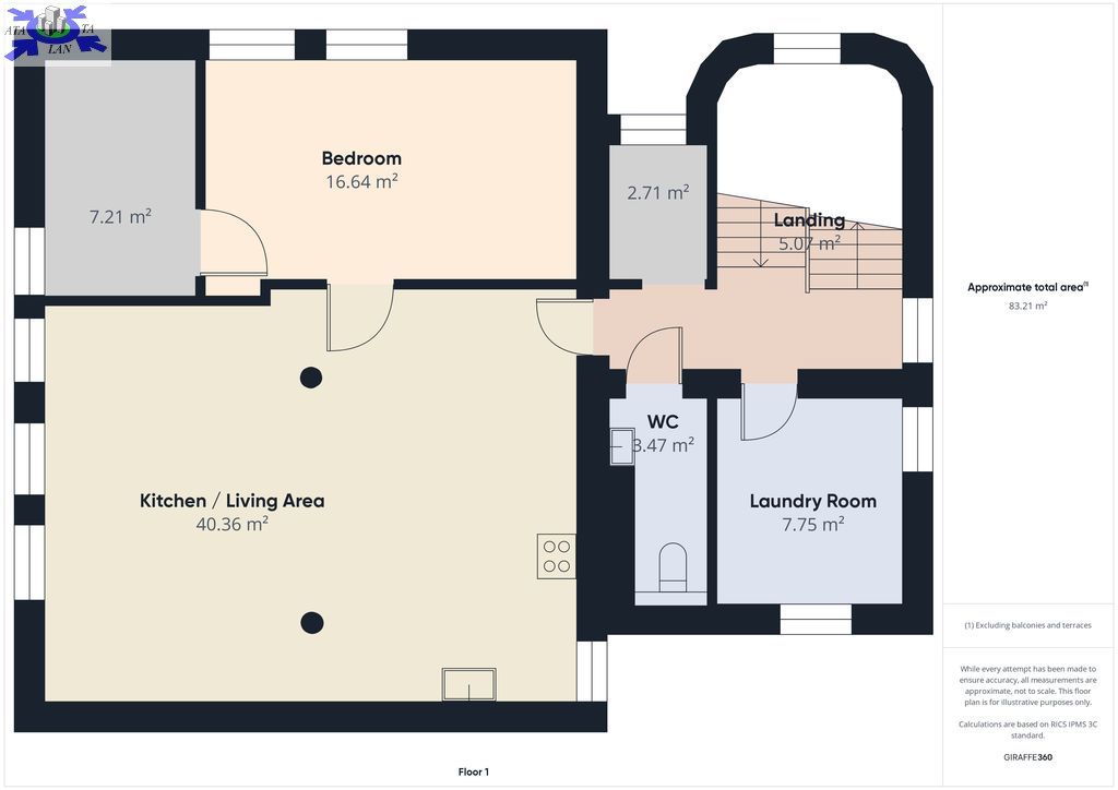
Mieszkanie zajmuje pierwsze piętro oraz poddasze budynku. Pomieszczenia są jasne, a układ pozwala na wyraźny podział na część dzienną i prywatną.
Wnętrze wymaga remontu, co daje możliwość pełnej personalizacji i stworzenia aranżacji dopasowanej do własnych potrzeb.

Poziom pierwszy

salon z aneksem kuchennym o powierzchni ok. 40 m2,

sypialnia,

toaleta,

pomieszczenie gospodarcze / pralnia,

balkon z widokiem na zieleń.

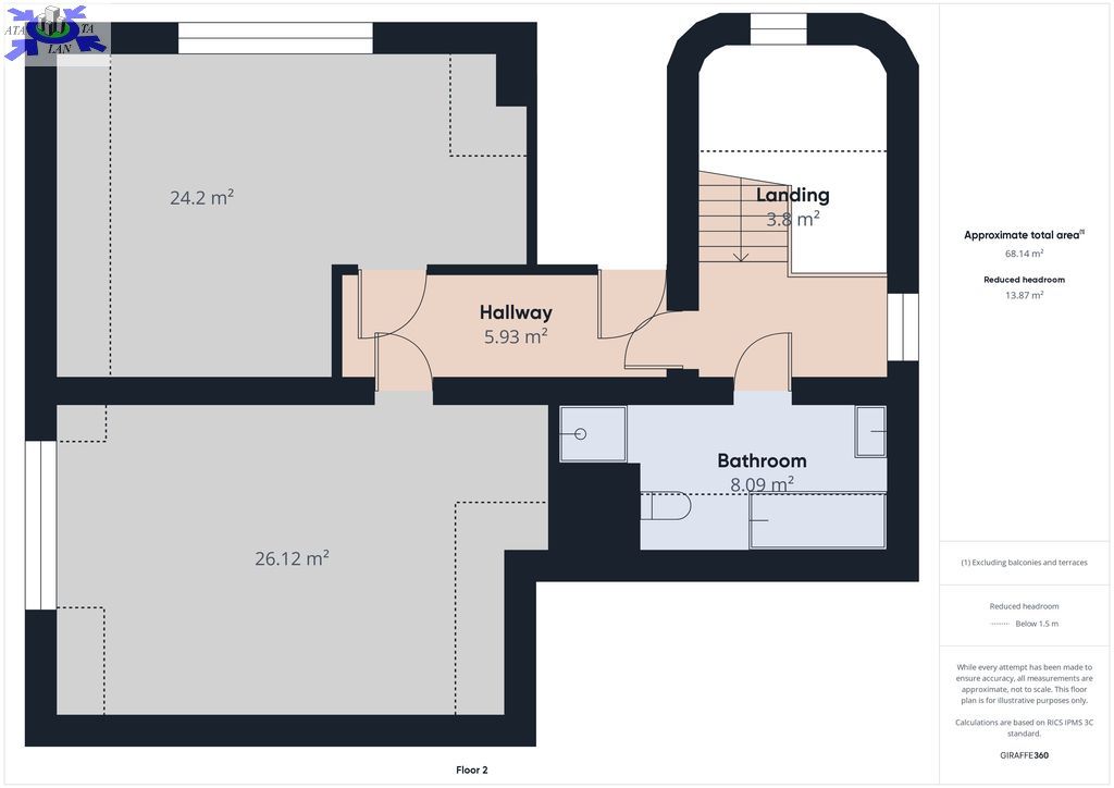
Poziom drugi

dwa duże pokoje,

łazienka z wanną i prysznicem,

korytarz i komunikacja.

Przestrzeń jest bardzo dobrze doświetlona dzięki dużym przeszkleniom i ekspozycji na kilka stron świata.
Rozkład pomieszczeń sprzyja wygodzie codziennego życia i zapewnia każdemu domownikowi poczucie prywatności.

Lokalizacja

Ulica Romualda Traugutta to spokojna, zielona część Pogodna - jednej z najbardziej cenionych dzielnic Szczecina.
Okolica jest kameralna, a jednocześnie dobrze skomunikowana z centrum miasta.

W zasięgu spaceru znajdują się

sklepy i punkty usługowe (Żabka, paczkomat),

szkoły i przedszkola,

przystanki komunikacji miejskiej,

tereny spacerowe i place zabaw.

Połączenie spokoju i pełnej infrastruktury sprawia, że lokalizacja ta doskonale odpowiada potrzebom rodzin.

Dodatkowe informacje

Powierzchnia całkowita 155,30 m2 (zgodnie z księgą wieczystą),

Ogrzewanie gazowe (piec dwufunkcyjny),

Forma własności pełna własność,

Budynek zabudowa szeregowa,

Otoczenie spokojne i zadbane.

Podsumowanie

To mieszkanie stanowi doskonałą propozycję dla rodziny, która szuka przestrzeni i funkcjonalnego układu w dobrej lokalizacji.
Dwupoziomowy charakter, możliwość własnej aranżacji oraz położenie w sercu Pogodna to atuty, które sprawiają, że nieruchomość ma duży potencjał zarówno do zamieszkania, jak i jako inwestycja długoterminowa.

Dodatkowe informacje: telefon, internet, TV kablowa

Kontakt do agenta

Atalanta Nieruchomości
Marii Konopnickiej 32
71-132 Szczecin
tel.: 914875042
email: info@atalanta.szczecin.pl
fax: 914875031

Wyślij zapytanie

Imię i Nazwisko
Telefon
E-mail
Treść zapytania

Wyrażam zgodę na przetwarzanie moich danych osobowych przez firmę dla celów związanych z działalnością pośrednictwa w obrocie nieruchomościami, jednocześnie potwierdzam, iż zostałem poinformowany o tym, iż będę posiadać dostęp do treści swoich danych do ich edycji lub usunięcia.

Wyślij ofertę

E-mail
© 2025 Atalanta Nieruchomości. Wszystkie prawa zastrzeżone.