Kursy walut NBP: USD 3,98 | EUR 4,32 | CHF 4,53 |

Jesteśmy członkiem:           

Wyszukiwarka
Notes
Zgłoś ofertę
Kalkulator
zgłoś ofertę
Mieszkania
Domy
Działki
Lokale
Obiekty
Szczegóły oferty
Rodzaj oferty
mieszkanie ( sprzedaż )
Numer oferty
436552
Miejscowość
SZCZECIN, DRZETOWO
Ulica
Tomasza Nocznickiego
Cena
669 128 PLN kalkulator
Cena za mkw
14 517,86 PLN mkw
Powierzchnia
46.09 m2
Liczba pokoi
3
Piętro
2
Liczba pięter
6
Rodzaj kuchni
aneks
Stan mieszkania
idealny
Rok budowy
2024
Opis
Przedstawiamy do sprzedaży mieszkanie 3-pokojowe w standardzie WYKOŃCZONE POD KLUCZ w nowym budynku z 2024 roku w Szczecinie.
Lokalizacja zapewnia szybki dostęp do ścisłego centrum z uwagi na bezpośrednie sąsiedztwo linii tramwajowej i autobusowej. W otoczeniu znajdują się sklepy dyskontowe - Biedronka, Netto a także Żabka.
10 minut spacerem do Wałów Chrobrego, Bulwarów i Parku Żeromskiego.

Mieszkanie znajduje się na drugim piętrze budynku, wystawa okien południowo-wschodnia.
W budynku dostępna jest winda. Istnieje możliwość kupna miejsca postojowego w hali garażowej w cenie 50.000zł a także miejsca parkingowego na zewnętrznym dziedzińcu w cenie 15.000zł.

Mieszkanie zostało wykończone pod klucz, czyli wyposażone jest m.in. w
* łazienka wykończona w kaflach, z kabina prysznicową typu walk-in zabudowany geberit, szafka z umywalką,
* panele podłogowe w pokojach,

* meble kuchenne w zabudowie ze sprzętem AGD - lodówka, zmywarka, zlew, bateria, płyta grzewcza, piekarnik, okap,
* szafa w przedpokoju,
* stół kuchenny z czterema krzesłami,
* sofa rozkładana lub narożnik rozkładany,
* stolik kawowy, szafka RTV,
* dywan w pokoju dziennym


Ogrzewanie i ciepła woda z sieci miejskiej. W budynku brak gazu.

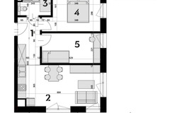
POWIERZCHNIA 46,09mkw w tym
- salon z aneksem kuchenny 17,85mkw,
- pokój 9,92mkw,
- pokój 9,29mkw,
- łazienka 3,36mkw,
- przedpokój 5,67mkw,

- dodatkowo balkon o powierzchni 5,40mkw

Istnieje możliwość wynajęcia mieszkania na czas uzyskiwania kredytu czy też zgody ministerstwa na zakup przedmiotowego mieszkania.


Dodatkowe informacje: balkon, winda, garaż

Kontakt do agenta

Atalanta Nieruchomości
Marii Konopnickiej 32
71-132 Szczecin
tel.: 914875042
email: info@atalanta.szczecin.pl
fax: 914875031

Wyślij zapytanie

Imię i Nazwisko
Telefon
E-mail
Treść zapytania

Wyrażam zgodę na przetwarzanie moich danych osobowych przez firmę dla celów związanych z działalnością pośrednictwa w obrocie nieruchomościami, jednocześnie potwierdzam, iż zostałem poinformowany o tym, iż będę posiadać dostęp do treści swoich danych do ich edycji lub usunięcia.

Wyślij ofertę

E-mail
© 2025 Atalanta Nieruchomości. Wszystkie prawa zastrzeżone.