Kursy walut NBP: USD 3,98 | EUR 4,32 | CHF 4,53 |

Jesteśmy członkiem:           

Wyszukiwarka
Notes
Zgłoś ofertę
Kalkulator
zgłoś ofertę
Mieszkania
Domy
Działki
Lokale
Obiekty
Szczegóły oferty
Rodzaj oferty
mieszkanie ( sprzedaż )
Numer oferty
436448
Miejscowość
SZCZECIN, ZDROJE
Ulica
Torfowa
Cena
719 000 PLN kalkulator
Cena za mkw
9 135,96 PLN mkw
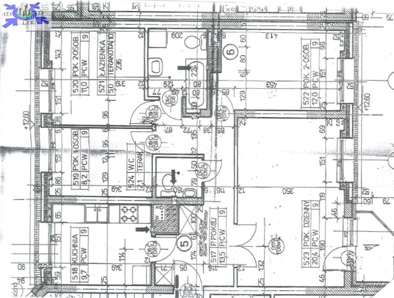
Powierzchnia
78.70 m2
Liczba pokoi
4
Piętro
4
Liczba pięter
4
Stan mieszkania
do remontu
Rok budowy
1993
Opis
Przestronne mieszkanie o powierzchni 78,7 m2, położone w dzielnicy Zdroje. Idealne dla rodziny.
Możliwość zakupu przez osoby spoza UE.

CENA DO NEGOCJACJI

Lokal składa się z
- 4 pokoi, o powierzchni ok. 8m2, 11m2, 12m2 oraz 20m2
- widnej kuchni o powierzchni 9,7m2
- łazienki o powierzchni 5m2
- wc o pow. 2m2
- przedpokoju wraz z korytarzem o łącznej powierzchni ok. 13m2
- balkonu ok. 2m2
- do mieszkania przynależy również piwnica o powierzchni ok. 10 m2, z metalowymi drzwiami, oraz wózkownia.

Okna nieruchomości wychodzą na wschód oraz zachód, co gwarantuje dobre nasłonecznienie oraz piękny widok, m.in na korony Puszczy Bukowej.

Atutem mieszkania jest również jego lokalizacja. Przystanek szybkiego tramwaju lub autobusowy, z którego można dostać się do centrum, znajduje się w odległości 200 metrów. W pobliżu jest szkoła (300m), sklepy (najbliższy w odległości 200m), ryneczek Zdroje (800metrów), poczta oraz kościół (1 km). Zaledwie 2 kilometry dalej jest Puszcza Bukowa.

Przy bloku są miejsca parkingowe dla mieszkańców. Spółdzielnia dzierżawi również teren, na którym znajdują się garaże.



Planujesz skredytować to marzenie - również Ci pomożemy.

Dodatkowe informacje: balkon, piwnica, parking

Kontakt do agenta

Atalanta Nieruchomości
Marii Konopnickiej 32
71-132 Szczecin
tel.: 914875042
email: info@atalanta.szczecin.pl
fax: 914875031

Wyślij zapytanie

Imię i Nazwisko
Telefon
E-mail
Treść zapytania

Wyrażam zgodę na przetwarzanie moich danych osobowych przez firmę dla celów związanych z działalnością pośrednictwa w obrocie nieruchomościami, jednocześnie potwierdzam, iż zostałem poinformowany o tym, iż będę posiadać dostęp do treści swoich danych do ich edycji lub usunięcia.

Wyślij ofertę

E-mail
© 2026 Atalanta Nieruchomości. Wszystkie prawa zastrzeżone.