Kursy walut NBP: USD 3,98 | EUR 4,32 | CHF 4,53 |

Jesteśmy członkiem:           

Wyszukiwarka
Notes
Zgłoś ofertę
Kalkulator
zgłoś ofertę
Mieszkania
Domy
Działki
Lokale
Obiekty
Szczegóły oferty
Rodzaj oferty
działka budowlana ( sprzedaż )
Numer oferty
436329
Miejscowość
DOBRA
Cena
950 000 PLN kalkulator
Cena za mkw
294,94 PLN mkw
Powierzchnia
3221.00 m2
Droga dojazdowa
asfaltowa
Opis
Dobra - w otulinie lasu, idealna inwestycja w ciszy i naturze Na sprzedaż wyjątkowa działka budowlana o powierzchni 3 221 m2, położona w jednej z najbardziej pożądanych lokalizacji w gminie Dobra, z prawomocnym pozwoleniem na budowę trzech budynków w zabudowie bliźniaczej (łącznie 6 lokali mieszkalnych).
To gotowa inwestycja w dynamicznie rozwijającym się rejonie, który łączy bliskość natury z doskonałym dojazdem do Szczecina.
Idealna propozycja dla dewelopera lub inwestora, który chce rozpocząć realizację projektu bez czekania na formalności.
Lokalizacja Nieruchomość położona jest w Dobrej, w spokojnej, zielonej części miejscowości - w bezpośrednim sąsiedztwie lasu i nowoczesnych domów jednorodzinnych.
To miejsce, w którym każdego dnia można cieszyć się śpiewem ptaków, czystym powietrzem i kontaktem z naturą, zachowując jednocześnie wygodę życia blisko miasta.
W okolicy szkoła, sklepy, komunikacja miejska i ścieżki spacerowe.
Parametry działki powierzchnia 3 221 m2,
teren płaski i suchy,
dojazd drogą utwardzoną,
kształt regularny, umożliwiający wygodny układ zabudowy,
media [prąd, woda, gaz, kanalizacja - dopisz aktualne dane],
przeznaczenie zabudowa jednorodzinna bliźniacza,
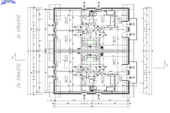
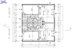
prawomocne pozwolenie na budowę 3 budynków (6 lokali) - pełna dokumentacja do wglądu.
Projekt inwestycji Projekt przewiduje budowę trzech nowoczesnych budynków bliźniaczych o spójnej, eleganckiej architekturze.
Każdy lokal posiadać będzie
własny ogródek,
dwa miejsca parkingowe - w tym jedno w garażu,
funkcjonalny, rodzinny układ pomieszczeń.
To inwestycja, którą można rozpocząć natychmiast - wszystkie decyzje są ważne i zatwierdzone.
Atuty oferty pozwolenie na budowę - projekt gotowy do realizacji,
duża, ustawna działka w pięknym otoczeniu,
cicha i zielona okolica w otulinie lasu,
sąsiedztwo nowoczesnych domów,
szybki dojazd do Szczecina,
idealna inwestycja z potencjałem i wysoką stopą zwrotu.

Zainwestuj w spokój i naturę - działka w Dobrej z pozwoleniem na budowę czeka na realizację.
Las za płotem, przestrzeń do oddychania i gotowy projekt - wszystko, czego potrzebujesz, by zacząć od zaraz.

Cena 950 000 zł Kontakt Edgar Junda
tel. 505 147 470


Dodatkowe informacje: media - prąd, media - gaz, media - woda

Kontakt do agenta

Atalanta Nieruchomości
Marii Konopnickiej 32
71-132 Szczecin
tel.: 914875042
email: info@atalanta.szczecin.pl
fax: 914875031

Wyślij zapytanie

Imię i Nazwisko
Telefon
E-mail
Treść zapytania

Wyrażam zgodę na przetwarzanie moich danych osobowych przez firmę dla celów związanych z działalnością pośrednictwa w obrocie nieruchomościami, jednocześnie potwierdzam, iż zostałem poinformowany o tym, iż będę posiadać dostęp do treści swoich danych do ich edycji lub usunięcia.

Wyślij ofertę

E-mail
© 2025 Atalanta Nieruchomości. Wszystkie prawa zastrzeżone.