Kursy walut NBP: USD 3,98 | EUR 4,32 | CHF 4,53 |

Jesteśmy członkiem:           

Wyszukiwarka
Notes
Zgłoś ofertę
Kalkulator
zgłoś ofertę
Mieszkania
Domy
Działki
Lokale
Obiekty
Szczegóły oferty
Rodzaj oferty
obiekt ( sprzedaż )
Numer oferty
31115
Miejscowość
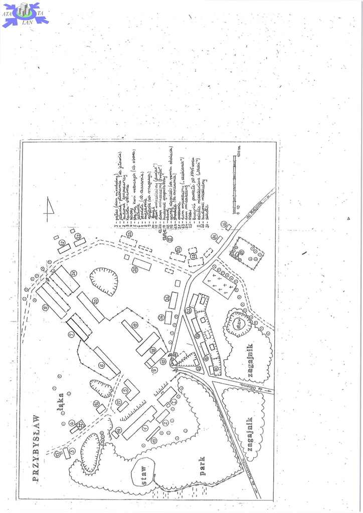
PRZYBYSŁAW
Cena
2 900 000 PLN kalkulator
Cena za mkw
4 833,33 PLN mkw
Powierzchnia
600.00 m2
Liczba pokoi
10
Liczba pięter
2
Rok budowy
1850
Droga dojazdowa
z kostki brukowej
Opis
Nieruchomość zlokalizowana kilka kilometrów od jednego z największych pól golfowych w Europie MODRY LAS.

Dwór w Przybysławiu to klasycystyczna siedziba szlachecka, która stanowiła siedzibę rodu von Borcke. Znajduje się w odległości ok. 100 km od Szczecina na terenie gminy Krzęcin. Łącznie z zabytkowym parkiem i podwórzem gospodarczym stanowi jeden z nielicznych , całościowo zachowanych zespołów folwarcznych i należy do nielicznych obiektów rezydencjonalnych , który w okresie powojennym miał stałego użytkownika i był na bieżąco remontowany. Zabytkowy park wraz z pałacem zajmuje powierzchnie ok. 6 ha. Jest to idealne miejsce zarówno na prowadzenie działalności AGROTURYSTYCZNEJ, REZYDENCJĘ , medycynę estetyczną czy elegancki dom seniora .
Ważna informacja w styczniu 2007 został zakończony remont dachu zgodnie z wymogami konserwatora zabytków.
ww l. 80-tych wykonano dreny w piwnicy, wymieniono stropy drewniane, wprowadzono stropy ceramiczne. Obiekt osadzony jest na ławach z kamienia, posadowienie stabilne, ściany piwnicy kompletne , niezagrzybione o głębokości 280 cm, zagłębienie w grunt 140 cm, dostępne od wewnątrz po schodach przy windzie kuchennej.
Od strony parkowej- taras. Do wnętrza budynku prowadzą dwa wejścia pośrodku długich ścian

Dwór w Przybysławiu należy do nielicznych , który po adaptacji do celów mieszkalno- biurowych , zachował liczne elementy pierwotnego wystroju i wyposażenia z XIX w. Najcenniejsze - w pomieszczeniach reprezentacyjnych, hallu i sali balowej
-drewniana klatka schodowa z galeryjką i balustradą
-liczne szafy wnękowe
- kominek z kamienia imitującego marmur
- dwuskrzydłowe drzwi połaciowe
- medaliony na ścianach
-neogotycki piec kaflowy
- neobarokowy piec kaflowy, winda kuchenna
PODŁOGI
obręb sieni, korytarza, sali balowej, jadalni- deski
hall i salon- historyczne parkiety - nalepki z datą 1842)
pomieszczenia sanitarne - współczesna terakota
STOLARKA
schody frontowe- kamienne w hallu drewniane z tralkową balustradą prowadzą na galeryjkę, do piwnicy - drewniane, ogólny stan dobry, bez zagrożeń konstrukcyjnych
OKNA wszystkie osadzone w pierwotnych otworach generalnie zachowane okna parteru i II kondygnacji
DRZWI w większości pierwotne XIX. w. nowe - do pomieszczeń sanit drzwi frontowe- 2- skrzydłowe, podwójnie łamane, drzwi do wnęki pod schodami galeryjki- zamykane ozdobną metalową kratą z motywami winorośli
ELEWACJE- uległy największym zmianom, w trakcie remontu uproszczono architekturę.
UKŁAD WNĘTRZA- mimo remontów nie wykazuje cech wtórnych zachowany historyczny podział cześc płd.- zach.- jako prywatna płn.,-wsch.- reprezentacyjna, mezzanino i poddasze - mieszkalno-biurowa .
Parter dworu ma charakter dwutraktowy pośrodku jest przedsionek i reprezentacyjny hall z klatka schodową i galeryjką . Po północnej stronie sieni jest krótki korytarz międzytraktowy, za nim jadalnia a przy ścianie frontowej pomieszczenie z winda kuchnia ,łazienka i wc. Z kolei po lewej stronie hallu znajduje się sala balowa skomunikowana z ww hallem, korytarzem i jadalnia. Po prawej stronie hallu i sieni znajduje sie część prywatna wtórnie podzielona 2 salony, 2 pokoje, sypialnia, kuchnia, łazienka .
Mezzanino - pomieszczenia mieszkalne i gospodarcze.( do remontu)
PARK - dworski z I poł. XIXw. z achowana historycznie kompozycją, podstawowy skład gatunkowy i ilościowy.Lipy i buki ( ok. 150 lat) , Świerki , olsze,klony 9 ok. 70 lat) , drzewostan zdrowy, doraźnie pielęgnowany, współczesne żywopłoty z bukszpaneu , kilka stawów. Ogrodzenie - w osi drogi wiejskiej- mur ceglany na kamiennej podmurówce, dalej zabudowania folwarczne i dwór, od południa metalowa siatka.
FOLWARK kształt odwróconej lit.T, bud gospodarczo- mieszkalny, jałownik, stajnia, owczarnia , ciaplarnia, stolarnia,gołębnik,

Dodatkowe informacje: ochrona

Kontakt do agenta

Atalanta Nieruchomości
Marii Konopnickiej 32
71-132 Szczecin
tel.: 914875042
email: info@atalanta.szczecin.pl
fax: 914875031

Wyślij zapytanie

Imię i Nazwisko
Telefon
E-mail
Treść zapytania

Wyrażam zgodę na przetwarzanie moich danych osobowych przez firmę dla celów związanych z działalnością pośrednictwa w obrocie nieruchomościami, jednocześnie potwierdzam, iż zostałem poinformowany o tym, iż będę posiadać dostęp do treści swoich danych do ich edycji lub usunięcia.

Wyślij ofertę

E-mail
© 2026 Atalanta Nieruchomości. Wszystkie prawa zastrzeżone.