Kursy walut NBP: USD 3,98 | EUR 4,32 | CHF 4,53 |

Jesteśmy członkiem:           

Wyszukiwarka
Notes
Zgłoś ofertę
Kalkulator
zgłoś ofertę
Mieszkania
Domy
Działki
Lokale
Obiekty
Szczegóły oferty
Rodzaj oferty
obiekt produkcyjno_magazynowy ( sprzedaż )
Numer oferty
436157
Miejscowość
TANOWO
Cena
1 200 000 PLN kalkulator
Cena za mkw
1 929,26 PLN mkw
Powierzchnia
622.00 m2
Opis
Do zakupu poleca się obiekt magazynowy zlokalizowany w Tanowie.
Ze względu na położenie z dużą widocznością oraz duży parking idealnie nadaje się również na firmowy salon.

Hala pożona jest zaledwie kilkaset metrów od planowanej drogi szybkiego ruchu, co niewątpliwie zwiększa jej atrakcyjność.

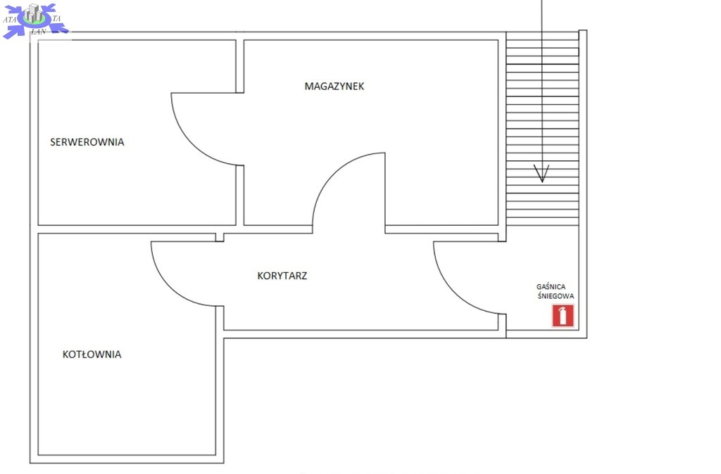
Przedmiotem oferty jest działka o powierzchni 1301 m2 zabudowana budynkiem o powierzchni 622 m2, dodatkowo piwnice ok. 50 m2.
Budynek podzielony jest na część biurową ok 100 m2 oraz magazynową (rzuty w galerii).
Część biurowa wymaga remontu, była wykorzystywana jako miejsce zamieszkania dla pracowników.
Przed budynkiem znajduje się parking na kilkanaście aut wyłożony polbrukiem!

Kilka ważnych informacji
- hala jest murowana, docieplona,
- niepylące posadzki żywiczne,
- możliwość doprowadzenia do obiektu prądu o wysokiej mocy,
- rozprowadzona siła we wszsytkich pomieszczeniach,
- rozprowadzona instalacja sprężonego powietrza,
- rozprowadzona instalacja alarmowa,
- ogrzewanie na paliwo stałe oraz gazowe,
- dojazd dla TIRów bezpośrednio pod halę.

Mośliwość niemal natychmiastowego przejęcia lkuczy do obiektu.
Podana cena jest ceną brutto bez Vat.

Zapraszam na prezentację!!



Kontakt do agenta

Atalanta Nieruchomości
Marii Konopnickiej 32
71-132 Szczecin
tel.: 914875042
email: info@atalanta.szczecin.pl
fax: 914875031

Wyślij zapytanie

Imię i Nazwisko
Telefon
E-mail
Treść zapytania

Wyrażam zgodę na przetwarzanie moich danych osobowych przez firmę dla celów związanych z działalnością pośrednictwa w obrocie nieruchomościami, jednocześnie potwierdzam, iż zostałem poinformowany o tym, iż będę posiadać dostęp do treści swoich danych do ich edycji lub usunięcia.

Wyślij ofertę

E-mail
© 2026 Atalanta Nieruchomości. Wszystkie prawa zastrzeżone.