Kursy walut NBP: USD 3,98 | EUR 4,32 | CHF 4,53 |

Jesteśmy członkiem:           

Wyszukiwarka
Notes
Zgłoś ofertę
Kalkulator
zgłoś ofertę
Mieszkania
Domy
Działki
Lokale
Obiekty
Szczegóły oferty
Rodzaj oferty
dom wolnostojacy ( sprzedaż )
Numer oferty
436046
Miejscowość
NOWE WARPNO
Cena
1 990 000 PLN kalkulator
Cena za mkw
7 960 PLN mkw
Powierzchnia
250.00 m2
Pow. działki
4900.00 m2
Liczba pokoi
8
Liczba pięter
1
Rodzaj kuchni
aneks
Stan domu
bardzo dobry
Rok budowy
1922
Droga dojazdowa
asfaltowa
Opis
Na sprzedaż komfortowy dom, położony na działce o powierzchni 4900 m2 z widokiem na Jezioro Nowowarpieńskie.
Nieruchomość zlokalizowana w Nowym Warpnie przy granicy Niemieckiej oraz w niedalekiej odległości od Szczecina (około 35 km).

Dom przeszedł generalny remont. Zachowane zostały belki konstrukcyjne oraz drewno, które w połączeniu z nowoczesnym stylem nadają nieruchomości niesamowity klimat.
Pomieszczenia słoneczne i eleganckie w odcieniach bieli. Na parterze jak i na piętrze położone drewno.
Kuchnia z systemem BLUM, sprzęt AGD.
Z salonu oraz sypialni na parterze wyjście na piękny ogród z drzewami owocowymi.

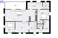
Na powierzchnię 250 m2 składa się

Parter
* Hol - 13,13 m2
* Salon z aneksem kuchennym z wyjściem na taras (19,77 m2) - 47,42 m2
* 2 sypialnie (jedna garderobą) - 15,39 m2 oraz 13,46 m2
* 2 łazienki (jedna do własnej aranżacji) - 5,75 m2 oraz 3,12 m2
* 2 pokoje - 18,61 m2 oraz 13,37 m2
* Pomieszczenie gospodarcze 9,38 m2

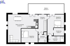
Piętro
* Salon (z możliwością/miejscem na aneks kuchenny) - 49,95 m2
* Sypialnia - 22,27 m2 z garderobą - 6,89 m2 oraz łazienką - 7,96 m2 do własnej aranżacji,
* Sypiania - 19,32 m2,
* Łazienka - 6,12 m2,
* Korytarz - 13,49 m2.

Niebywale urokliwe miejsce oraz dom zaprojektowany z dbałością o każdy szczegół.
Jest idealnym miejscem dla rodzin lub zakup pod inwestycje (możliwość zrobienia dwóch niezależnych mieszkań).

Najważniejsze informacje
* dom wolnostojący o pow. 250 m2,
* działka 4900 m2 z licznymi drzewami owocowymi,
* możliwość zrobienia dwóch niezależnych mieszkań,
* ogrzewanie pompą ciepłą,
* na parterze ogrzewanie podłogowe,
* nowe okna 3-szybowe,
* nowa elewacja
* wiata na samochód,

Doskonała lokalizacja zapewniające ciszę, spokój.
W pobliżu sklepy, kort tenisowy, plaża oraz marina.

WYŁĄCZNOŚĆ

Zapraszamy.

Dodatkowe informacje: garaż

Kontakt do agenta

Atalanta Nieruchomości
Marii Konopnickiej 32
71-132 Szczecin
tel.: 914875042
email: info@atalanta.szczecin.pl
fax: 914875031

Wyślij zapytanie

Imię i Nazwisko
Telefon
E-mail
Treść zapytania

Wyrażam zgodę na przetwarzanie moich danych osobowych przez firmę dla celów związanych z działalnością pośrednictwa w obrocie nieruchomościami, jednocześnie potwierdzam, iż zostałem poinformowany o tym, iż będę posiadać dostęp do treści swoich danych do ich edycji lub usunięcia.

Wyślij ofertę

E-mail
© 2025 Atalanta Nieruchomości. Wszystkie prawa zastrzeżone.