Kursy walut NBP: USD 3,98 | EUR 4,32 | CHF 4,53 |

Jesteśmy członkiem:           

Wyszukiwarka
Notes
Zgłoś ofertę
Kalkulator
zgłoś ofertę
Mieszkania
Domy
Działki
Lokale
Obiekty
Szczegóły oferty
Rodzaj oferty
mieszkanie ( sprzedaż )
Numer oferty
435405
Miejscowość
SZCZECIN, CENTRUM
Ulica
5 Lipca
Cena
255 000 PLN kalkulator
Cena za mkw
7 063,71 PLN mkw
Powierzchnia
36.10 m2
Liczba pokoi
1
Piętro
4
Liczba pięter
4
Stan mieszkania
do wykonczenia
Rok budowy
2023
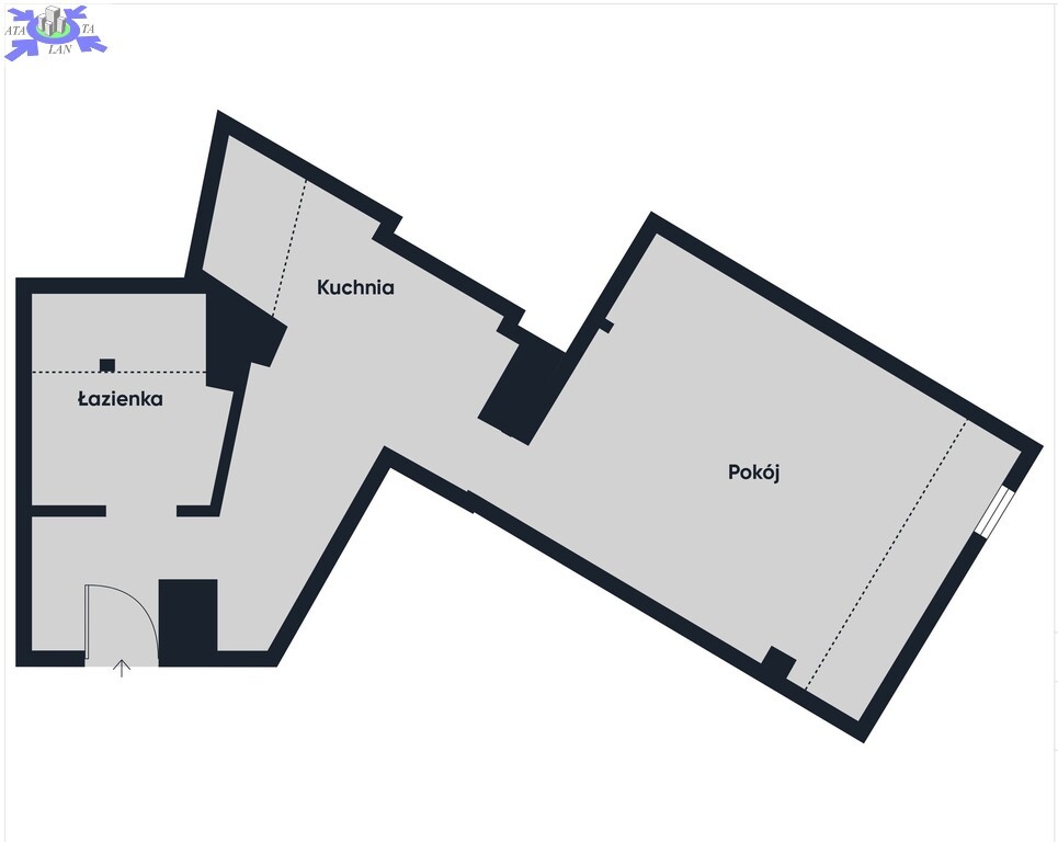
Opis
Polecam na sprzedaż dużą kawalerkę w świetnej lokalizacji!

Na powierzchnię użytkową 36,10 mkw. składa się
-przestronny i dobrze doświetlony salon
-oddzielna kuchnia z oknem
-łazienka z WC
-przedpokój

Mieszkanie sprzedawane w standardzie do własnego wykończenia, co stwarza możliwość własnej aranżacji przestrzeni. Atutem jest często poszukiwana oddzielna kuchnia oraz bardzo niskie koszty eksploatacyjne, które w postaci czynszu wynoszą jedynie 163,14 PLN/mc.

Wartym uwagi jest lokalizacja, która zapewnia bezpośrednią bliskość uczelni, centrum miasta, komunikacji miejskiej, sklepów oraz terenów zielonych.

Świetna oferta inwestycyjna, jak również mieszkanie na start!

Zapraszam do osobistej weryfikacji tej oferty!

Kontakt do agenta

Atalanta Nieruchomości
Marii Konopnickiej 32
71-132 Szczecin
tel.: 914875042
email: info@atalanta.szczecin.pl
fax: 914875031

Wyślij zapytanie

Imię i Nazwisko
Telefon
E-mail
Treść zapytania

Wyrażam zgodę na przetwarzanie moich danych osobowych przez firmę dla celów związanych z działalnością pośrednictwa w obrocie nieruchomościami, jednocześnie potwierdzam, iż zostałem poinformowany o tym, iż będę posiadać dostęp do treści swoich danych do ich edycji lub usunięcia.

Wyślij ofertę

E-mail
© 2026 Atalanta Nieruchomości. Wszystkie prawa zastrzeżone.