Kursy walut NBP: USD 3,98 | EUR 4,32 | CHF 4,53 |

Jesteśmy członkiem:           

Wyszukiwarka
Notes
Zgłoś ofertę
Kalkulator
zgłoś ofertę
Mieszkania
Domy
Działki
Lokale
Obiekty
Szczegóły oferty
Rodzaj oferty
mieszkanie ( sprzedaż )
Numer oferty
429480
Miejscowość
ŚWINOUJŚCIE
Ulica
Heleny Modrzejewskiej
Cena
570 000 PLN kalkulator
Cena za mkw
11 697,11 PLN mkw
Powierzchnia
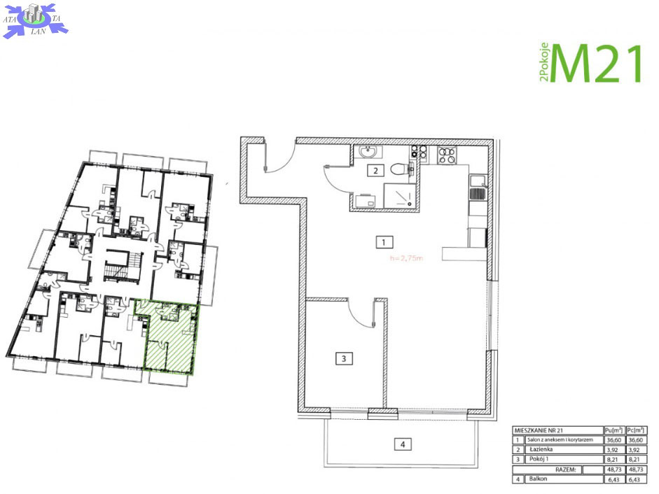
48.73 m2
Liczba pokoi
2
Piętro
2
Liczba pięter
4
Rodzaj kuchni
aneks
Stan mieszkania
idealny
Rok budowy
2023
Opis
Planujesz skredytować to marzenie - zadzwoń.

Ofertę sprzedaży stanowi kompletnie umeblowany i wyposażony lokal mieszkalny w stanie deweloperskim zlokalizowany w nowym budynku wielorodzinnym z 2023 roku, dzielnica Warszów, Świnoujście.

Prezentowany lokal mieszkalny ma powierzchnię 48,73 m2 i składa się z dwóch rozkładowych pokoi w tym jeden w aneksie kuchennym z wyjsciem na obszerny balkon 6,43 m2 (36,60/8,21m2) oraz łazienki 3,92 m2.

Budynek pięcio kondygnacyjny, w którym znajdują się 34 lokale mieszkalne, wykonany z kerazmytu i betonu. Obiekt został przystosowany dla osób niepelnosprawnych, winda zewnętrzna i wewnętrzna.

Deweloper zastosował nowoczesne rozwiązania oraz udogodnienia dla właścicieli
- przestronne klatki schodowe
- garaż podziemny z 24 stanowiskami
- 10 miejsc postojowych zadaszonych na zewnątrz posesji
- komórki lokatorskie w cenie nieruchomości
- indywidualne ogrzewanie

Super lokalizacja ( otoczenie lasu, niemal 1,5 kilometrowy odcinek nowej drogi rowerowej wzdłuż ulic Jachtowej i Rogozińskiego), duzy potencjał inwestycyjny (stały wzrost cen nieruchomości na tym terenie) to główne atuty oferowanej nieruchomości.

Uwaga do ceny mieszkania obligatoryjnie należy doliczyć zakup miejsca postojowego na zewnątrz w cenie 30 000 zł. Lokal zwolniony jest z podatku PCC.

Zapraszamy na prezentację)









Opis dodatkowy dołączany w eksporcie






Dodatkowe informacje: balkon, winda, garaż

Kontakt do agenta

Atalanta Nieruchomości
Marii Konopnickiej 32
71-132 Szczecin
tel.: 914875042
email: info@atalanta.szczecin.pl
fax: 914875031

Wyślij zapytanie

Imię i Nazwisko
Telefon
E-mail
Treść zapytania

Wyrażam zgodę na przetwarzanie moich danych osobowych przez firmę dla celów związanych z działalnością pośrednictwa w obrocie nieruchomościami, jednocześnie potwierdzam, iż zostałem poinformowany o tym, iż będę posiadać dostęp do treści swoich danych do ich edycji lub usunięcia.

Wyślij ofertę

E-mail
© 2026 Atalanta Nieruchomości. Wszystkie prawa zastrzeżone.