Kursy walut NBP: USD 3,98 | EUR 4,32 | CHF 4,53 |

Jesteśmy członkiem:           

Wyszukiwarka
Notes
Zgłoś ofertę
Kalkulator
zgłoś ofertę
Mieszkania
Domy
Działki
Lokale
Obiekty
Szczegóły oferty
Rodzaj oferty
działka budowlana ( sprzedaż )
Numer oferty
435124
Miejscowość
BIELKOWO
Cena
3 142 950 PLN kalkulator
Cena za mkw
115 PLN mkw
Powierzchnia
27330.00 m2
Droga dojazdowa
asfaltowa
Opis
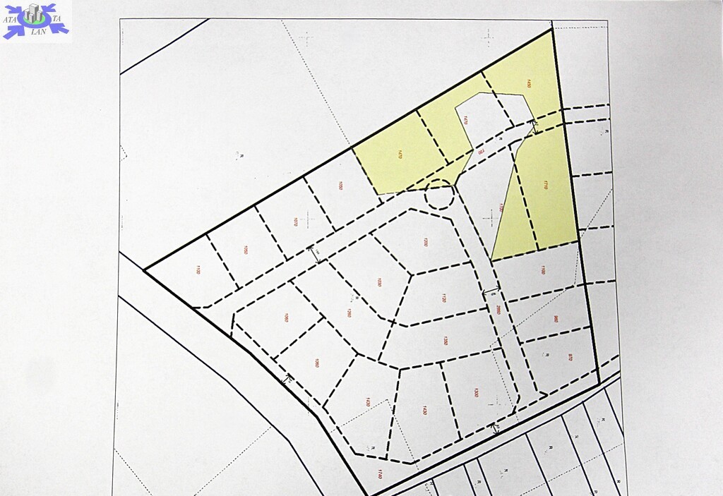
Ofertą jest sprzedaż działek w miejscowości Bielkowo, gm. Kobylanka.
Łączna powierzchnia działek wraz z pełną infrastrukturą drogową wynosi 32 963 m2.
Działki idealnie nadają się pod zabudowę jednorodzinną lub przemysłowo-usługową, zgodnie z kierunkami wyznaczonymi w Studium Uwarunkowań i Kierunków Zagospodarowania Przestrzennego.
Doskonała lokalizacja - tylko 5 km od węzła Motaniec (S10)

Parametry zabudowy Powierzchnia zabudowy do 17% powierzchni działki
Powierzchnia biologicznie czynna minimum 60%
Dojazd utwardzona droga wewnętrzna
Media woda, prąd, gaz - w drodze przy działkach
Kanalizacja planowana realizacja do połowy przyszłego roku

Lokalizacja i atuty 5 km do węzła Motaniec (droga ekspresowa S10) - szybki dojazd do Szczecina (ok. 30 min) i Stargardu (ok. 10 min)
3 km do Jeziora Miedwie - jedno z największych jezior w Polsce, idealne do rekreacji
Cicha, spokojna okolica - atrakcyjna zarówno dla inwestora deweloperskiego, jak i firm poszukujących terenów pod działalność

Atuty inwestycyjne

Możliwość realizacji osiedla domów jednorodzinnych lub zakładów usługowych/magazynowych
Pełna infrastruktura drogowa i dostępność mediów
Atrakcyjne warunki zabudowy
Bliskość głównych arterii komunikacyjnych
Zainteresowanych inwestorów zapraszam do kontaktu po więcej szczegółów oraz dokumentację.

Możliwość oględzin w terenie po wcześniejszym umówieniu.

Dodatkowe informacje: media - prąd, media - gaz, media - woda

Kontakt do agenta

Atalanta Nieruchomości
Marii Konopnickiej 32
71-132 Szczecin
tel.: 914875042
email: info@atalanta.szczecin.pl
fax: 914875031

Wyślij zapytanie

Imię i Nazwisko
Telefon
E-mail
Treść zapytania

Wyrażam zgodę na przetwarzanie moich danych osobowych przez firmę dla celów związanych z działalnością pośrednictwa w obrocie nieruchomościami, jednocześnie potwierdzam, iż zostałem poinformowany o tym, iż będę posiadać dostęp do treści swoich danych do ich edycji lub usunięcia.

Wyślij ofertę

E-mail
© 2026 Atalanta Nieruchomości. Wszystkie prawa zastrzeżone.