Kursy walut NBP: USD 3,98 | EUR 4,32 | CHF 4,53 |

Jesteśmy członkiem:           

Wyszukiwarka
Notes
Zgłoś ofertę
Kalkulator
zgłoś ofertę
Mieszkania
Domy
Działki
Lokale
Obiekty
Szczegóły oferty
Rodzaj oferty
dom wolnostojacy ( sprzedaż )
Numer oferty
425875
Miejscowość
CHOSZCZNO
Cena
1 249 999 PLN kalkulator
Cena za mkw
7 444,9 PLN mkw
Powierzchnia
167.90 m2
Pow. działki
992.00 m2
Liczba pokoi
6
Liczba pięter
1
Rodzaj kuchni
otwarta
Stan domu
bardzo dobry
Rok budowy
2023
Droga dojazdowa
utwardzona
Opis
Na sprzedaż piękny, przestronny dom wolnostojący, znajdujący się w bliskiej odległości od jeziora.

Jeśli poszukujesz domu z dala od zgiełku dużego miasta, otoczonego lasem oraz w bliskiej odległości do jeziora to ta oferta jest właśnie dla Ciebie.

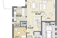
W skład nieruchomości wchodzą


Parter


- bardzo duży salon z wyjściem na taras 64m2 i do ogrodu,
- duża, jasna kuchnia z jadalnią,
- łazienka,
- przestronny hall,
- sypialnia z garderobą
- pokój


Poziom I


- trzy sypialnie z wyjściem na taras (dwie sypialnie z garderobą),
- łazienka,
- hall

Projekt domu LIBRA

Dom powstał z wysokiej jakości materiałów, na dużej działce, został tak zaprojektowany, że zapewnia właścicielom przestrzeń i swobodę. Ma duże okna z widokiem na pięknie zagospodarowany ogród i zieleń za ogrodzeniem. Z pewnością zaspokoi potrzeby wymagających klientów.


Dom wyróżnia przede wszystkim jakość, funkcjonalność i pomysłowa aranżacja wnętrz.

Nieruchomość znajduje się w dzielnicy willowej Choszczna.


Termin wydania nieruchomości oraz kwestie związane z wyposażeniem pozostają do uzgodnienia.

Dodatkowe informacje udzielę telefonicznie.

Zapraszam na prezentację !

Zapraszamy do kontaktu i umówienia się na prezentację tej wyjątkowej nieruchomości. To idealne miejsce dla osób szukających nowoczesnego domu w harmonii z naturą.

Oferta na wyłączność! Nie szukaj dalej i umów się na prezentację !


Kontakt do agenta

Atalanta Nieruchomości
Marii Konopnickiej 32
71-132 Szczecin
tel.: 914875042
email: info@atalanta.szczecin.pl
fax: 914875031

Wyślij zapytanie

Imię i Nazwisko
Telefon
E-mail
Treść zapytania

Wyrażam zgodę na przetwarzanie moich danych osobowych przez firmę dla celów związanych z działalnością pośrednictwa w obrocie nieruchomościami, jednocześnie potwierdzam, iż zostałem poinformowany o tym, iż będę posiadać dostęp do treści swoich danych do ich edycji lub usunięcia.

Wyślij ofertę

E-mail
© 2025 Atalanta Nieruchomości. Wszystkie prawa zastrzeżone.