Kursy walut NBP: USD 3,98 | EUR 4,32 | CHF 4,53 |

Jesteśmy członkiem:           

Wyszukiwarka
Notes
Zgłoś ofertę
Kalkulator
zgłoś ofertę
Mieszkania
Domy
Działki
Lokale
Obiekty
Szczegóły oferty
Rodzaj oferty
dom ( sprzedaż )
Numer oferty
434315
Miejscowość
DOBRA
Cena
723 000 PLN kalkulator
Cena za mkw
9 550,86 PLN mkw
Powierzchnia
75.70 m2
Pow. działki
103.90 m2
Liczba pokoi
4
Liczba pięter
2
Rodzaj kuchni
aneks
Stan domu
idealny
Rok budowy
2025
Opis
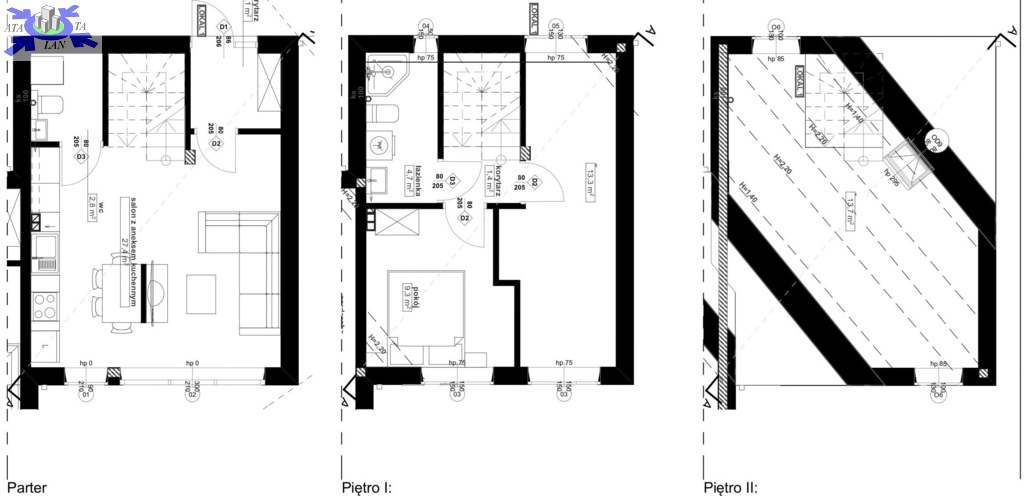
Prezentujemy Państwu na sprzedaż domy w zabudowie szeregowej o pow. użytkowej 75,7 m2 ( całkowita 89 m2) w nowopowstającej inwestycji blisko lasu w gm. Dobra.

Do sprzedaży 4 domy.

Ceny są uzależnione od wielkości działki
Dom I - 104 m2 działki - 723 000 ZŁ
Dom II - 45 m2 działki - 699 000 ZŁ
Dom III - 66 m2 działki - 713 000 ZŁ
Dom IV - 173 m2 działki - 743 000 ZŁ

Usytuowanie ogrodów - południowy wschód


Na powierzchnię domu składają się 3 poziomy.

I Poziom - salon z aneksem kuchennym o pow. ok. 27,5 m2, WC, korytarz oraz schowek
II Poziom - 2 sypialnie o pow. ok 9.5 m2 i 13, 5 m2, łazienka oraz korytarz
II Poziom - sypialnia o pow. ok. 13,5 m2

Do każdego domu przynależą 2 miejsca postojowe - płatne dodatkowo 26 000 zł.

Domy będą oddane w standardzie deweloperskim. Ogrzewanie - pompa ciepła + podłogowe. Dodatkowo przygotowanie instalacji elektrycznej pod fotowoltaikę.
Okna PCV 3 szybowe.

Brak Podatku PCC !

Domy w bardzo klimatycznym miejscu, przy lesie. Okolica gwarantuje dużo miejsc do rekreacji a także dobry dostęp do komunikacji miejskiej oraz punktów usługowo-handlowych.
Szczególnie polecamy ze względu na lokalizację!

Zapraszamy na prezentacje


Dodatkowe informacje: garaż

Kontakt do agenta

Atalanta Nieruchomości
Marii Konopnickiej 32
71-132 Szczecin
tel.: 914875042
email: info@atalanta.szczecin.pl
fax: 914875031

Wyślij zapytanie

Imię i Nazwisko
Telefon
E-mail
Treść zapytania

Wyrażam zgodę na przetwarzanie moich danych osobowych przez firmę dla celów związanych z działalnością pośrednictwa w obrocie nieruchomościami, jednocześnie potwierdzam, iż zostałem poinformowany o tym, iż będę posiadać dostęp do treści swoich danych do ich edycji lub usunięcia.

Wyślij ofertę

E-mail
© 2025 Atalanta Nieruchomości. Wszystkie prawa zastrzeżone.