Kursy walut NBP: USD 3,98 | EUR 4,32 | CHF 4,53 |

Jesteśmy członkiem:           

Wyszukiwarka
Notes
Zgłoś ofertę
Kalkulator
zgłoś ofertę
Mieszkania
Domy
Działki
Lokale
Obiekty
Szczegóły oferty
Rodzaj oferty
lokal biurowy ( sprzedaż )
Numer oferty
434105
Miejscowość
SZCZECIN
Ulica
Świętego Ducha
Cena
1 590 000 PLN kalkulator
Cena za mkw
10 600 PLN mkw
Powierzchnia
150.00 m2
Liczba pokoi
6
Liczba pięter
5
Rok budowy
2007
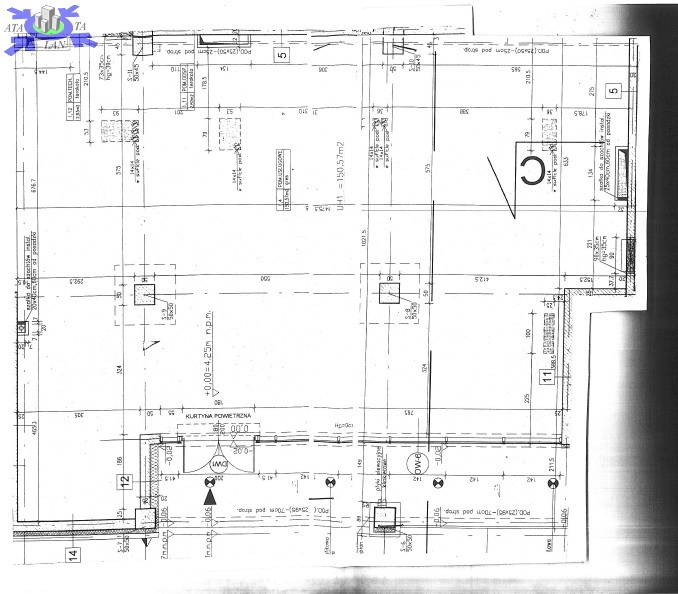
Opis
Polecam lokal biurowo-usługowy, z wejściem bezpośrednio z ulicy, usytuowany w apartamentowcu w centrum Szczecina.

Lokal o pow. 150 m2 składa się z
- dużej powierzchni typu open space
- trzech pomieszczeń wydzielonych przy pomocy ścianek szklano-aluminiowych
- kuchni
- dwóch toalet
- serwerowni.

Dodatkowy atutem są duże witryny, co sprawia, że lokal jest dobrze doświetlony, a zarazem widoczny z ulicy.

Lokal znajduje się w apartamentowcu wybudowanym w roku 2007. Po sąsiedzku znajdują się liczne lokale usługowe, biura, Zachodniopomorska Agencja Rozwoju Regionalnego. W niedalekiej odległości - kompleks handlowo-usługowy "Posejdon", Dworzec PKP i PKS, poczta, "Czerwony Ratusz". Przed budynkiem ogólnodostępne miejsca parkingowe.

Do ceny należy doliczyć podatek VAT 23%


Polecam i zapraszam na prezentację.

Dodatkowe informacje: ochrona, winda

Kontakt do agenta

Atalanta Nieruchomości
Marii Konopnickiej 32
71-132 Szczecin
tel.: 914875042
email: info@atalanta.szczecin.pl
fax: 914875031

Wyślij zapytanie

Imię i Nazwisko
Telefon
E-mail
Treść zapytania

Wyrażam zgodę na przetwarzanie moich danych osobowych przez firmę dla celów związanych z działalnością pośrednictwa w obrocie nieruchomościami, jednocześnie potwierdzam, iż zostałem poinformowany o tym, iż będę posiadać dostęp do treści swoich danych do ich edycji lub usunięcia.

Wyślij ofertę

E-mail
© 2025 Atalanta Nieruchomości. Wszystkie prawa zastrzeżone.