Kursy walut NBP: USD 3,98 | EUR 4,32 | CHF 4,53 |

Jesteśmy członkiem:           

Wyszukiwarka
Notes
Zgłoś ofertę
Kalkulator
zgłoś ofertę
Mieszkania
Domy
Działki
Lokale
Obiekty
Szczegóły oferty
Rodzaj oferty
mieszkanie ( sprzedaż )
Numer oferty
434042
Miejscowość
SZCZECIN, BUKOWO
Cena
435 000 PLN kalkulator
Cena za mkw
11 483,38 PLN mkw
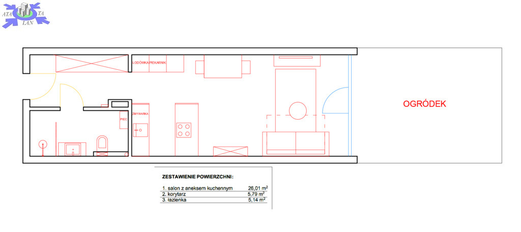
Powierzchnia
37.01 m2
Liczba pokoi
1
Liczba pięter
2
Rodzaj kuchni
aneks
Stan mieszkania
idealny
Rok budowy
2024
Opis
Szukasz przestrzeni, która łączy nowoczesność, wygodę i bliskość natury?
Ta kawalerka wykończona pod klucz to coś więcej niż mieszkanie - to gotowa do zamieszkania, gustownie zaprojektowana przestrzeń, w której po prostu poczujesz się dobrze.

Dlaczego warto?
- 37,01 m2 pełnych światła i funkcjonalności
- Salon z aneksem kuchennym - nowoczesna zabudowa z drewnianymi blatami, sprzęt AGD i lodówka w cenie
- Duża łazienka - miejsce na pralkę, komfort i estetyka
- Przestronny przedpokój z ogromną szafą PAX - miejsce na wszystko, co ważne
- Ogrzewanie podłogowe (gazowe) - ciepło pod stopami przez cały sezon
- Gustowne, wysokiej jakości wykończenie - zamieszkaj bez stresu, remontu i dodatkowych wydatków
- Wyjście na prywatny ogródek 15 m2 - idealne na poranną kawę, chwilę z książką czy kontakt z naturą. Tu codziennie usłyszysz śpiew ptaków.
- Miejsce postojowe tuż przy budynku - zakup obligatoryjny - 10 000 zł

Nowy blok z 2024 roku - kameralna zabudowa, estetyczne otoczenie, komfort życia
Lokalizacja Cicha, spokojna okolica z widokiem na łąkę i drzewa. Idealna dla osób ceniących kontakt z naturą, a jednocześnie szukających łatwego dostępu do miasta.
Blisko Vendo Park, przystanek autobusowy, sklepy i wszystkie niezbędne udogodnienia. Wokół niska zabudowa i dużo przestrzeni.

Czynsz administracyjny to jedynie 170 zł/mies.
Dostępne od zaraz - nie musisz czekać!
To mieszkanie to doskonały wybór na start, pod wynajem lub jako spokojna przystań pośród zieleni.

Zadzwoń i umów się na prezentację - zakochasz się od pierwszego wejrzenia!





Dodatkowe informacje: umeblowane, parking

Kontakt do agenta

Atalanta Nieruchomości
Marii Konopnickiej 32
71-132 Szczecin
tel.: 914875042
email: info@atalanta.szczecin.pl
fax: 914875031

Wyślij zapytanie

Imię i Nazwisko
Telefon
E-mail
Treść zapytania

Wyrażam zgodę na przetwarzanie moich danych osobowych przez firmę dla celów związanych z działalnością pośrednictwa w obrocie nieruchomościami, jednocześnie potwierdzam, iż zostałem poinformowany o tym, iż będę posiadać dostęp do treści swoich danych do ich edycji lub usunięcia.

Wyślij ofertę

E-mail
© 2025 Atalanta Nieruchomości. Wszystkie prawa zastrzeżone.