Kursy walut NBP: USD 3,98 | EUR 4,32 | CHF 4,53 |

Jesteśmy członkiem:           

Wyszukiwarka
Notes
Zgłoś ofertę
Kalkulator
zgłoś ofertę
Mieszkania
Domy
Działki
Lokale
Obiekty
Szczegóły oferty
Rodzaj oferty
mieszkanie ( sprzedaż )
Numer oferty
433874
Miejscowość
SZCZECIN, CENTRUM
Ulica
Andrzeja Małkowskiego
Cena
739 000 PLN kalkulator
Cena za mkw
8 409,19 PLN mkw
Powierzchnia
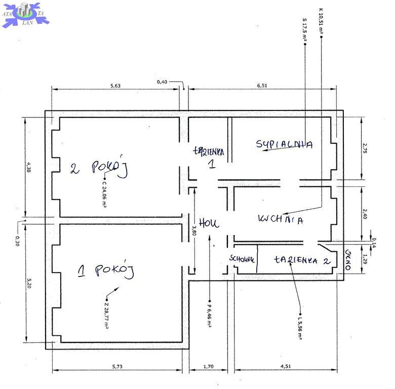
87.88 m2
Liczba pokoi
3
Piętro
1
Liczba pięter
3
Stan mieszkania
bardzo dobry
Rok budowy
1938
Droga dojazdowa
asfaltowa
Opis
Przestronne mieszkanie 3 pokojowe położone w centrum Szczecina w pięknie odrestaurowanej kamienicy na 1 piętrze

Przedmiotem sprzedaży jest mieszkanie o powierzchni 87,88 m2 składające się z
- 3 pokoi o powierzchni 27m2, 22m2, 14m2
- widnej kuchni
- dwóch łazienek z prysznicami
- hollu
- schowka
Generalny remont w mieszkaniu przeprowadzono 4 lata temu, wymieniając na nową instalację wodno-kanalizacyjną, prądu i gazu. Ocieplono również sufity. Pomieszczenia o wysokości 3 m dają wrażenie ogromnej przestronności. Okna wymienione na trzyszybowe, doskonale tłumią dźwięki. Na podłogach panele o dobrej klasie ścieralności. Ogrzewanie i ciepłą wodę zapewnia nowy piec z zasobnikiem wody Saunier Duval.

Czynsz do zarządcy w kwocie 864 zł. Jest piwnica.

Mieszkanie zapewnia bliskość wszystkich niezbędnych obiektów użyteczności publicznej, sklepów, kawiarni, niedaleko znajduje się również park. Jednocześnie uroczo zagospodarowane podwórko pozwala zapomnieć, że znajdujemy się w samym centrum miasta.

Przy kupnie mieszkania istnieje również możliwość przejęcia używanego przez obecnych właścicieli miejsca parkingowego na parkingu przy byłym kinie Kosmos.





Dodatkowe informacje: telefon, internet, TV kablowa, piwnica

Kontakt do agenta

Atalanta Nieruchomości
Marii Konopnickiej 32
71-132 Szczecin
tel.: 914875042
email: info@atalanta.szczecin.pl
fax: 914875031

Wyślij zapytanie

Imię i Nazwisko
Telefon
E-mail
Treść zapytania

Wyrażam zgodę na przetwarzanie moich danych osobowych przez firmę dla celów związanych z działalnością pośrednictwa w obrocie nieruchomościami, jednocześnie potwierdzam, iż zostałem poinformowany o tym, iż będę posiadać dostęp do treści swoich danych do ich edycji lub usunięcia.

Wyślij ofertę

E-mail
© 2025 Atalanta Nieruchomości. Wszystkie prawa zastrzeżone.