Kursy walut NBP: USD 3,98 | EUR 4,32 | CHF 4,53 |

Jesteśmy członkiem:           

Wyszukiwarka
Notes
Zgłoś ofertę
Kalkulator
zgłoś ofertę
Mieszkania
Domy
Działki
Lokale
Obiekty
Szczegóły oferty
Rodzaj oferty
obiekt ( wynajem )
Numer oferty
433776
Miejscowość
CZEPINO
Cena
32 400 PLN
Cena za mkw
32,66 PLN mkw
Powierzchnia
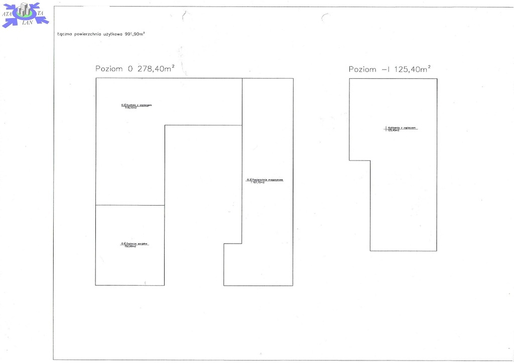
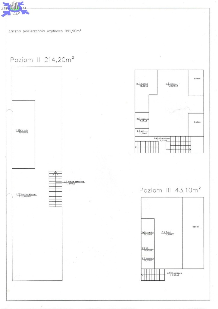
991.90 m2
Rok budowy
1980
Opis
Do wynajęcia duża nieruchomość o pow. ok. 991 m2 z przeznaczeniem na pensjonat, hotel pracowniczy, dom starców, dom weselny z noclegami, gabinety lekarskie bądź inne, położona na działce o powierzchni ponad 9.000 m2.

Na dzień dzisiejszy budynek posiada
- 23 osobne pokoje z łazienkami i balkonami , niektóre także z aneksami kuchennymi, z możliwością zakwaterowania do ok. 90 osób.
- Możliwość wyodrębnienia dużej sali o pow. ok. 125 m2 z własną kuchnią, kosztem 3 pokoi - ok. 12 miejsc noclegowych
- duża kuchnia o pow. ok. 118 m2 z zapleczem magazynowym ok. 107 m2 oraz zapleczem socjalnym ok. 52 m2
- kotłownia z zapleczem o pow. 125 m2, w której znajduje się piec na miał węglowy z podajnikiem na 0,5 tony. Koszt ogrzewania oraz ciepłej wody to w sezonie zimowym to ok 5.000 zł / miesiąc, w letnim ok. 1.000 zł / miesiąc . Istnieje możliwość podłączenia pieca gazowego.
- pralnia z zainstalowanym systemem płatności za pranie
- 2 garaże oraz mniejsze pomieszczenia gospodarcze i magazynowe,
- duży taras o pow. ok. 300 m2.

W środku budynku jest zielone patio z oczkiem wodnym i fontanną, na zewnątrz budynku wiele terenu zielonego z małym placem zabaw i możliwością zagospodarowania go według własnych potrzeb.

Na terenie także dużo miejsc parkingowych, całość ogrodzona z dwiema bramami wjazdowymi.

Nieruchomość położona ok. 7 minut samochodem od zjazdu z autostrady, 6 minut od centrum Gryfina i ok 25 minut od centrum Szczecina.

W cenę najmu wliczony 8% podatek VAT.

Zapraszam na prezentację!


Kontakt do agenta

Atalanta Nieruchomości
Marii Konopnickiej 32
71-132 Szczecin
tel.: 914875042
email: info@atalanta.szczecin.pl
fax: 914875031

Wyślij zapytanie

Imię i Nazwisko
Telefon
E-mail
Treść zapytania

Wyrażam zgodę na przetwarzanie moich danych osobowych przez firmę dla celów związanych z działalnością pośrednictwa w obrocie nieruchomościami, jednocześnie potwierdzam, iż zostałem poinformowany o tym, iż będę posiadać dostęp do treści swoich danych do ich edycji lub usunięcia.

Wyślij ofertę

E-mail
© 2026 Atalanta Nieruchomości. Wszystkie prawa zastrzeżone.