Kursy walut NBP: USD 3,98 | EUR 4,32 | CHF 4,53 |

Jesteśmy członkiem:           

Wyszukiwarka
Notes
Zgłoś ofertę
Kalkulator
zgłoś ofertę
Mieszkania
Domy
Działki
Lokale
Obiekty
Szczegóły oferty
Rodzaj oferty
mieszkanie ( sprzedaż )
Numer oferty
433557
Miejscowość
SZCZECIN, NIEBUSZEWO
Cena
430 000 PLN kalkulator
Cena za mkw
9 052,63 PLN mkw
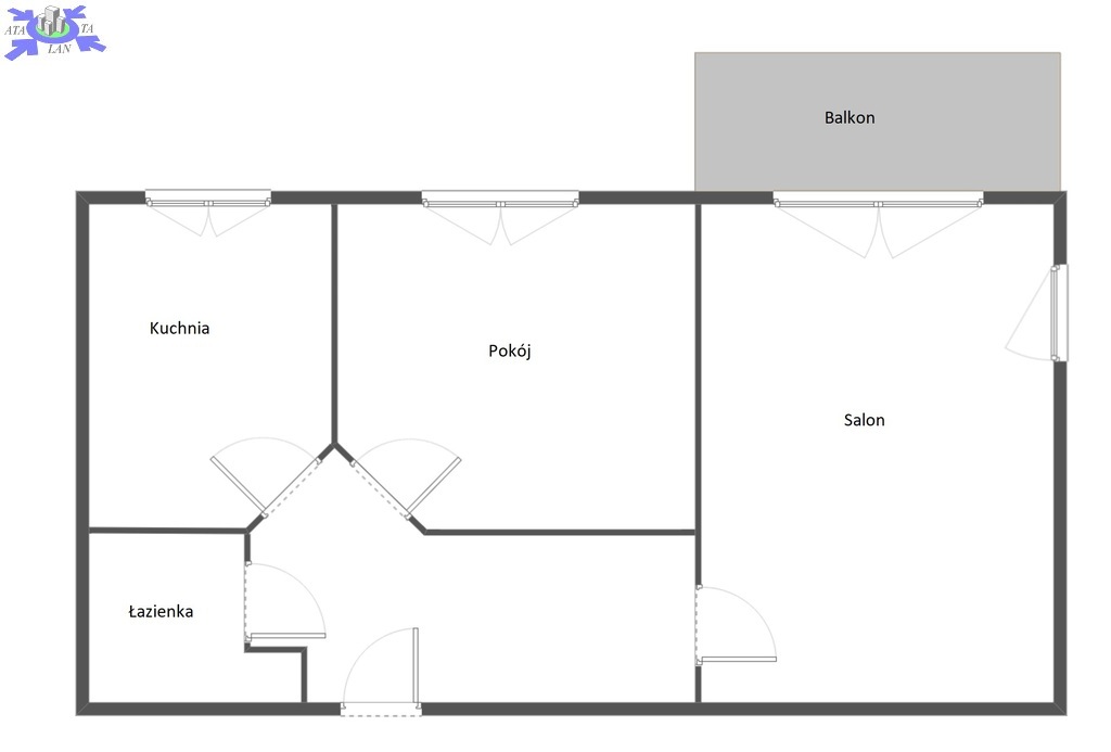
Powierzchnia
47.50 m2
Liczba pokoi
2
Piętro
2
Liczba pięter
4
Stan mieszkania
do remontu
Rok budowy
1990
Opis
Przedmiotem sprzedaży są 2 pokoje położone na zamkniętym osiedlu na Niebuszewie. Lokal znajduje się na 2 piętrze dobrze utrzymanego, ocieplonego, niskiego bloku z cegły. Osiedle bezpieczne, ciche i spokojne, położone w otoczeniu zieleni. Świetna lokalizacja - w pobliżu liczne sklepy wielobranżowe, punkty usługowe, przystanki komunikacji miejskiej, supermarket, szkoły, przedszkola. Bardzo dobra komunikacja z centrum miasta.

Mieszkanie o powierzchni 47,50m2, w skład którego wchodzą
-jasny, ustawny salon z wyjściem na balkon,
-sypialnia,
-oddzielna kuchnia z oknem,
-łazienka z wanną oraz toaletą,
-przedpokój.

Mieszkanie do remontu.
Wystawa okien na stronę południową. Wszystkie media z sieci miejskiej, dodatkowo płatny tylko gaz i prąd według zużycia. Opłaty czynszowe na poziomie ok. 620 zł miesięcznie.
Do mieszkania przynależy duża piwnica.

Polecam serdecznie za względu na fantastyczną lokalizację.

Dodatkowe informacje: balkon, ochrona, piwnica, komórka

Kontakt do agenta

Atalanta Nieruchomości
Marii Konopnickiej 32
71-132 Szczecin
tel.: 914875042
email: info@atalanta.szczecin.pl
fax: 914875031

Wyślij zapytanie

Imię i Nazwisko
Telefon
E-mail
Treść zapytania

Wyrażam zgodę na przetwarzanie moich danych osobowych przez firmę dla celów związanych z działalnością pośrednictwa w obrocie nieruchomościami, jednocześnie potwierdzam, iż zostałem poinformowany o tym, iż będę posiadać dostęp do treści swoich danych do ich edycji lub usunięcia.

Wyślij ofertę

E-mail
© 2025 Atalanta Nieruchomości. Wszystkie prawa zastrzeżone.