Kursy walut NBP: USD 3,98 | EUR 4,32 | CHF 4,53 |

Jesteśmy członkiem:           

Wyszukiwarka
Notes
Zgłoś ofertę
Kalkulator
zgłoś ofertę
Mieszkania
Domy
Działki
Lokale
Obiekty
Szczegóły oferty
Rodzaj oferty
dom blizniak ( sprzedaż )
Numer oferty
433230
Miejscowość
SZCZECIN, KIJEWO
Cena
949 000 PLN kalkulator
Cena za mkw
7 908,33 PLN mkw
Powierzchnia
120.00 m2
Pow. działki
284.00 m2
Liczba pokoi
5
Liczba pięter
1
Stan domu
idealny
Rok budowy
2025
Droga dojazdowa
asfaltowa
Opis
Serdecznie zapraszamy do zapoznania się z naszą najnowszą wyłącznością.

Na sprzedaż inwestycja deweloperska zlokalizowana w prawobrzeżnej części Szczecina - Kijewie - składająca się z dwóch budynków dwulokalowych. Jedna część została już zarezerwowana, do zakupu pozostały 3 lokale - jeden skrajny i dwa wewnętrzne. Cena dotyczy lokalu wewnętrznego. Cena zewnętrznego wynosi 1075000zł.

Łączna powierzchnia działki to 1139m2 - na każdy lokal przypada udział po 285m2 - w tym same ogródki po ok.100-120m2.

Do każdego lokalu przynależą dwa miejsca postojowe.

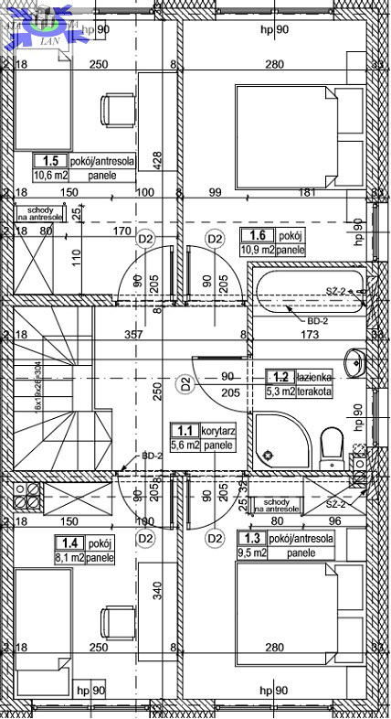
Każdy lokal mieszkalny składa się z dwóch poziomów (plus antresola) o powierzchni użytkowej 111,8m2.
W jej skład wchodzą
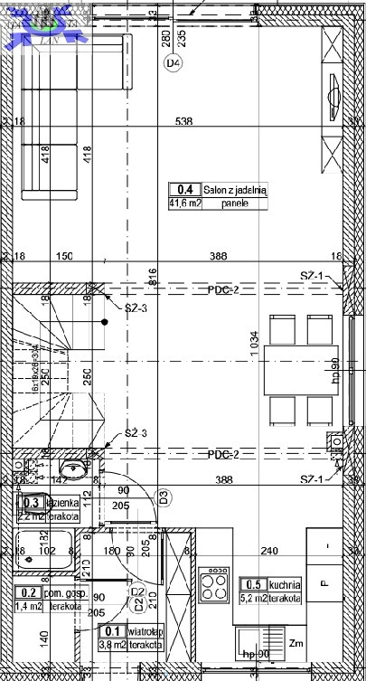
PARTER
- salon z jadalnią 41,6 m2
- kuchnia 5,2 m2
- łazienka z prysznicem 2,2 m2
- pomieszczenie gospodarcze 1,4 m2
- wiatrołap 3,8 m2
PIĘTRO
- 4 pokoje 10,9 m2 10,6 m2 9,5 m2 i 8,1 m2
- łazienka 5,3 m2
- korytarz 5,6 m2
- antresola 7,6 m2.

Budynki wykonane z zastosowaniem technologii pasywnej. Wybudowane z silikatu, ocieplone styropianem 15 cm. Usadowione na ocieplonej płycie podłogowej. Ogrzewanie i ciepła woda z pompy ciepła. Dodatkowo panele fotowoltaiczne.

Woda z sieci miejskiej. Podpięcie do kanalizy i deszczówki.

Świetna lokalizacja - dostęp do pełnej infrastruktury, bliskość Puszczy Bukowej, ścieżek rowerowych oraz dogodny wyjazd z miasta.

Serdecznie polecamy i zapraszamy na prezentacje!



Dodatkowe informacje: garaż

Kontakt do agenta

Atalanta Nieruchomości
Marii Konopnickiej 32
71-132 Szczecin
tel.: 914875042
email: info@atalanta.szczecin.pl
fax: 914875031

Wyślij zapytanie

Imię i Nazwisko
Telefon
E-mail
Treść zapytania

Wyrażam zgodę na przetwarzanie moich danych osobowych przez firmę dla celów związanych z działalnością pośrednictwa w obrocie nieruchomościami, jednocześnie potwierdzam, iż zostałem poinformowany o tym, iż będę posiadać dostęp do treści swoich danych do ich edycji lub usunięcia.

Wyślij ofertę

E-mail
© 2026 Atalanta Nieruchomości. Wszystkie prawa zastrzeżone.