Kursy walut NBP: USD 3,98 | EUR 4,32 | CHF 4,53 |

Jesteśmy członkiem:           

Wyszukiwarka
Notes
Zgłoś ofertę
Kalkulator
zgłoś ofertę
Mieszkania
Domy
Działki
Lokale
Obiekty
Szczegóły oferty
Rodzaj oferty
dom blizniak ( sprzedaż )
Numer oferty
432559
Miejscowość
SZCZECIN, GUMIEŃCE
Cena
1 300 000 PLN kalkulator
Cena za mkw
8 666,67 PLN mkw
Powierzchnia
150.00 m2
Pow. działki
324.00 m2
Liczba pokoi
5
Liczba pięter
1
Rodzaj kuchni
aneks
Stan domu
do wykonczenia
Rok budowy
2025
Opis
Prezentujemy Państwu na sprzedaż Dom o pow. użytkowej 150 m2 w zabudowie bliźniaczej przy jednej z głównych ulic w dzielnicy Gumieńce w Szczecinie.

Dom o wyjątkowo funkcjonalnym rozkładzie pomieszczeń!

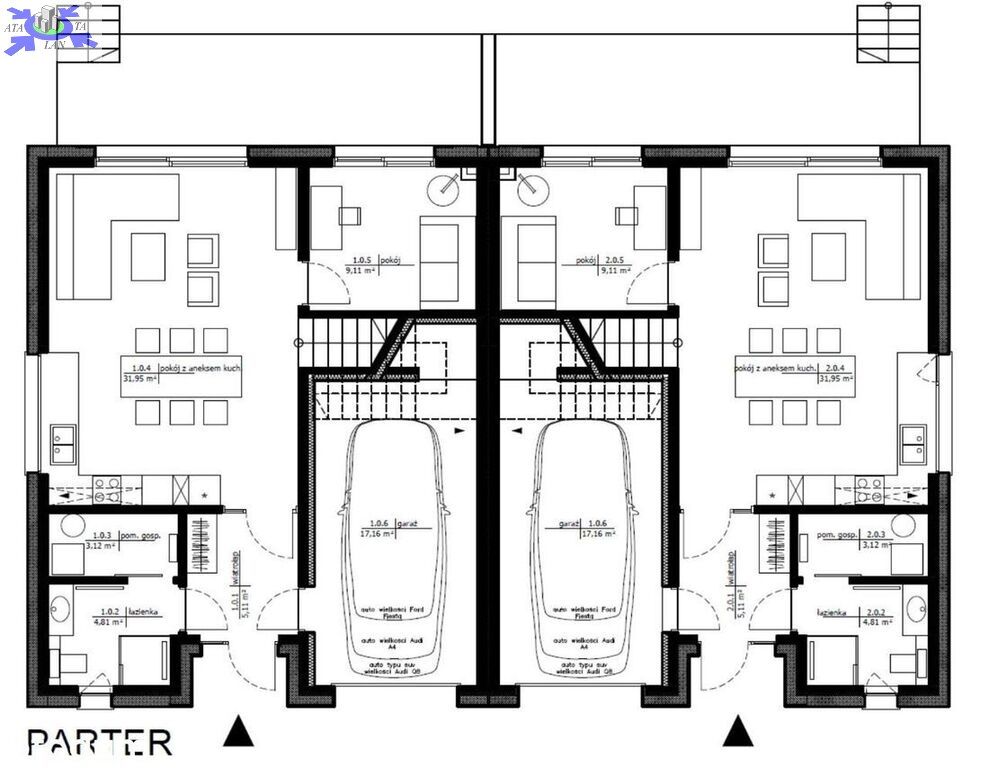
Na pierwszym poziomie znajdują się
- przestronny salon z kuchnią w aneksie (oraz wyjściem na taras z ogrodem)
- gabinet/sypialnia
- łazienka z WC
- pomieszczenie gospodarcze
- wiatrołap.
- garaż (ogrzewany z osobnym przejściem do domu)
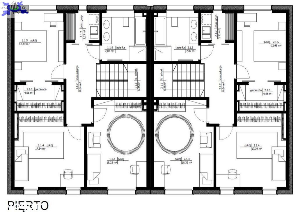
Na drugim poziomie znajdują się
- 3 sypialnie w tym jedna z garderobą
- łazienka z WC
- pomieszczenie gospodarcze
- korytarz

Materiał ścian - silikat, tynki wewnętrzne cementowo-wapienne. Elewacja ocieplona wełną / styropianem 20 cm. Dach pokryty blachą na rąbek. Ocieplenie stropu pianą PUR.
Okna 3 szybowe firmy Schco.

Dom wybudowany w technologii mającej na celu obniżenie kosztów utrzymania.
Pompa Ciepła zintegrowana z Rekuperacją i ogrzewaniem podłogowym na obu piętrach.

Świetna lokalizacja! W pobliżu komunikacja miejska, sklepy, punkty usługowe i wiele innych.
Szczególnie polecamy ze względu na lokalizację oraz rozkład pomieszczeń!

Zapraszamy na prezentacje!


Dodatkowe informacje: garaż

Kontakt do agenta

Atalanta Nieruchomości
Marii Konopnickiej 32
71-132 Szczecin
tel.: 914875042
email: info@atalanta.szczecin.pl
fax: 914875031

Wyślij zapytanie

Imię i Nazwisko
Telefon
E-mail
Treść zapytania

Wyrażam zgodę na przetwarzanie moich danych osobowych przez firmę dla celów związanych z działalnością pośrednictwa w obrocie nieruchomościami, jednocześnie potwierdzam, iż zostałem poinformowany o tym, iż będę posiadać dostęp do treści swoich danych do ich edycji lub usunięcia.

Wyślij ofertę

E-mail
© 2026 Atalanta Nieruchomości. Wszystkie prawa zastrzeżone.