Kursy walut NBP: USD 3,98 | EUR 4,32 | CHF 4,53 |

Jesteśmy członkiem:           

Wyszukiwarka
Notes
Zgłoś ofertę
Kalkulator
zgłoś ofertę
Mieszkania
Domy
Działki
Lokale
Obiekty
Szczegóły oferty
Rodzaj oferty
dom blizniak ( sprzedaż )
Numer oferty
432412
Miejscowość
DRAWSKO POMORSKIE
Cena
699 000 PLN kalkulator
Cena za mkw
4 288,34 PLN mkw
Powierzchnia
163.00 m2
Pow. działki
500.00 m2
Liczba pokoi
4
Liczba pięter
1
Rodzaj kuchni
aneks
Stan domu
do wykonczenia
Rok budowy
2025
Droga dojazdowa
asfaltowa
Opis
Na sprzedaż dom o nowoczesnej linii, w zabudowie bliźniaczej, położony w miejscowości Drawsko Pomorskie. Nieruchomość położona zaledwie 400 m od Jeziora Okra. W okolicy również las, ścieżki spacerowe i rowerowe, a także szkoła, przedszkole oraz sklepy wielobranżowe.

Ofertę stanowi energooszczędny dom o powierzchni ok. 160 m2 z garażem w bryle budynku (ok. 22 m2), posadowiony na działce o pow. ok. 500 m2.
Przy budowie domu zastosowano innowacyjną technologię - system budowlany STEICO.
Sprzedawany dom charakteryzuje się doskonałymi parametrami izolacyjnymi. Materiały użyte w konstrukcji domu oddychające, regulujące poziom wilgoci w środku, zapewniający mikroklimat wewnątrz budynku a także utrzymujący poziom hałasu w jego wnętrzu.
System grzewczy w postaci farb grzewczych Carbon4 użyty w budynku sprawi ze ciepło zostanie równomiernie rozprowadzone w całym domu a użytkowanie budynku będzie ekologiczne i oszczędne w użytkowaniu.

Układ pomieszczeń bardzo funkcjonalny , zaprojektowany z myślą o zapewnieniu komfortu mieszkańcom.
Dom składa się z przestronnego salonu połączonego z jadalnią, kuchnią i wyjściem na taras ok. 20 m2. W pomieszczeniach tych zamontowane duże okna przesuwne systemu HS o szerokości 4 metrów (bezprogowe).
Na parterze ponadto znajduje się pomieszczenie techniczne, wc oraz przestronny hall z miejscem na szafę z którego można przejść do garażu znajdującego się w bryle budynku.
Część sypialniana znajduje się na pierwszej kondygnacji. Przy największej sypialni zaprojektowano garderobę. Pozostałe dwie sypialnie przestronne i ustawne a w ich pobliżu znajduje się salon kąpielowy i osobna pralnia.

Na łączny metraż ok. 160 m2 składają się

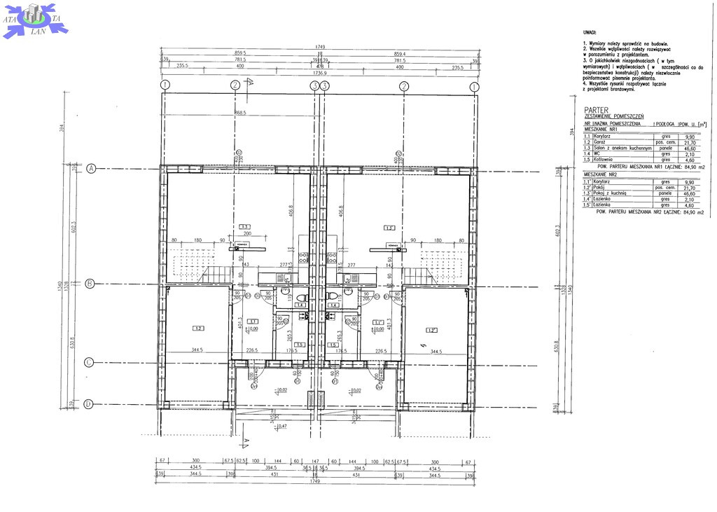
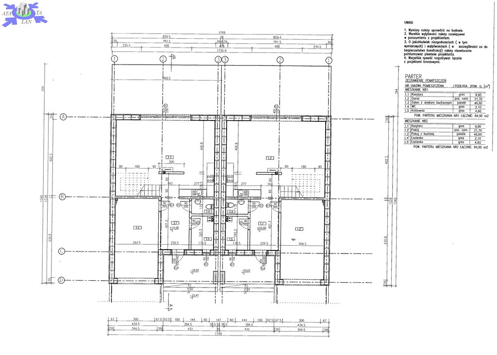
PARTER - ok. 85 m2
- korytarz ok. 10 m2,
- salon z aneksem kuchennym i jadalnią ok. 47 m2,
- toaleta ok. 2 m2,
- kotłownia ok. 5 m2,
- garaż ok. 22 m2.

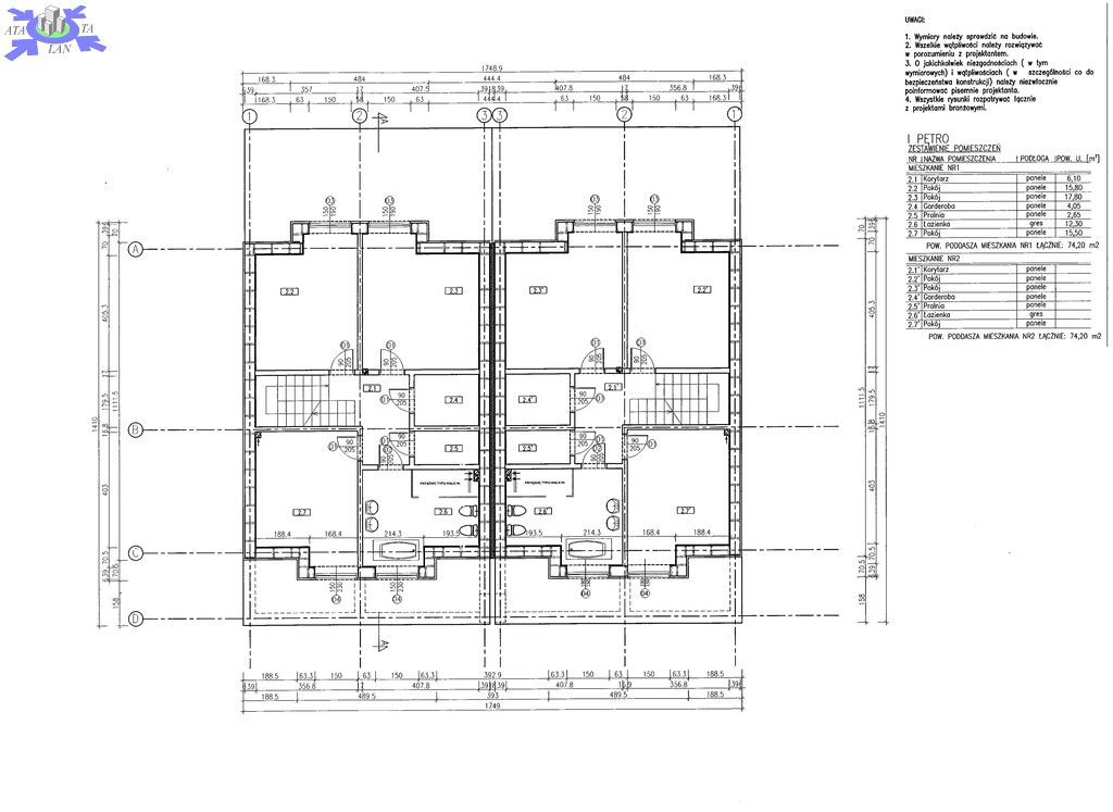
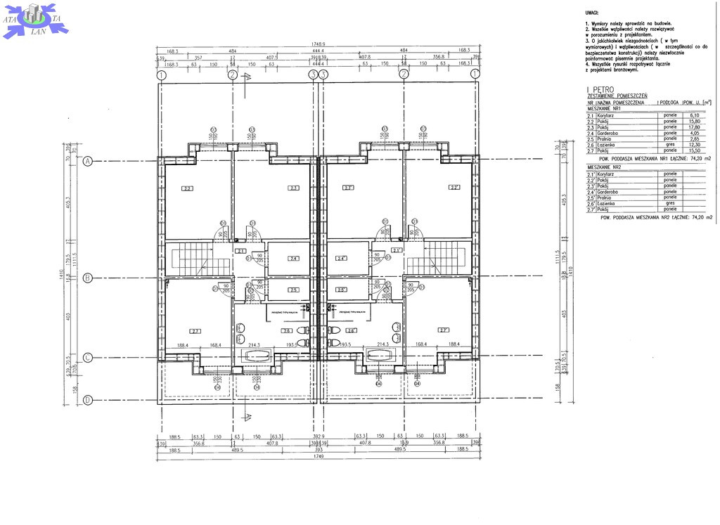
PIĘTRO - ok. 74,00
- korytarz ok. 6 m2,
- 3 sypialnie (ok. 18+16+16 m2),
- garderoba ok. 4 m2,
- pralnia ok. 3 m2,
- łazienka ok. 12 m2.

Dom w trakcie budowy zgodnie z projektem biura projektowego.
Nieruchomość zostanie doprowadzona do stanu deweloperskiego w IV kwartale 2025 r.

Najważniejsze informacje o nieruchomości
1) niewątpliwym atutem jest położenie nieruchomości w otoczeniu natury z wygodnym dostępem do centrum - zdrowy mikroklimat - raj dla miłośników aktywności fizycznej.
2) wysoki standard wykończenia
- zaawansowane technologie gwarantują dbałość o środowisko i zdrowie mieszkańców,
- niskie koszty utrzymania - dom jest ekonomiczny w użytkowaniu,
- podwójna ściana między budynkami - doskonała akustyka,
- okna pcv 3 szybowe firmy TUR-PLAST (w tym tarasowe w salonie na HS) wraz z roletami zewnętrznymi,
- drzwi antywłamaniowe ALU z przeszkleniem,
- brama garażowa Wiśniowski otwierana na pilota
- dach z blachodachówki w kolorze antracytowym,
- taras wykończony wysokiej jakości płytkami.

Powyższe aspekty sprawiają że dom stanowi wymarzoną inwestycję dla osób szukających komfortu i ciszy.

Zapraszam na prezentację do osobistej weryfikacji oferty.

Kupujący zwolniony z opłaty PCC (2% podatek odprowadzany do Urzędu Skarbowego).


Oferta na wyłączność!

Dodatkowe informacje: garaż

Kontakt do agenta

Atalanta Nieruchomości
Marii Konopnickiej 32
71-132 Szczecin
tel.: 914875042
email: info@atalanta.szczecin.pl
fax: 914875031

Wyślij zapytanie

Imię i Nazwisko
Telefon
E-mail
Treść zapytania

Wyrażam zgodę na przetwarzanie moich danych osobowych przez firmę dla celów związanych z działalnością pośrednictwa w obrocie nieruchomościami, jednocześnie potwierdzam, iż zostałem poinformowany o tym, iż będę posiadać dostęp do treści swoich danych do ich edycji lub usunięcia.

Wyślij ofertę

E-mail
© 2026 Atalanta Nieruchomości. Wszystkie prawa zastrzeżone.