Kursy walut NBP: USD 3,98 | EUR 4,32 | CHF 4,53 |

Jesteśmy członkiem:           

Wyszukiwarka
Notes
Zgłoś ofertę
Kalkulator
zgłoś ofertę
Mieszkania
Domy
Działki
Lokale
Obiekty
Szczegóły oferty
Rodzaj oferty
mieszkanie ( sprzedaż )
Numer oferty
432265
Miejscowość
SZCZECIN, ŚRÓDMIEŚCIE-CENTRUM
Ulica
Pocztowa
Cena
429 000 PLN kalkulator
Cena za mkw
5 092,59 PLN mkw
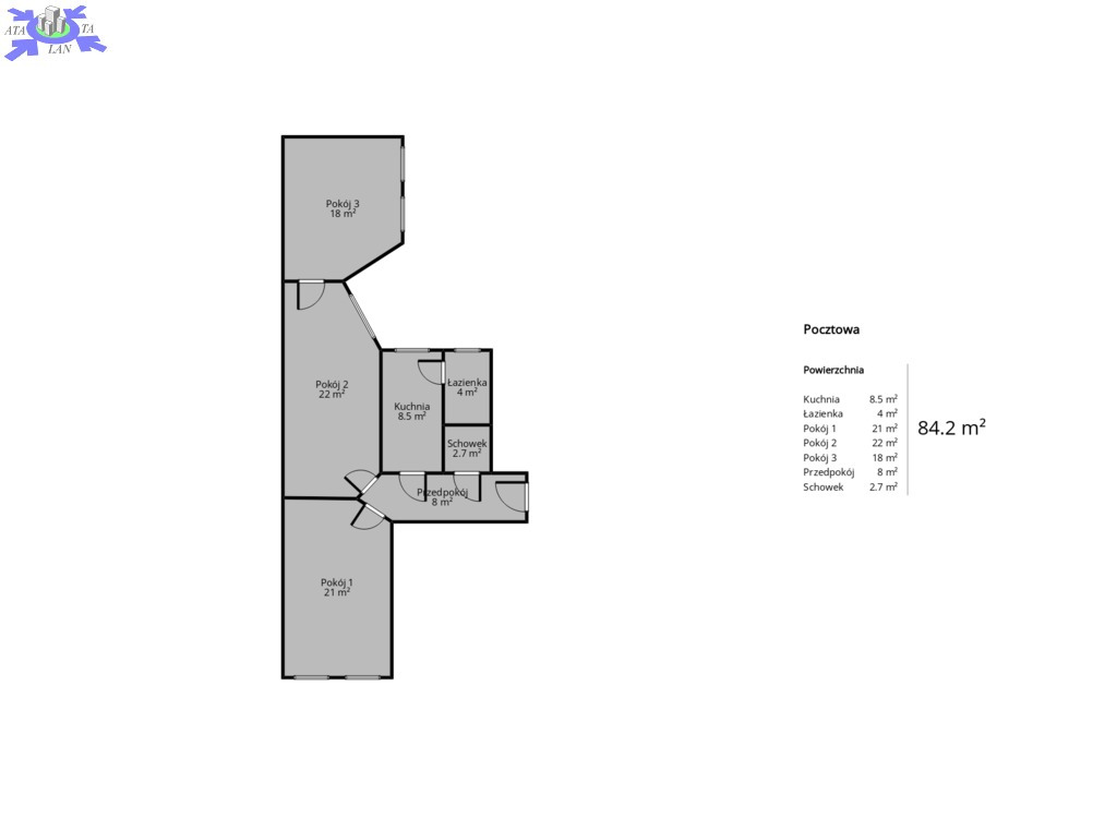
Powierzchnia
84.24 m2
Liczba pokoi
3
Liczba pięter
4
Stan mieszkania
do kapitalnego remontu
Rok budowy
1920
Opis
Idealne na działalność biurową lub dla rodziny

Szukasz mieszkania w świetnej lokalizacji, które możesz zaaranżować według własnych potrzeb? A może chcesz otworzyć biuro lub kancelarię?

Mamy dla Ciebie ciekawą ofertę sprzedaży 84-metrowego mieszkania do remontu na parterze odnowionej kamienicy.

Zapewniamy wysoki rabat na wszelkie materiały budowlane i wykończeniowe!

Mieszkanie
* powierzchnia 84,24 mkw.
* wysokość 3,20 m
* W przedpokoju znajdują się wejścia do kuchni (z której przechodzi się do łazienki) oraz do dwóch pokojów. Jeden z nich jest pokojem przechodnim z którego wchodzimy do trzeciego pokoju. Obecnie w przedpokoju znajduje się również wejście do skrytki - pomieszczenia, które mogłoby być zaaranżowane na spiżarnię, schowek na rowery lub - w przypadku kancelarii lub biura - pomieszczenie na dokumenty. Możliwość przywrócenia tradycyjnego układu pomieszczeń.
* parter w 4-piętrowej kamienicy
* ogrzewanie i ciepła woda z pieca gazowego
* okna drewniane w bardzo dobrym stanie, wychodzące na ulicę (jeden pokój) oraz na podwórze (pozostałe pomieszczenia)


Budynek
* kamienica z wyremontowaną fasadą
* czysta i zadbana klatka schodowa
* ciche i zadbane podwórko wewnętrzne

Okolica
* Śródmieście - dobra komunikacja w każdą stronę miasta
* w okolicy znajdziemy liczne sklepy (Biedronka 450m, Netto 850m, CH Turzyn 600m), punkty usługowe i gastronomiczne, szkoły podstawowe, przedszkola, szkoły ponadpodstawowe, przychodnię, fitness, pocztę, apteki, banki itp. W pobliżu przystanki linii tramwajowych 2, 4, 5, 7, 8, 9 oraz autobusowych 70, 86, 87, 75. W Śródmieściu siedzibę ma wiele wydziałów ZUT-u oraz Uniwersytetu Szczecińskiego. Ogólnodostępne miejsca parkingowe na ulicy (Strefa B).

Ważne
* pełna własność z Księgą Wieczystą bez jakichkolwiek wpisów
* czynsz około 580 zł/ mies., woda rozliczana 2 razy w roku (przy zużyciu 30 m3 wody dopłata około 400 zł)
* możliwość łatwej aranżacji pomieszczeń na działalność biurową, także z wejściem z ulicy


Kontakt do agenta

Atalanta Nieruchomości
Marii Konopnickiej 32
71-132 Szczecin
tel.: 914875042
email: info@atalanta.szczecin.pl
fax: 914875031

Wyślij zapytanie

Imię i Nazwisko
Telefon
E-mail
Treść zapytania

Wyrażam zgodę na przetwarzanie moich danych osobowych przez firmę dla celów związanych z działalnością pośrednictwa w obrocie nieruchomościami, jednocześnie potwierdzam, iż zostałem poinformowany o tym, iż będę posiadać dostęp do treści swoich danych do ich edycji lub usunięcia.

Wyślij ofertę

E-mail
© 2025 Atalanta Nieruchomości. Wszystkie prawa zastrzeżone.