Kursy walut NBP: USD 3,98 | EUR 4,32 | CHF 4,53 |

Jesteśmy członkiem:           

Wyszukiwarka
Notes
Zgłoś ofertę
Kalkulator
zgłoś ofertę
Mieszkania
Domy
Działki
Lokale
Obiekty
Szczegóły oferty
Rodzaj oferty
dom blizniak ( sprzedaż )
Numer oferty
432241
Miejscowość
GOLENIÓW
Cena
834 000 PLN kalkulator
Cena za mkw
5 082,89 PLN mkw
Powierzchnia
164.08 m2
Pow. działki
466.00 m2
Liczba pokoi
5
Liczba pięter
1
Rodzaj kuchni
aneks
Stan domu
idealny
Rok budowy
2025
Droga dojazdowa
asfaltowa
Opis
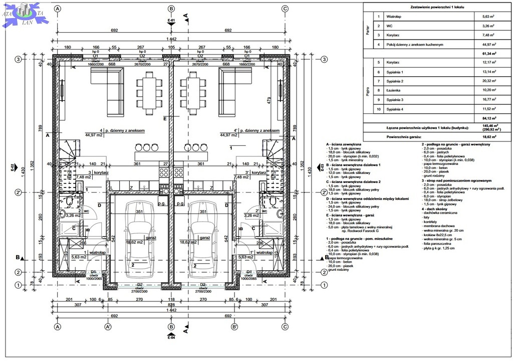
W ofercie dom wolnostojący dwulokalowy położony przy lesie w Goleniowie, działka 466m2. 30 minut od Szczecina, 2km od drogi S3. Łączna powierzchnia całkowita domu to 164m2,w tym
Parter
- Wiatrołap - 5,63 m2
- WC - 3,26 m2
- Korytarz - 7,48 m2
- Pokój dzienny z aneksem kuchennym - 44,97 m2
Piętro I
- Sypialnia 1 - 13,14 m2
- Łazienka - 10,20 m2
- Sypialnia 2 - 20,32 m2
- Sypialnia 3 - 16,77 m2
- Sypialnia 4 - 11,52 m2
Łącznie 145,46 m2 + Garaż 18,62 m2.

Budynek został wykonany z wysokiej jakości materiałów budowlanych i wykończeniowych

We wszystkich pokojach i garażu jest zastosowane ogrzewanie podłogowe, do ogrzewania jest zastosowany piec gazowy wraz z zasobnikiem 120 l, ponadto jest wyprowadzona instalacja pod pompę ciepła i panele fotowoltaiczne

Ponadto zamontowano okna Gelan trzyszybowe wraz z elektrycznymi roletami, brama garażowa wraz z napędem elektrycznym firmy Wiśniowski oraz drzwi wejściowe firmy ERKADO Thermo 64, wideodomofon.

Konstrukcja
ściana zewnętrzna
- 1,5 cm - tynk gipsowy
- 24,0 cm - bloczek silikatowy
- 20,0 cm - styropian ( min. 0,032)
- 1,5 cm - tynk mineralny
dach
- dachówka ceramiczna
- łaty
- kontrłaty
- membrana dachowa
- wełna mineralna gr. 20 cm
- krokiew 8x22,5 cm
- wełna mineralna gr. 5 cm
- folia paroszczelna
- płyta g-k gr. 1,25 cm

Teren całkowicie ogrodzony. Bardzo dobry dojazd drogą asfaltową (droga gminna), w pobliżu liczne sklepy i lokale użytkowe. Klucze w biurze. Zapraszam do zapoznania się z ofertą osobiście. Podana cena jest ceną netto, do ceny należy doliczyć VAT.

Dodatkowe informacje: garaż

Kontakt do agenta

Atalanta Nieruchomości
Marii Konopnickiej 32
71-132 Szczecin
tel.: 914875042
email: info@atalanta.szczecin.pl
fax: 914875031

Wyślij zapytanie

Imię i Nazwisko
Telefon
E-mail
Treść zapytania

Wyrażam zgodę na przetwarzanie moich danych osobowych przez firmę dla celów związanych z działalnością pośrednictwa w obrocie nieruchomościami, jednocześnie potwierdzam, iż zostałem poinformowany o tym, iż będę posiadać dostęp do treści swoich danych do ich edycji lub usunięcia.

Wyślij ofertę

E-mail
© 2026 Atalanta Nieruchomości. Wszystkie prawa zastrzeżone.