Kursy walut NBP: USD 3,98 | EUR 4,32 | CHF 4,53 |

Jesteśmy członkiem:           

Wyszukiwarka
Notes
Zgłoś ofertę
Kalkulator
zgłoś ofertę
Mieszkania
Domy
Działki
Lokale
Obiekty
Szczegóły oferty
Rodzaj oferty
mieszkanie ( sprzedaż )
Numer oferty
431837
Miejscowość
POGORZELICA
Cena
425 571 PLN kalkulator
Cena za mkw
12 900 PLN mkw
Powierzchnia
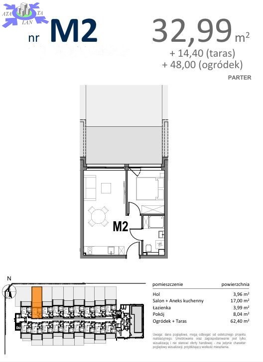
32.99 m2
Liczba pokoi
2
Liczba pięter
3
Rodzaj kuchni
aneks
Stan mieszkania
do wykonczenia
Rok budowy
2026
Droga dojazdowa
asfaltowa
Opis
Zapraszamy do zapoznania się z ofertą 2 pokojowego mieszkania położonego w nowoczesnym kompleksie apartamentowców w Pogorzelicy

Lokal o powierzchni 32,99 m2, składa się z salonu z aneksem kuchennym, sypialni, łazienki wraz z WC oraz przedpokoju, do mieszkania przynależy taras i ogródek.

Dodatkowo miejsca parkingowego z blokadą na kłódkę 32tyś zł netto. Na parkingu będzie znajdować się również stacja ładowania samochodów elektrycznych.

STANDARD WYKOŃCZENIA
- Okna PCV
- Parapety zewnętrzne - metalowe
- Balustrady balkonów i tarasów - parter - betonowe, piętro 1,2,3, antresola - stalowe malowane proszkowo w kolorze antracyt wypełnione szkłem
klejonym
- Maszynowe tynki wewnętrzne gipsowe na mokro bez gruntowania i szpachlowania
- Podłoża pod posadzki - betonowe z izolacją termiczną gr. 14 cm - parter i o gr. 4 cm - piętro 1,2,3
- Instalacje - elektryczne z rozdzielnią uzbrojoną (bez osprzętu i punktów świetlnych)
- Instalacje wody zimnej i ciepłej - przyłącza z rozprowadzeniem instalacji w apartamencie
- Instalacja kanalizacyjna - pion i trójnik z podejściem kanalizacyjnym pod przybory z zamontowanym stelażem podtynkowym do wc
- Instalacja RTV Instalacja internetowa Instalacja domofonowa
- Instalacja centralnego ogrzewania i ciepłej wody użytkowej zasilana z indywidualnego kotła gazowego dwufunkcyjnego z sterownikiem
manualnym, grzejnik stalowy drabinkowy w łazience i ogrzewanie podłogowe w apartamencie. Instalacja gazowa podłączona do kotła gazowego
- Drzwi wejściowe do mieszkań min klasy B


Mieszkanie składa się z
- pokoju dziennego z aneksem kuchennym o pow. 17,00 m2
- sypialni/pokoju o pow. 8,04 m2,
- łazienki o pow. 3,99 m2
- taras o pow. 14,40 m2 + ogródek o pow. 48,00 m2.

OPŁATY ZA UTRZYMANIE LOKALU

- miesięczny czynsz do zarządcy - ok. 300,00 zł w tym opłaty zaliczkowe za utrzymanie nieruchomości wspólnej, zimną wodę, śmieci, fundusz remontowy, KORZYSTANIE ZE STREFY BASENOWEJ,
- gaz - wg zużycia - ogrzewanie, ciepła woda,
- prąd - wg zużycia.

Sprzedawane apartamenty oddawane są w stanie deweloperskim, co pozwala na wykończenie ich zgodnie z indywidualnymi preferencjami i potrzebami. W ramach dodatkowej oferty istnieje możliwość wykończenia lokali "pod klucz". Lokale można użytkować cały rok, co pozwala elastycznie zarządzać czasem wynajmu i własnego wypoczynku.

Ten znakomicie zlokalizowany apartament stanowi idealne połączenie przytulnego mieszkania i wygody nadmorskiego kurortu.
Wokół panuje cisza i spokój. Obiekt położony jest zaledwie 1000 m od plaży.

Niewątpliwie jednym z atutów inwestycji jest całoroczny kryty basen sąsiadujący z salką fitness oraz sauną.

BARDZO DOBRA INWESTYCJA !!!

Zainwestuj swoje środki finansowe w pewną lokalizację. Możliwość wynajmu lokalu stanowi doskonałą inwestycję generującą dodatkowe dochody.

Podana cena, jest ceną NETTO, do której należy doliczyć 23% podatku VAT.

Kto może odliczyć 23% podatku VAT?
Przedsiębiorca, osoba fizyczna prowadząca działalność gospodarczą oraz osoba fizyczna nieprowadząca działalności gospodarczej, zarejestrowana jako czynny podatnik VAT.

ZAPRASZAMY DO KONTAKTU ORAZ UMÓWIENIA SIĘ NA PREZENTACJĘ !

Dodatkowe informacje: winda, garaż, parking

Kontakt do agenta

Atalanta Nieruchomości
Marii Konopnickiej 32
71-132 Szczecin
tel.: 914875042
email: info@atalanta.szczecin.pl
fax: 914875031

Wyślij zapytanie

Imię i Nazwisko
Telefon
E-mail
Treść zapytania

Wyrażam zgodę na przetwarzanie moich danych osobowych przez firmę dla celów związanych z działalnością pośrednictwa w obrocie nieruchomościami, jednocześnie potwierdzam, iż zostałem poinformowany o tym, iż będę posiadać dostęp do treści swoich danych do ich edycji lub usunięcia.

Wyślij ofertę

E-mail
© 2026 Atalanta Nieruchomości. Wszystkie prawa zastrzeżone.