Kursy walut NBP: USD 3,98 | EUR 4,32 | CHF 4,53 |

Jesteśmy członkiem:           

Wyszukiwarka
Notes
Zgłoś ofertę
Kalkulator
zgłoś ofertę
Mieszkania
Domy
Działki
Lokale
Obiekty
Szczegóły oferty
Rodzaj oferty
działka budowlana ( sprzedaż )
Numer oferty
431674
Miejscowość
ŻÓŁWIA BŁOĆ
Cena
195 470 PLN kalkulator
Cena za mkw
110 PLN mkw
Powierzchnia
1777.00 m2
Droga dojazdowa
utwardzona
Opis
Jedynie u nas znajdą Państwo tą nietuzinkową ofertę - uzbrojona działka budowlana z wydanym pozwoleniem na budowę !!!

Położona w bardzo urokliwym miejscu, nieopodal lasu, w miejscowości Żółwia Błoć.

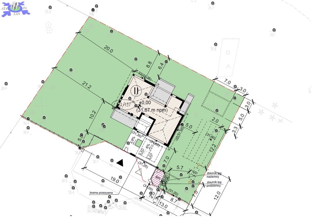
Jej pow. to 1777 m2, ma kształt prostokąta. Wymiary 53,5 m x 35,0 m. Wjazd na działkę od strony południowo-zachodniej.

Znajduje się w kompleksie 7 działek budowlanych, z dostępem do drogi prywatnej (ok. 100 m od osiedlowej drogi gminnej).

Uzbrojenie terenu
- prąd - w drodze wewnętrznej, bezpośrednio przy działce,
- wodociąg - w drodze wewnętrznej z wykonanym przyłączem na działce,
- kanalizacja - brak, zaprojektowana przydomowa biologiczna oczyszczalnia ścieków,
- gaz - brak gazu z sieci, zaprojektowana butla gazowa 2700 L.


W 2024 roku zostało wydane pozwolenie na budowę nowoczesnego i komfortowego domu jednorodzinnego z użytkowym poddaszem - projekt "Homekoncept 13 Energo" krakowskiej pracowni projektowej HomeKoncept.

Projekt idealnie został dopasowany do położenia i parametrów działki, a przede wszystkim potrzeb 4-5 osobowej rodziny, ceniącej sobie wysoki komfort mieszkania.

To bardzo nowoczesny projekt domu z dużymi przeszkleniami, które gwarantują doskonałe doświetlenie całego domu, nawet pochmurne dni.

Wnętrze mieści
- na parterze - salon z jadalnią oraz otwartą kuchnię ze spiżarką, sypialnię, hol, łazienkę, wiatrołap z garderobą oraz dwustanowiskowy garaż
wraz z pom. gospodarczym/kotłownią
- na poddaszu - trzy sypialnie, każda z indywidualną garderobą (1 z własną łazienką), łazienkę oraz hol z wyjściem na taras.

Podstawowe parametry budynku
- powierzchnia zabudowy - 200,24 m2,
- powierzchnia użytkowa - 186,09 m2
- wysokość budynku - 7,40 m
- kąt nachylenia dachu - 35 *
- szerokość elewacji frontowej - 18,95 m

Lokalizacja

Żółwia Błoć oddalona jest ok. 7 km od Goleniowa. Posiada doskonałą komunikację z drogą ekspresową S3 i S6 (Szczecin, Świnoujście, Gdańsk, Koszalin). W pobliskim Białuniu znajduje się tu szkoła podstawowa i przedszkole, stacja PKP, lokalny sklep wielobranżowy, darmowa komunikacja miejska do Goleniowa, sklep Dino.

Atrakcyjna oferta, spełnij marzenie o budowie domu w bardzo dobrej lokalizacji !

ZAPRASZAMY NA PREZENTACJE i DO SKŁADANIA OFERT ZAKUPU !





Dodatkowe informacje: media - prąd, media - woda

Kontakt do agenta

Atalanta Nieruchomości
Marii Konopnickiej 32
71-132 Szczecin
tel.: 914875042
email: info@atalanta.szczecin.pl
fax: 914875031

Wyślij zapytanie

Imię i Nazwisko
Telefon
E-mail
Treść zapytania

Wyrażam zgodę na przetwarzanie moich danych osobowych przez firmę dla celów związanych z działalnością pośrednictwa w obrocie nieruchomościami, jednocześnie potwierdzam, iż zostałem poinformowany o tym, iż będę posiadać dostęp do treści swoich danych do ich edycji lub usunięcia.

Wyślij ofertę

E-mail
© 2026 Atalanta Nieruchomości. Wszystkie prawa zastrzeżone.