Kursy walut NBP: USD 3,98 | EUR 4,32 | CHF 4,53 |

Jesteśmy członkiem:           

Wyszukiwarka
Notes
Zgłoś ofertę
Kalkulator
zgłoś ofertę
Mieszkania
Domy
Działki
Lokale
Obiekty
Szczegóły oferty
Rodzaj oferty
lokal ( sprzedaż )
Numer oferty
431399
Miejscowość
SZCZECIN, OS. MAJOWE
Ulica
Zofii Nałkowskiej
Cena
690 000 PLN kalkulator
Cena za mkw
7 752,81 PLN mkw
Powierzchnia
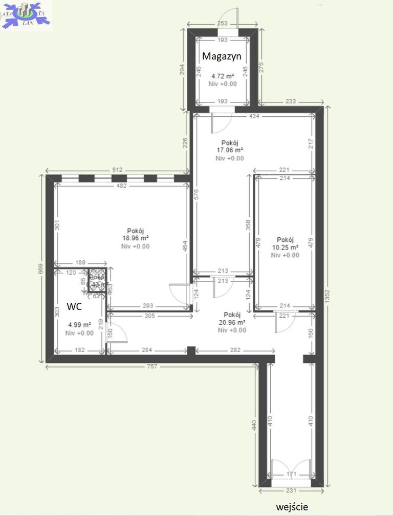
89.00 m2
Liczba pokoi
3
Liczba pięter
10
Rok budowy
1992
Opis
Na sprzedaż lokal handlowo-usługowy usytuowany w środku osiedla Majowego.

Nieruchomość idealna do prowadzenia działalności handlowo-usługowej gabinety lekarskie, sklepy, hurtownie, biura, szkoła językowa, fryzjer, salon kosmetyczny.

Na powierzchnię 89m2 obecnie składają się

- pomieszczenie biurowe o pow. 19m2
- pomieszczenie biurowe o pow. 17,6m2 z przejściem do magazynu o pow. 4,7 m2 ( drugie wejście )
- pomieszczenie biurowe o pow. 10m2
- korytarz z aneksem kuchennym
- toaleta
- holl / poczekalnia


Lokal posiada dwa wejścia, możliwość rozładunku towarów od zaplecza
Ściany wewnętrzne są działowe, więc można dopasować układ i wielkość pomieszczeń pod preferencje nowego Właściciela.


Ogrzewanie i ciepła woda z sieci miejskiej.
Przed budynkiem duża ilość ogólnodostępnych miejsc parkingowych

Świetna lokalizacja, w pobliżu sklepy sklepy żabka, apteka, restauracje, w odległości 200m zajezdnia autobusowa.
Oferta na wyłączność.

Zapraszam na prezentację

Dodatkowe informacje: winda, parking

Kontakt do agenta

Atalanta Nieruchomości
Marii Konopnickiej 32
71-132 Szczecin
tel.: 914875042
email: info@atalanta.szczecin.pl
fax: 914875031

Wyślij zapytanie

Imię i Nazwisko
Telefon
E-mail
Treść zapytania

Wyrażam zgodę na przetwarzanie moich danych osobowych przez firmę dla celów związanych z działalnością pośrednictwa w obrocie nieruchomościami, jednocześnie potwierdzam, iż zostałem poinformowany o tym, iż będę posiadać dostęp do treści swoich danych do ich edycji lub usunięcia.

Wyślij ofertę

E-mail
© 2026 Atalanta Nieruchomości. Wszystkie prawa zastrzeżone.