Kursy walut NBP: USD 3,98 | EUR 4,32 | CHF 4,53 |

Jesteśmy członkiem:           

Wyszukiwarka
Notes
Zgłoś ofertę
Kalkulator
zgłoś ofertę
Mieszkania
Domy
Działki
Lokale
Obiekty
Szczegóły oferty
Rodzaj oferty
dom blizniak ( sprzedaż )
Numer oferty
431029
Miejscowość
DOŁUJE
Cena
947 000 PLN kalkulator
Cena za mkw
8 025,42 PLN mkw
Powierzchnia
118.00 m2
Pow. działki
600.00 m2
Liczba pokoi
4
Stan domu
idealny
Rok budowy
2024
Droga dojazdowa
utwardzona
Opis
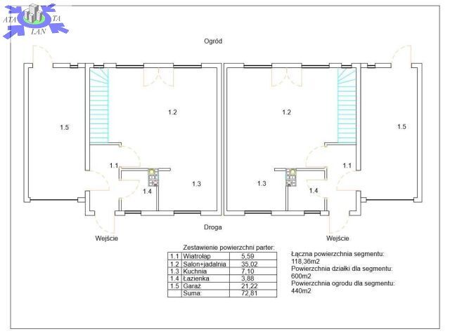
Oferuję na sprzedaż prawy segment domu z garażem w zabudowie bliźniaczej położony w Dołujach.
Dom o bardzo funkcjonalnej i ergonomicznej architekturze oraz konstrukcji.
Na parterze znajduje się przestronny salon, duża kuchnia i łazienka. Drugie piętro z trzema sypialniami i dużą, doświetloną naturalnym światłem łazienką.
Bardzo staranne docieplenie budynku i zastosowanie sprawdzonych materiałów gwarantuje, że dom będzie tani w utrzymaniu oraz praktyczny w użytkowaniu!
Istnieje możliwość zamontowania fotowoltaiki.
Do domu jest dojazd utwardzoną drogą gminną.
Działka każdej połówki domu ma powierzchnię 600 m2,
Dom posiada bardzo duże ogrody o pow. 440 m2 każdy z idealnym ustawieniem wobec kierunków świata.
Powierzchnia domu 118,36 m2,
- dwie pełne kondygnacje (brak skosów i wykuszy)
- na parterze wiatrołap, salon z jadalnią, kuchnia, łazienka, garaż
- na piętrze trzy pokoje i łazienka
- możliwość adaptacji strychu na schowek.

Dom posiada wszystkie media prąd, gaz, woda z wodociągu miejskiego, kanalizacja gminna, zbiornik na wodę deszczową. Segment wyposażony jest w instalacje elektryczne, wodno-kanalizacyjną, ogrzewanie podłogowe z gazowym piecem dwufunkcyjnym z zasobnikiem ciepłej wody użytkowej. Każda połówka domu będzie posiadała oddzielną Księgę Wieczystą.
Ogrodzenie frontowe zostanie uzupełnione o metalowe przęsła oraz furtkę i bramę przesuwną. Nad wejściem zostanie zamontowane zadaszenie podobnego typu jak na załączonym zdjęciu.

Polecam i zapraszamy na prezentację.

Dodatkowe informacje: garaż

Kontakt do agenta

Atalanta Nieruchomości
Marii Konopnickiej 32
71-132 Szczecin
tel.: 914875042
email: info@atalanta.szczecin.pl
fax: 914875031

Wyślij zapytanie

Imię i Nazwisko
Telefon
E-mail
Treść zapytania

Wyrażam zgodę na przetwarzanie moich danych osobowych przez firmę dla celów związanych z działalnością pośrednictwa w obrocie nieruchomościami, jednocześnie potwierdzam, iż zostałem poinformowany o tym, iż będę posiadać dostęp do treści swoich danych do ich edycji lub usunięcia.

Wyślij ofertę

E-mail
© 2026 Atalanta Nieruchomości. Wszystkie prawa zastrzeżone.