Kursy walut NBP: USD 3,98 | EUR 4,32 | CHF 4,53 |

Jesteśmy członkiem:           

Wyszukiwarka
Notes
Zgłoś ofertę
Kalkulator
zgłoś ofertę
Mieszkania
Domy
Działki
Lokale
Obiekty
Szczegóły oferty
Rodzaj oferty
lokal ( sprzedaż )
Numer oferty
430487
Miejscowość
SZCZECIN, OS. PRZYJAŹNI
Cena
873 000 PLN kalkulator
Cena za mkw
10 009,17 PLN mkw
Powierzchnia
87.22 m2
Liczba pięter
4
Rok budowy
1992
Opis
Na sprzedaż lokal użytkowy (87,22 m2) znajdujący się na parterze w budynku z 1992 r. na osiedlu Przyjaźni!
W sąsiedztwie lokali usługowo - handlowych!

Bezpośrednie wejściem z ulicy!
Duża witryna!
Wysokość 3,8 m

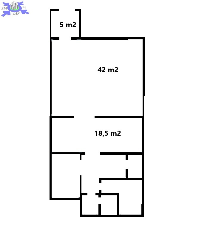
W skład powierzchni wchodzi
- wiatrołap ok. 5 m2
- 2 pomieszczenia handlowo- usługowe (ok. 42 m2 oraz 18,5 m2), doświetlone światłem dziennym
- pomieszczenie magazynowo- biurowe (7 m2, 10 m2 ) z pomieszczeniami technicznymi i pomieszczeniem socjalnym.


Czynsz do zarządcy ok. 1278,- zł (zawiera fundusz remontowy, wywóz nieczystości, części wspólne, ogrzewanie) dodatkowe opłaty prąd zgodnie ze wskazaniami liczników.



Zapraszam na prezentację.






Dodatkowe informacje: winda

Kontakt do agenta

Atalanta Nieruchomości
Marii Konopnickiej 32
71-132 Szczecin
tel.: 914875042
email: info@atalanta.szczecin.pl
fax: 914875031

Wyślij zapytanie

Imię i Nazwisko
Telefon
E-mail
Treść zapytania

Wyrażam zgodę na przetwarzanie moich danych osobowych przez firmę dla celów związanych z działalnością pośrednictwa w obrocie nieruchomościami, jednocześnie potwierdzam, iż zostałem poinformowany o tym, iż będę posiadać dostęp do treści swoich danych do ich edycji lub usunięcia.

Wyślij ofertę

E-mail
© 2026 Atalanta Nieruchomości. Wszystkie prawa zastrzeżone.