Kursy walut NBP: USD 3,98 | EUR 4,32 | CHF 4,53 |

Jesteśmy członkiem:           

Wyszukiwarka
Notes
Zgłoś ofertę
Kalkulator
zgłoś ofertę
Mieszkania
Domy
Działki
Lokale
Obiekty
Szczegóły oferty
Rodzaj oferty
lokal ( sprzedaż )
Numer oferty
430438
Miejscowość
SZCZECIN, OS. ZAWADZKIEGO-KLONOWICA
Ulica
Władysława Szafera
Cena
999 000 PLN kalkulator
Cena za mkw
4 346,31 PLN mkw
Powierzchnia
229.85 m2
Liczba pięter
11
Rok budowy
1979
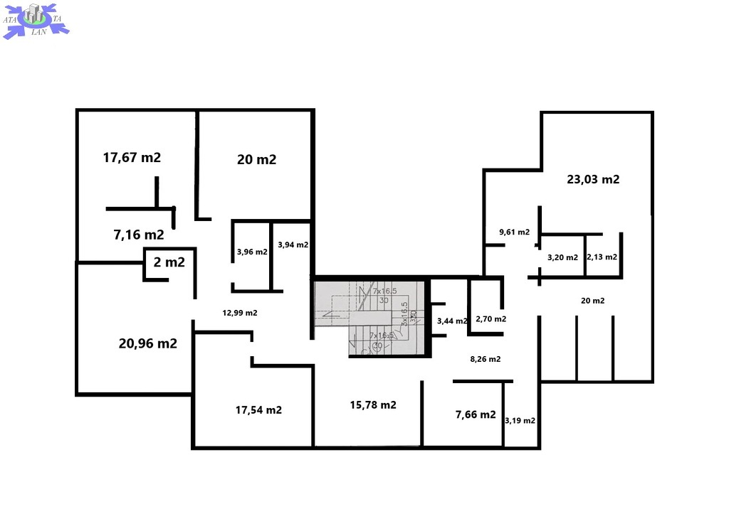
Opis
2 poziomowy lokal, położony w miejscu o dużym natężeniu ruchu pieszego na osiedlu Zawadzkiego - Klonowica. Czytelna lokalizacja
Na powierzchnię lokalu składa się
PARTER (z wejściem z ulicy, bezpośrednio z chodnika) - to obszerny hall i wewnętrzna klatka schodowa (szerokie schody prowadzące na piętro)
PIĘTRO
Hall (nadaje się na np. poczekalnię) oraz liczne pomieszczenia dostosowane w chwili obecnej do działalności medycznej
- sale o pow. ok. 9,5 m2 23 m2, 20 m2, 21 m2, 17,5 m2, 20 m2,
- pomieszczenia wspomagające działalność typu recepcja (7,66 m2), pomieszczenia gospodarcze, sterylizacja, laboratorium o pow. od 1,8 m2 do 3,96 m2,
- cztery toalety + duża łazienka (7,16 m2)
- oraz powierzchnia usprawniająca komunikację (hall i korytarze miedzy pokojami).

Powierzchnia całkowita lokalu wynosi 229.85 m2, z czego część zajmuje powierzchnia parteru.
Wysokość pomieszczeń od 4 - 4,20 m
Lokal został był przygotowywany pod konkretny rodzaj działalności medycznej, ale z powodzeniem powierzchnię można wykorzystać pod inna działalność
Ogrzewanie i woda (ciepła i zimna) z sieci miejskiej.
Koszt czynszu administracyjnego (z funduszem remontowym i mediami) -3.400,-PLN

Lokalizacja - dobrze skomunikowane osiedle Zawadzkiego -Klonowica. (autobus linii 53, 75, 80 oraz tramwaj 1 i 3), blisko ogólnodostępne parkingi.


Kontakt do agenta

Atalanta Nieruchomości
Marii Konopnickiej 32
71-132 Szczecin
tel.: 914875042
email: info@atalanta.szczecin.pl
fax: 914875031

Wyślij zapytanie

Imię i Nazwisko
Telefon
E-mail
Treść zapytania

Wyrażam zgodę na przetwarzanie moich danych osobowych przez firmę dla celów związanych z działalnością pośrednictwa w obrocie nieruchomościami, jednocześnie potwierdzam, iż zostałem poinformowany o tym, iż będę posiadać dostęp do treści swoich danych do ich edycji lub usunięcia.

Wyślij ofertę

E-mail
© 2026 Atalanta Nieruchomości. Wszystkie prawa zastrzeżone.