Kursy walut NBP: USD 3,98 | EUR 4,32 | CHF 4,53 |

Jesteśmy członkiem:           

Wyszukiwarka
Notes
Zgłoś ofertę
Kalkulator
zgłoś ofertę
Mieszkania
Domy
Działki
Lokale
Obiekty
Szczegóły oferty
Rodzaj oferty
działka budowlana ( sprzedaż )
Numer oferty
426043
Miejscowość
SMOGOLICE
Cena
173 448 PLN kalkulator
Cena za mkw
99 PLN mkw
Powierzchnia
1752.00 m2
Droga dojazdowa
asfaltowa
Opis
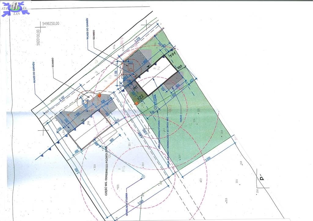
Oferujemy do sprzedania działkę budowlaną przeznaczoną pod zabudowę mieszkaniową jednorodzinną w miejscowości Smogolice koło Stargardu.
Działka o powierzchni 1752 m2.
Działka ma regularny kształt prostokąta.
Posiada bezpośredni dostęp do drogi powiatowej.

Dla działki została wydana decyzja o warunkach zabudowy oraz pozwolenie na budowę budynku mieszkalnego, jednorodzinnego.
Budynek o zwartej formie kryty dachem dwuspadowym o kącie nachylenia 40 stopni.
Powierzchnia użytkowa 125,8 m2
Powierzchnia całkowita 157,85 m2 z garażem i kotłownią.

Piękna okolica , bliskość lasu i drogi asfaltowej biegnącej przez Smogolice powoduje, że teren ten jest szczególnie atrakcyjny.

Dodatkowe informacje: media - prąd

Kontakt do agenta

Atalanta Nieruchomości
Marii Konopnickiej 32
71-132 Szczecin
tel.: 914875042
email: info@atalanta.szczecin.pl
fax: 914875031

Wyślij zapytanie

Imię i Nazwisko
Telefon
E-mail
Treść zapytania

Wyrażam zgodę na przetwarzanie moich danych osobowych przez firmę dla celów związanych z działalnością pośrednictwa w obrocie nieruchomościami, jednocześnie potwierdzam, iż zostałem poinformowany o tym, iż będę posiadać dostęp do treści swoich danych do ich edycji lub usunięcia.

Wyślij ofertę

E-mail
© 2026 Atalanta Nieruchomości. Wszystkie prawa zastrzeżone.