Kursy walut NBP: USD 3,98 | EUR 4,32 | CHF 4,53 |

Jesteśmy członkiem:           

Wyszukiwarka
Notes
Zgłoś ofertę
Kalkulator
zgłoś ofertę
Mieszkania
Domy
Działki
Lokale
Obiekty
Szczegóły oferty
Rodzaj oferty
lokal ( sprzedaż )
Numer oferty
397939
Miejscowość
STARGARD
Cena
395 000 PLN kalkulator
Cena za mkw
4 947,39 PLN mkw
Powierzchnia
79.84 m2
Liczba pokoi
3
Liczba pięter
1
Rok budowy
2012
Droga dojazdowa
asfaltowa
Opis
Lokal użytkowy o pow. 79,84m2 usytuowany na parterze niskiego budynku z 2012 roku w samym Centrum Stargardu.
Idealny do prowadzenia usług medycznych, biurowych, salonu kosmetycznego lub fryzjerskiego.

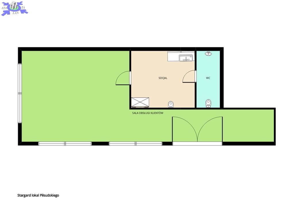
Całość lokalu to 3 pomieszczenia, wśród których wyróżniamy
- dużą salę sprzedaży w formie "Open Space"
- toaletę
- pomieszczenie stanowiące zaplecze socjalne (kuchnia dla personelu, szatnia)


Wykończenie lokalu
- podłogi-terakota,
- ściany gładkie malowane,
- stolarka okienna - PCV - duże witryny wystawowe jednocześnie super doświetlające lokal.
- kontrola dostępu do całości poprzez działający, zintegrowany z firmą ochroniarską system alarmowy
- lokal wyposażony w energię elektryczną, kanalizację, ogrzewanie, ciepłą i zimną wodę z sieci miejskiej, dodatkowo podłączona energia elektryczna 380 V.

Czynsz administracyjny płatny do wspólnoty liczony od lokalu użytkowego wynosi ok. 500 zł, wlicza się w niego zaliczki na ciepłą i zimną wodę, ogrzewanie, fundusz remontowy, wywóz śmieci, utrzymanie czystości, administrowanie budynkiem.
Lokal z możliwością wykorzystania jako biurowy, sala Fitness, handlowo-usługowy, usługi medyczne, terapeutyczne, szkoła nauki jazdy itp.

Jeżeli jesteś zainteresowany zapraszam do kontaktu- odpowiem na wszystkie pytania. Zapraszam do osobistej weryfikacji oferty podczas prezentacji.

Dodatkowe informacje: parking

Kontakt do agenta

Atalanta Nieruchomości
Marii Konopnickiej 32
71-132 Szczecin
tel.: 914875042
email: info@atalanta.szczecin.pl
fax: 914875031

Wyślij zapytanie

Imię i Nazwisko
Telefon
E-mail
Treść zapytania

Wyrażam zgodę na przetwarzanie moich danych osobowych przez firmę dla celów związanych z działalnością pośrednictwa w obrocie nieruchomościami, jednocześnie potwierdzam, iż zostałem poinformowany o tym, iż będę posiadać dostęp do treści swoich danych do ich edycji lub usunięcia.

Wyślij ofertę

E-mail
© 2025 Atalanta Nieruchomości. Wszystkie prawa zastrzeżone.