Kursy walut NBP: USD 3,98 | EUR 4,32 | CHF 4,53 |

Jesteśmy członkiem:           

Wyszukiwarka
Notes
Zgłoś ofertę
Kalkulator
zgłoś ofertę
Mieszkania
Domy
Działki
Lokale
Obiekty
Szczegóły oferty
Rodzaj oferty
mieszkanie ( sprzedaż )
Numer oferty
354983
Miejscowość
SZCZECIN, POGODNO II
Ulica
Janka Muzykanta
Cena
945 000 PLN kalkulator
Cena za mkw
9 949,46 PLN mkw
Powierzchnia
94.98 m2
Liczba pokoi
4
Piętro
1
Liczba pięter
2
Rodzaj kuchni
aneks
Stan mieszkania
bardzo dobry
Rok budowy
2020
Droga dojazdowa
asfaltowa
Opis
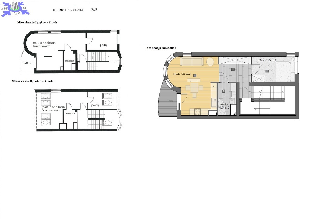
Do sprzedania 2-poziomowe mieszkanie o pow. 95 m2. Idealna oferta pod inwestycję na wynajem, gdyż mieszkanie zostało podzielone na dwa odrębne dwupokojowe lokale mieszkalne. Wydzielone mieszkania posiadają kuchnie w zabudowie wraz ze sprzętem AGD, umeblowane łazienki, sypialnie i pokoje dzienne. Ogrzewanie gazowe. Mieszkanie położone na zamkniętym i monitorowanym osiedlu usytuowanym w spokojnej dzielnicy Krzekowo przy cichej ulicy. Wokół zabudowa jednorodzinna, bliźniacza lub szeregowa. W pobliżu brak wielkich blokowisk i osiedli. Dojazd do centrum zapewnia pobliska czteropasmowa ulica Taczaka. W pobliżu liczne udogodnienia w postaci parków, miejsc użyteczności publicznej, dróg rowerowych, transportu miejskiego i sklepów.
Odległość od najważniejszych miejsc przystanek autobusowy 250 m, restauracje 300 m, ul. Taczaka 350 m, Park Przygodna 500 m i sklepy 800 m. Mieszkanie jest z garażem i komórką lokatorską. W pobliżu znajdują się ogródki działkowe i istnieje możliwość przejęcia za dodatkową opłatą jednego ogrodu działkowego o pow. około 300 m2.

Dodatkowe informacje: umeblowane, balkon, internet, TV kablowa, garaż, komórka

Kontakt do agenta

Atalanta Nieruchomości
Marii Konopnickiej 32
71-132 Szczecin
tel.: 914875042
email: info@atalanta.szczecin.pl
fax: 914875031

Wyślij zapytanie

Imię i Nazwisko
Telefon
E-mail
Treść zapytania

Wyrażam zgodę na przetwarzanie moich danych osobowych przez firmę dla celów związanych z działalnością pośrednictwa w obrocie nieruchomościami, jednocześnie potwierdzam, iż zostałem poinformowany o tym, iż będę posiadać dostęp do treści swoich danych do ich edycji lub usunięcia.

Wyślij ofertę

E-mail
© 2026 Atalanta Nieruchomości. Wszystkie prawa zastrzeżone.